EasyManua.ls Logo

Panasonic SA-VK31EE - C) Panel Circuit & (D) Tact Switch Circuit

Panasonic SA-VK31EE
115 pages
Print Icon
To Next Page IconTo Next Page
To Next Page IconTo Next Page
To Previous Page IconTo Previous Page
To Previous Page IconTo Previous Page
Loading...
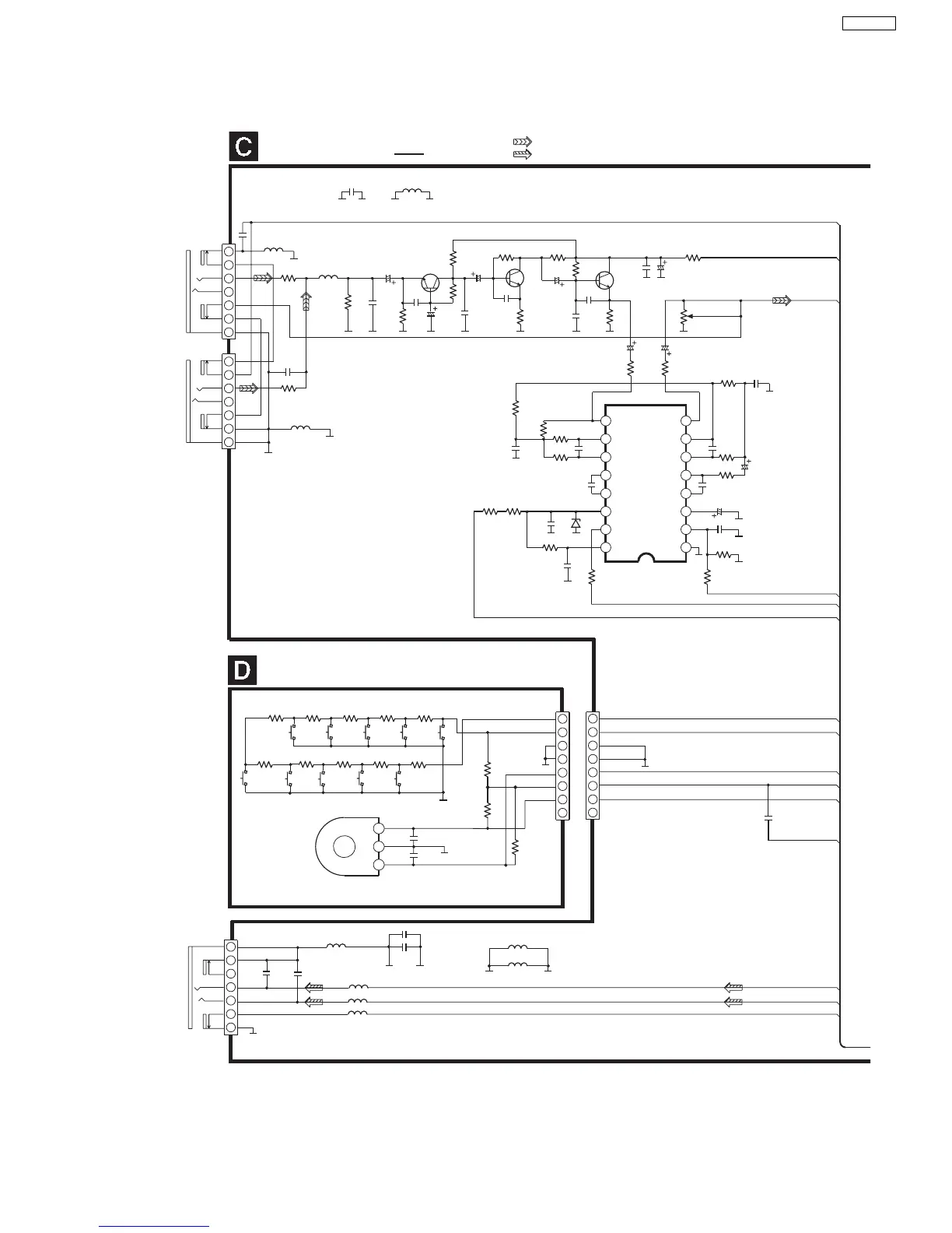
16.4. (C) Panel Circuit & (D) Tact Switch Circuit
1
2
3
COM BA
1
2
3
4
5
6
7
8
1
2
3
4
5
6
7
8
2
4
6
7
5
3
1
2
4
6
7
5
3
1
2
4
6
7
5
3
1
: +B SIGNAL LINE
: MAIN SIGNAL LINE
SCHEMATIC DIAGRAM - 10
PANEL CIRCUIT
CP900
CN900
JK601
HEADPHONE
MIC2
MIC1
JK600
JK900
S901
REW
S902
TUNER
S903
CD
PLAY
S904
FF
S905
STOP
S906
DECK2
OPEN
AUX
S908
S907
TAPE
S909
DECK1
OPEN
S910
DISPLAY
R901
1K
R902
1K
R903
1.2K
R904
1.8K
R905
2.2K
R906
2.7K
R907
4.7K
R908
6.8K
R909
10K
R910
22K
MICSW_1
K2_1
VJOG_B
VREF+
VJOG_A
R900
10K
R912
47K
C901
100P
C902
100P
R913
47K
VR600
EVEKE2F3524M
JOG VOL
TACT SWITCH CIRCUIT
HP_SW
L602
RLQZP101KT-Y
L603
RLQZP101KT-Y
HPL
HPR
L604
RLQZP100KT-Y
C621
0.022
C620
0.022
MICSW
K2
VJOG_B
VREF+
VJOG_A
VREF+
K2
VJOG_B
VJOG_A
R969
680
R970
680
L608
G0C100JA0030
R972
560
C669
0.01
C918
50V3.3
C919
470P
R939
4.7K
C916
50V4.7
R938
470K
C917
1000P
C670
50V0.33
Q900
R683
68
C662
0.047
R690
330K
Q607
C663
50V1
R684
8.2K
R682
330K
C665
100P
C664
1000P
R697
4.7K
Q606
R937
2.2K
C666
1000P
C667
10V100
R694
3.3K
MIC
+9.0V
MICSW
L605
J0JKB0000020
C671
0.022
MIX IN
ADLPF IN
ADLPF OUT
ADINT IN
ADINT OUT
VCC
MUTE
CR
MIX OUT
DALPF OUT
DALPF IN
DAINT OUT
DAINT OUT
BIAS
ECHO VR
CR
C920
50V1
R926
100
C903
50V1
R927
100
C911
4700P
R940
8.2K
R971
10K
C910
0.015
R929
22K
R928
22K
C904
3300P
R931
4.7K
R930
15K
R932
10K
C905
50V0.47
C906
0.015
C907
0.033
C912
0.033
C908
16V22
C909
0.01
R941
18K
R933
1K
ECHO_LVL
R934
22K
MUTE_E
R935
82K
C913
0.01
R936
39
C914
150P
D906
B0BA5R000004
R990
39
+9.0V
MICSW
IC900
IC900
C1BB00000716
ECHO IC
C619
0.047
L609
RLQZP101KT-Y
Q900
2SC1740SSTA
LIMITER
Q606
KTC3199GRTA
VR602
EVUF2AF25B14
Q607
2SC1740SSTA
: MIC SIGNAL LINE
MIC AMP
MIC AMP
C627
0.1
DVREF+
C625 0.01
L607
J0JKB0000020
C672
0.01
L611
J0JKB0000020
L612
J0JKB0000020
L634
J0JKB0000020
C922
0.01
16
15
14
13
12
11
10
9
8
7
6
5
4
3
2
1
61
SA-VK31EE

Table of Contents

Related product manuals