EasyManua.ls Logo

Panasonic SA-VK61DEE - L) Power Supply Circuit

Panasonic SA-VK61DEE
156 pages
Print Icon
To Next Page IconTo Next Page
To Next Page IconTo Next Page
To Previous Page IconTo Previous Page
To Previous Page IconTo Previous Page
Loading...
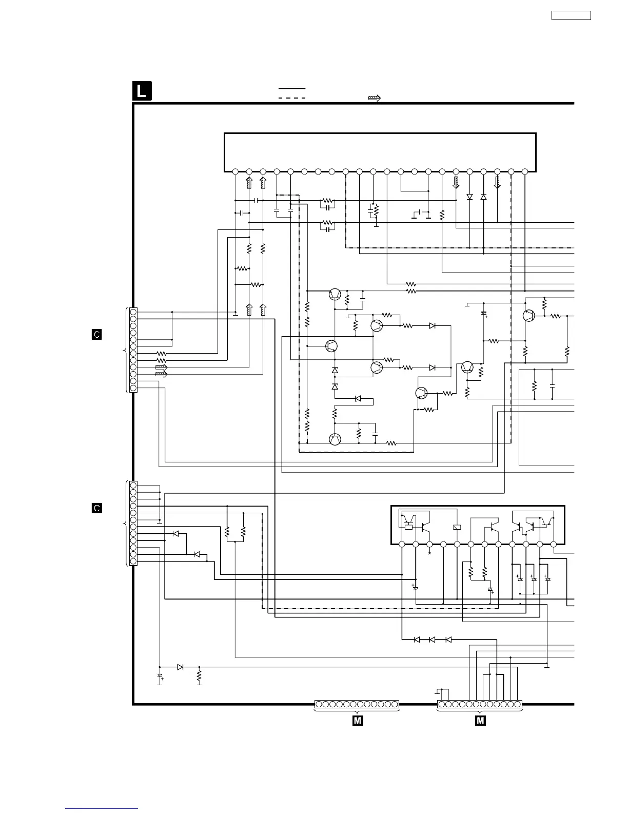
19.7. (L) Power Supply Circuit
1
2
3
45
6 7 8 9 10 11 12
22
21
20
19 18
17 16 15 14 13 12 11 10 9 8 7 6 5 4 3 2 1
POWER SUPPLY CIRCUIT
C503
820P
C502
820P
C504
0.01
C505
0.01
R510 56K
C510 15P
R509 56K
C509 15P
C511
0.047
R511
470K
C506
0.01
R512
1K
D501
D500
R513 680
R548 4.7
C541
0.01
R546
2.7K
R545
47K
R544
5.6K
R547
2.7K
R549
22K
R551
22K
D543
B0AACK000004
C517
16V220
R557
100
R550
10K
R552
3.3K
R560
39K
R561
4.7K
R559
10K
R517
10K
R562
56K
C542
0.01
R556
33K
R555
10K
R554
10K
R553
10K
R540
4.7
R565
330
R543
8.2K
D542
D541
D540
B0BA02400029
R542
47K
R541
2.7K
C540
0.01
C520
25V330
C521 50V47
C522 50V47
R522
1.5K
R523
1.5K
C523
50V47
C525
50V47
R529
100K
C519
50V2.2
D526
B0AACK000004
D525
D524
R524
47K
R525
47K
R505
10K
R506
10K
R501
15K
R502
15K
TO
POWER CIRCUIT
(CN957) ON
SCHEMATIC
DIAGRAM - 36
TGND
+15V
FR_L
FR_R
AGND
AGND
DC_DET
MUTE_IN
Q542
Q541
Q543
Q544
Q545
Q540
Q546
Q547
IC501
SCHEMATIC DIAGRAM - 34
IN_GND
L_IN
R_IN
-VD
+VD
-HIN
+HIN
RELAY
-Di_
SENS
+Di_
SENS
IH_DET
DISP_
HMUT
DCDET
OVER
LOAD
GND
AC_IN
R_OUT
-VCC_LOW
+VCC_LOW
L_OUT
-VCC_Hi
+VCC_Hi
IC500
RSN312H24-P
POWER HIC
IC501
C5BA00000113
VOLTAGE REGULATOR
Q545
B1ACCL000012
SWITCH
Q546
B1ACCL000010
SWITCH
Q547
KTC3199GRTA
SWITCH
Q540
B1BCCG000021
REGULATOR
Q541
2SD1859QRTV2
REGULATOR
Q542
B1BACG000009
REGULATOR
Q543
B1ACCF000063
REGULATOR
Q544
B1ACCF000063
REGULATOR
D524, 525
B0EAKM000117
D500, 501
B0JAPG000019
D544
B0AACK000004
PGND
DSPGND
VGND
+9V
DGND
SUB+B
8V
SW5V
FAN
-9V
LED9V
MO10V
FLT_GND
VOLUME_DET
SUB+B_GND
SUB+B
DC_DET
FAN_DET
TO
MAIN CIRCUIT
(CN301) ON
SCHEMATIC
DIAGRAM - 23
TO
MAIN CIRCUIT
(CN300) ON
SCHEMATIC
DIAGRAM - 23
+Vin2
+10V
+3.3V
GND
ACTIVE
LOW
-Vin1
-9V
+5V
+9V
+15V
+Vin1
: -B SIGNAL LINE
: +B SIGNAL LINE
: MAIN SIGNAL LINE
CP501
CP500
CP503 CP502
TO
POWER CIRCUIT
(CN956) ON
SCHEMATIC
DIAGRAM - 36
D541, 542
B0BA01100004
D530 D529 D528
D528 - 530
B0EAKM000117
R504 3.9K
R503 3.9K
12
11
10
2
4
6
8
9
7
5
3
1
12
11
10
2
4
6
8
9
7
5
3
1
1
2
3
4
5
6
12
10
8
7
9
11
1
2
3
4
5
6
12
10
8
7
9
11
103
SA-VK61DEE

Table of Contents

Related product manuals