EasyManua.ls Logo

Panasonic SA-VK61DEE - E) Panel Circuit, (F) LED Circuit & (G) Tact Switch Circuit

Panasonic SA-VK61DEE
156 pages
Print Icon
To Next Page IconTo Next Page
To Next Page IconTo Next Page
To Previous Page IconTo Previous Page
To Previous Page IconTo Previous Page
Loading...
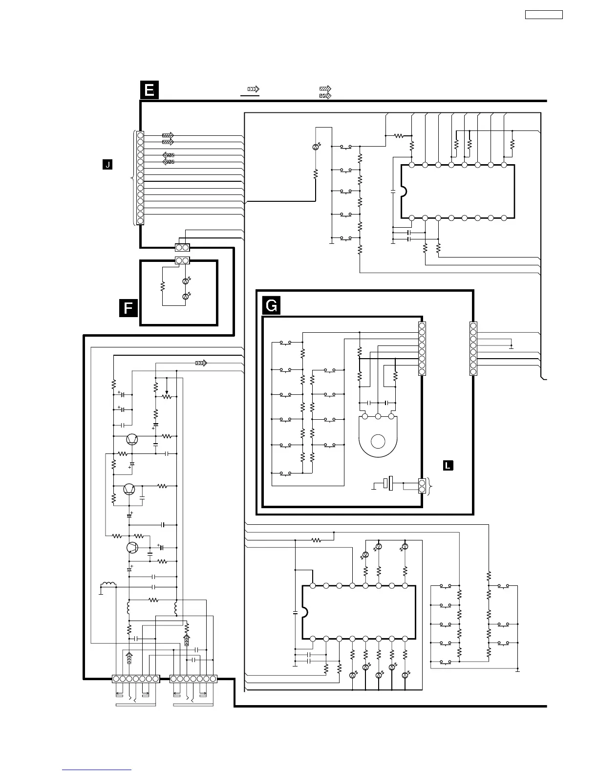
19.4. (E) Panel Circuit, (F) LED Circuit & (G) Tact Switch Circuit
12
3
COMB
A
2
4
6
7
5
3
1
2
4
6
7
5
3
1
1
2
3
4
5
6
8
7
1
2
3
4
5
6
8
7
1
2
1
2
1
2
3
4
5
6
14
12
10
8
7
9
11
13
1
2
D600
SLI325URCT31
R600
4.7K
R601
1K
R602
1K
R603
1.2K
R604
1.8K
R605
2.2K
S601
POWER
S602
DOLBY PRO
LOGIC
S603
SUPER
SURROUND
S604
DECK 1/2
S605
REC
R681
10K
R612
100
C679
0.1
R623 4.7K
R622 4.7K
R617
4.7K
C673 100P
C678 100P
R613
1K
R614
1K
R669
10K
R668
6.8K
R661
1K
R667
4.7K
R662
1K
R666
2.7K
R663
1.2K
R665
2.2K
R664
1.8K
S614
SEQ
S612
SSEQ
S611
DISC5
S610
DISC4
S609
DISC3
S608
DISC2
S607
DISC1
S606
CD OPEN/
CLOSE
D626
D628
D629
R705
2.7K
R707
2.7K
R708
1.8K
D625
D623
D621
D622
D624
R704
3.3K
R703
3.3K
R702
3.3K
R701
3.3K
R700
3.3K
R732
100
R731
100
C634 100P
C635 100P
R670 10K
C902
100P
C901
100P
R913
47K
R912
47K
R900
10K
R901
1K
R902
1K
R909
10K
R903
1.2K
R908
6.8K
R904
1.8K
R907
4.7K
R905
2.2K
R906
2.7K
S901
REW
S902
CD PLAY
S903
TUNER/BAND
S904
FF
S905
STOP
S906
DECK 2 OPEN
S910
DISPLAY
S909
DECK 1 OPEN
S908
AUX
S907
TAPE
VR600
EVEKE2F3524M
VOLUME JOG
R696
8.2K
VR602
R695
100
C668
50V1
R697
4.7K
C664
1000P
C665
100P
C663
50V1
R682
330K
R684
8.2K
R683
47
C662
0.047
R690
330K
C670
50V0.33
C917
1000P
R937
2.2K
R938
470K
C916
50V4.7
C919
470P
R939
4.7K
C918
50V3.3
C669
0.01
R972
560
L607
G0C3R3JA0030
L608
G0C100JA0030
R970
680
R969
680
R649
560
D631
D630
R694
330
C667
10V100
C666
1000P
Q606
Q607
Q900
PANEL CIRCUIT
SCHEMATIC DIAGRAM - 26
TACT SWITCH CIRCUIT
PBL
PBR
AGND
REC_L
REC_R
+15V
REC_01
MOT10V
PL_GND
DMT
DECK1_H
BP1
MOT_01
TO
DECK CIRCUIT
(CN1001) ON
SCHEMATIC
DIAGRAM - 33
PBL
PBR
AGND
REC_L
REC_R
+15V
REC_01
MOT10V
PL_GND
DMT
DECK1_H
BP1
MOT_01
LED_DVD
DVREF+
SYS6V
MICSW
+9V
MIC
MIC_GND
HP_SW
K3
VREF+
LED_DVD
SERC
SERD
LED9V
SW5V
SERA
SERC
MICSW
K2
GND2
VOL_B
VREF+
VOL_A
K2
VOL_B
VREF+
VOL_A
K2
VJOG_B_1
VREF+_1
VJOG_A_1
VCC
2PL
1PL
H1
REC
BP1
1N
DMT
GND
DAT
CLK
EC_CTL1
EC_CTL2
EC_CTL3
ECMUTE
DECK1
IC601
C1BB00000574
I/O EXPANDER
W601A
W601B
CP603
CP900 CN900
GND
DAT
CLK
LED_
DISC1
LED_
DISC2
LED_
DISC3
LED_
DISC4
LED_
DISC5
VCC
MBP2
MBP1
LED_
DVD
LED_
SSEQ
LED_
SS
LED_
SW
LED_
DPL
IC604
C1BB00000574
I/O EXPANDER
MIC1 MIC2
JK900JK600
LED
CIRCUIT
K1
VREF+
PL2
PL1
DECK1_H
REC_H
BP1
MOTOR
DMT
C636
0.1
: +B SIGNAL LINE : RECORD SIGNAL LINE
: PLAYBACK SIGNAL LINE: MIC SIGNAL LINE
D630, 631
B3ACA0000234
D626 - 629
B3ACA0000234
D621 - 625
B3ACA0000234
VR602
EVUF2AF25B14
Q606
KTC3199GRTA
MIC AMP
Q607
2SC1740SSTA
MIC AMP
Q900
2SC1740SSTA
LIMITTER
C681 0.022
C682
0.022
BS4
RMBX0031
TO
POWER
SUPPLY
CIRCUIT
(CN900) ON
SCHEMATIC
DIAGRAM - 35
H901/
W901
C684
0.01
C683
0.01
L610
G0C470JA0030
C685
16V220
1
2
1516
3
14
4
13
5
12
6
11
7
10
8
9
1
2
1516
3
14
4
13
5
12
6
11
7
10
8
9
95
SA-VK61DEE

Table of Contents

Related product manuals