EasyManua.ls Logo

Panasonic SA-VK61DEE - Page 92

Panasonic SA-VK61DEE
156 pages
Print Icon
To Next Page IconTo Next Page
To Next Page IconTo Next Page
To Previous Page IconTo Previous Page
To Previous Page IconTo Previous Page
Loading...
1
2
3
12
11
10
2
4
6
8
9
7
5
3
1
12
11
10
2
4
6
8
9
7
5
3
1
1
2
3
4
5
6
14
12
10
8
7
9
11
13
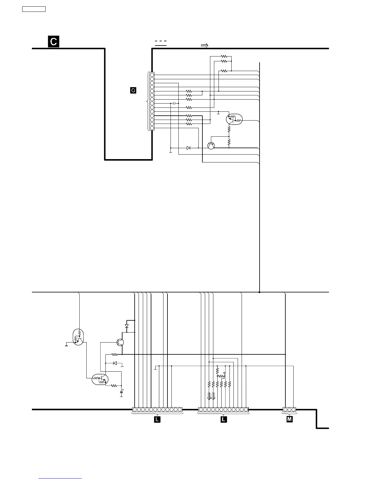
Q7
MOT10V
LED9V
FAN
SW5V
+8V
NC
DIGITAL_GND
-9V
+9V
VIDEO_GND
DSP_GND
POWER_GND
MUTE_H
DCDET
AGND
AGND
FRR
FRL
+15V
TGND
SUB+B
NC
SUB+BGND
MOT10V
LD9V
FAN
SW5V
+8V
-9V
+9V
MUTE_H
DCDET
FRR
FRL
+15V
SUB+B
MOT10V_CTL
R107
10K
R106
1K
D100
B0EAKM000117
R112 12K
R111 22K
R110 220
R105 22K
R104 12K
R109 12K
R108 27K
R103
10K
R100 10K
R101 10K
Q100
KRC102MTA
PLUNGER MOTOR SUPPLY
CONTROL SWITCH
Q101
C100
0.47
CHG_CW
CHG_HALF
8V
CHG_CCW
CLAMP
OPEN
SW1
PGND
SW2
DGND
5V
POSITION
BOTTOMSW
PLUNGER
VREF+
CHG_CW
CHG_HALF
CHG_CCW
CHG_AD2
CHG_SW
CHG_PLGR
MOT10V
+8V
SW5V
TO
CD LOADING
CIRCUIT
(CN1) ON
SCHEMATIC
DIAGRAM - 38
MAIN CIRCUIT
CN301 CN300 CN302
TO
POWER SUPPLY CIRCUIT
(CP501) ON
SCHEMATIC DIAGRAM - 34
SCHEMATIC DIAGRAM - 23
: +B SIGNAL LINE
: -B SIGNAL LINE
: MAIN SIGNAL LINE
TO
POWER SUPPLY CIRCUIT
(CP500) ON
SCHEMATIC DIAGRAM - 34
TO
POWER CIRCUIT
(W953) ON
SCHEMATIC DIAGRAM - 36
CN309
Q101
KTA12710YTA
CD MOTOR SUPPLY SWITCH
Q7
B1GBCFJN0021
CURRENT CONTROL
R72
4.7K
CHG_AD1
Q4
Q4
B1BBCF000006
SWITCH
W33 0
W31 0
W32 0
W34 0
W35 0
W36 0
W39
0
W38 0
D12
B0JCPC000004
D11
B0BC013A0007
R75
470
C70
16V220
Q8
Q8
B1GDCFGA0014
CURRENT CONTROL
92
SA-VK61DEE

Table of Contents

Related product manuals