EasyManua.ls Logo

Panasonic TH-37PW7BX - P-Board (2 of 6) Schematic Diagram

Panasonic TH-37PW7BX
159 pages
Print Icon
To Next Page IconTo Next Page
To Next Page IconTo Next Page
To Previous Page IconTo Previous Page
To Previous Page IconTo Previous Page
Loading...
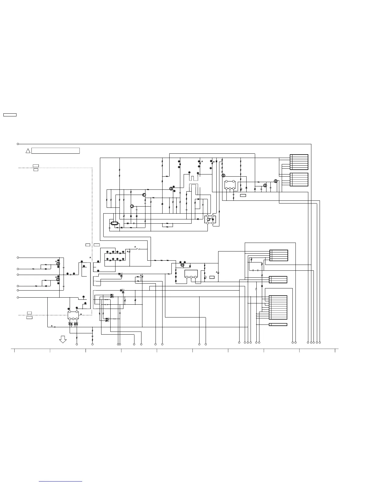
15.8. P-Board (2 of 6) Schematic Diagram
R527
220K
ZH26
R642
0.68
R656
47K[F]
R536
200
R542
330K[F]
Q505
B1CEJQ000002
IC505
CNC1S171RLL2
C613
0.1[KB]
ZH41
P11
K1KA07A00096
GND
GND
GND
NC
Vsus
Vsus
NC
R619
0.68
R640
4700[F]
ZH27
D580
MAZ40620MF
C627
1000P[KB]
C520
1000P
Q511
B1ABCF000134
C611
1700u/200V
R526
220K
R590
8.2K
D570
MA2C165001VT
ZH29
R539
200
D569
MA2C18800E
C612
220P
R647
0
C604
0.1[KB]
D514
MAZ40620MF
C615
1700u/200V
Q525
B1CBGD000001
C614
1[KB]
R627
7500
Q507
B1DEFQ000008
R629
22K[F]
T601
ETS28AZ1J9AD
ZH25
Q530
B1CBGD000001
IC506
C0ZBZ0000878
R646
0
D584
MAZ40750MF
R680
120
D501
B0HAPR000010
R541
1800[F]
D516
MA2C18800E
R625
470[F]
R620
10K
R594
10
R641
10[F]
R679
120
Q506
B1ADRC000007
P2
K1KA06A00180
VSUS
VSUS
NC
GND
GND
GND
D575
MA2C18800E
ZH39
R626
150K[F]
R643
0.68
ZH47
Q504
2SD13280SL
C603
47
R657
3300[F]
R622
150K[F]
R636
150K[F]
R658
1M
R633
100
R534
220K
R543
330K[F]
C616
1000P
D571
MAZ4051NM1KT
R589
8.2K
ZH28
R681
22
C618
1000P
R648
150K[F]
ZH46
R638
1.0
ZH23
D512
MA2C165001VT
R610
750
R637
0.68
R621
8.2K
C629
0.01[KB]
R533
22K
R628
3K
R662
130K[F]
C451
100P
ZH108
C550
1000P[KB]
R528
4.7
R482
390
P12
K1KA05A00139
STB12V
STB_PS
GND
+15V
Vda
R674
33K
D545
MAZ41800HF
T404
ETS42LZ2126AD
IC512
C0DAEMB00003
ZH91
C456
100P
R655
0.20
D544
MAZ41800HF
ZH85
C584
0.022[KB]
R588
180[F]
Q412
B1DEFQ000008
ZH78
D534
MA3D752A
ZH93
ZH107
D542
MAZ41800HF
ZH80
R664
9100[F]
C555
100u/100V
C556
1500u/16V
D572
MA2C18800E
ZH79
ZH109
D528
MA3X15300L
R631
33K
D543
MAZ41500MF
J502
LSJW0001
C625
10
ZH86
R663
2.2
ZH94
C606
1[KB]
D533
B0HAPR000009
Q413
B1DEFQ000008
D531
B0HDRM000002
ZH84
R624
0.22/1W
D423
B0JAME000081
R476
2.2
ZH104
ZH81
P23
K1KA03A00213
GND
+15V
+15V
ZH105
D568
MA3J142D0L
ZH82
R592
3K[F]
C581
0.022[KB]
D532
B0HAPR000009
R632
220
D529
MA3X15300L
R478
390
R669
130K[F]
C624
1.0
R698
0.20
ZH74
T407
ETQ11K5AZ
P5
K1KA11A00073
GND
GND
GND
+12Vs
+12Vs
+12Vs
GND
GND
STB5V
+12V
+12V
C605
88u/280V
J501
LSJW0001
ZH110
D425
B0JAME000081
Q527
B1DEHL000018
D540
B0HAPR000009
L509
J0JBC0000032
R676
33K
R551
100K
ZH83
C557
25V/1500
ZH111
ZH99
R665
2000
ZH90
PR601
F2A1E1520009
L510
EXCELDR25V
R477
2.2
R675
2.2
C465
220P
ZH106
C577
33/100V
ZH72
C457
0.022u
D539
B0HAPR000009
D536
MA3D752A
Z1
LSJR0003
R691
100K
C619
0.1[KB]
R595
2200
R630
120
D582
MAZ705600F
Vda
R627
TNPA3213 :7500
TNPA3213AB:8200
R624
TNPA3213 :0.22/1W
TNPA3213AB:0.22/2W
TO
(SS11)
SS-BOARD
TO
(SC2)
SC-BOARD
TO
(SS12)
SS-BOARD
TO
SC-BOARD(SC23)
TO
(Z5)
Z-BOARD
VSUS
7
3
4
5
6
2
1
AVAM
AH
AQ
AFAC AG
AK AUAPAN AWASAO AT
AD
AL
AA
AR
AE AJAB AI
P-BOARD TNPA3213AB (2/6)
!
15 1811 1310 17161412
HOT
COLD
HOT
COLD
COLDHOT
170.6
170.6
0
0
0
0.1
0
0
0
0
170.7
0
170.7
67.9
15.4
0
11.5
11.5
0
12.2
0
0
0
0
12.2
12.2
12.2
4.5
12.2
15.0
0
15.0
P-BOARD
(4/6)
TO
2
1
4
3
7
6
5
4
3
2
1
11
12
2
3
8
9
4
5
7
6
1
2
5
3
4
1
2
3
4
5
6
5
4
3
2
1
14
15
13
17
18
19
1
3
4
6
5
7
10
11
9
8
123
3
2
1
6
5
2
4
1
11
10
9
8
7
6
5
4
3
2
1
1
TH-37/42PW7 series
TH-37/42PWD7 series
P-Board (2 of 6) Schematic Diagram
TH-37/42PW7 series TH-37/42PWD7 series P-Board (2 of 6) Schematic Diagram
TH-37PW7BX
72

Table of Contents

Related product manuals