EasyManua.ls Logo

Paradox MG5000+ - MG5000+ PCB Layout and Connections

Paradox MG5000+
55 pages
Print Icon
To Next Page IconTo Next Page
To Next Page IconTo Next Page
To Previous Page IconTo Previous Page
To Previous Page IconTo Previous Page
Loading...
8
MG5000+ / MG5050+ Installation Guide
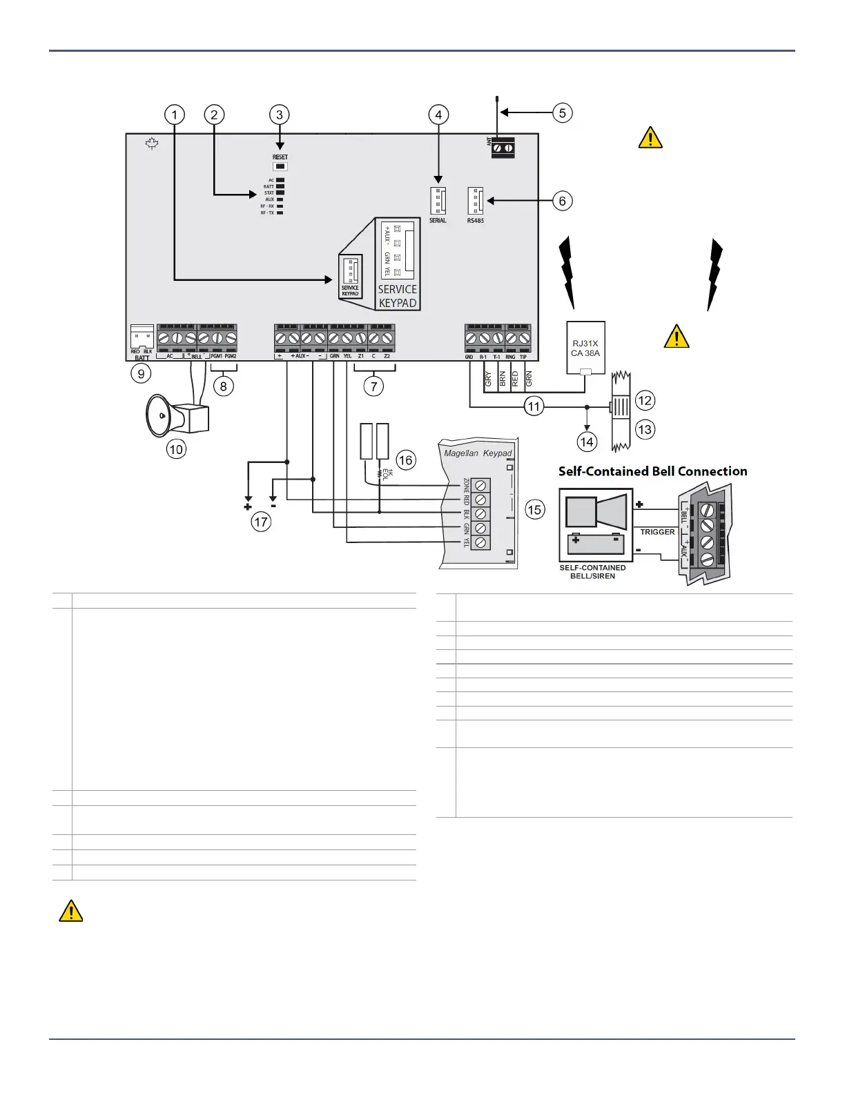
MG5000+ PCB Layout
To provide maximum
lightning protection we
strongly recommend having
separate earth connections
for the dialer and zone
ground terminals.
Disconnect
telephone line
before servicing.
1 Four-pin connector can be used for quick installation of a keypad
2
LEDs
AC LED:
ON = AC present; OFF = AC missing
Battery LED:
ON = Battery present; OFF = No battery
STAT LED:
Flashing once per second = Normal operation
AUX LED:
ON = Aux present; OFF = Aux off
RF-RX LED:
FLASH ON = RF message reception
RF-TX LED:
FLASH ON = RF transmission from panel
3Panel reset
4 Serial: Used for connecting the IP Internet Module/PCS (Data); also used for
In-Field Firmware upgrade through a 307USB Direct Connect Interface
5Antenna
6 RS485 connector
7Zone Input
8 PGMs: these jumpers allows you to choose whether the solid state relay
PGMs are grounded (-), or give out 12V (+).
9 Backup Battery connections
10 The
BELL output will shutdown if the current exceeds 3A
11 AWG #14 single conductor solid copper wire
12 Ground clamp
13 Cold water pipe grounding
14 To ground
15 Keypad zone configuration
16 Zone connection, if EOL is enabled, see section [706] option 2,
on page page 28
17 To connect additional wiring to auxiliary power, use the red (+) and black
(-) keypad connectors; auxiliary power will shut down if current exceeds
3A; if the auxiliary output is overloaded and shuts down, you must
disconnect all loads from the output for at least 10 sec. before
reconnecting any load back to the auxiliary output
Do not cut, bend, or alter
the antenna, and ensure
that electrical wires or other
type of wires do not cross
over it, as this may affect
signal reception. Do not
install the antenna near
wires as it may cause
interference.
40 VA transformer strongly recommended.
Max. number of keypads: 15 keypads
Max. aux. current: 700 mA
Max. distance of bus module from panel: 76 m (250 ft.)
Max. total run of wire: 230 m (750 ft.)
This equipment must be installed and maintained by qualified service personnel only.
The sum of the current drawn from the
BELL and AUX must be limited to 1.3A. Exceeding this limit will overload the panel power supply
and lead to complete system shutdown.

Table of Contents

Related product manuals