EasyManua.ls Logo

Philips BDL3215E/00 - Key Board

Philips BDL3215E/00
188 pages
Print Icon
To Next Page IconTo Next Page
To Next Page IconTo Next Page
To Previous Page IconTo Previous Page
To Previous Page IconTo Previous Page
Loading...
56
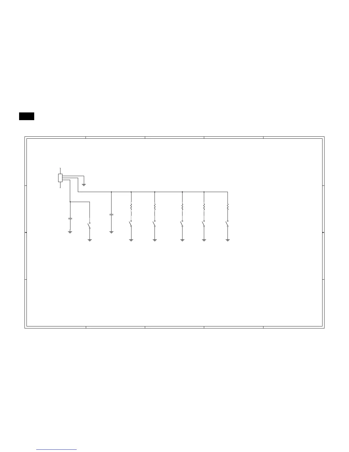
6.4 Key Board
715G3901K01000002S
1
1
2
2
3
3
4
4
5
5
A A
B B
C C
D D
Up LeftMenu RightDown
Power
- Channel + - Volume +
CN001 A1
C001 C2
C002 B3
R001 B3
R002 B4
R003 B5
R004 B5
R005 B6
SW001 C2
SW002 C3
SW003 C4
SW004 C5
SW005 C5
SW006 C6
C001
0.1uF/16V
C001
0.1uF/16V
R001
1K1/10W
R001
1K1/10W
SW006
SW
SW006
SW
R004
3.6KOHM 1/10W
R004
3.6KOHM 1/10W
SW004
SW
SW004
SW
C002
0.1uF/16V
C002
0.1uF/16V
R005
5K6 1/10W +/-1%
R005
5K6 1/10W +/-1%
R002
47KOHM +-1% 1/10W
R002
47KOHM +-1% 1/10W
SW002
SW
SW002
SW
SW001
SW
SW001
SW
1
2
3
45
CN001
CONN
CN001
CONN
SW005
SW
SW005
SW
SW003
SW
SW003
SW
R003
18K 1/10W
R003
18K 1/10W

Table of Contents

Related product manuals