EasyManua.ls Logo

Philips VR109/55 - Main 4;4 Schematic Diagram; Function Schematic Diagram; Main 4;4 Schematic Diagram Parts Location Guide

Philips VR109/55
72 pages
Print Icon
To Next Page IconTo Next Page
To Next Page IconTo Next Page
To Previous Page IconTo Previous Page
To Previous Page IconTo Previous Page
Loading...
NOTE :
THE VOLTAGE FOR PARTS IN HOT CIRCUIT IS MEASURED USING
HOT GND AS A COMMON TERMINAL.
CAUTION
FOR CONTINUED PROTECTION AGAINST FIRE HAZARD,
REPLACE ONLY WITH THE SAME TYPE FUSE.
CAUTION !
Fixed voltage (or Auto voltage selectable ) power supply circuit is used in this unit.
If Main Fuse (F001) is blown, check to see that all components in the power supply
circuit are not defective before you connect the AC plug to the AC power supply.
Otherwise it may cause some components in the power supply circuit to fail.
1-11-12 1-11-13 1-11-14
H67T0SCM4
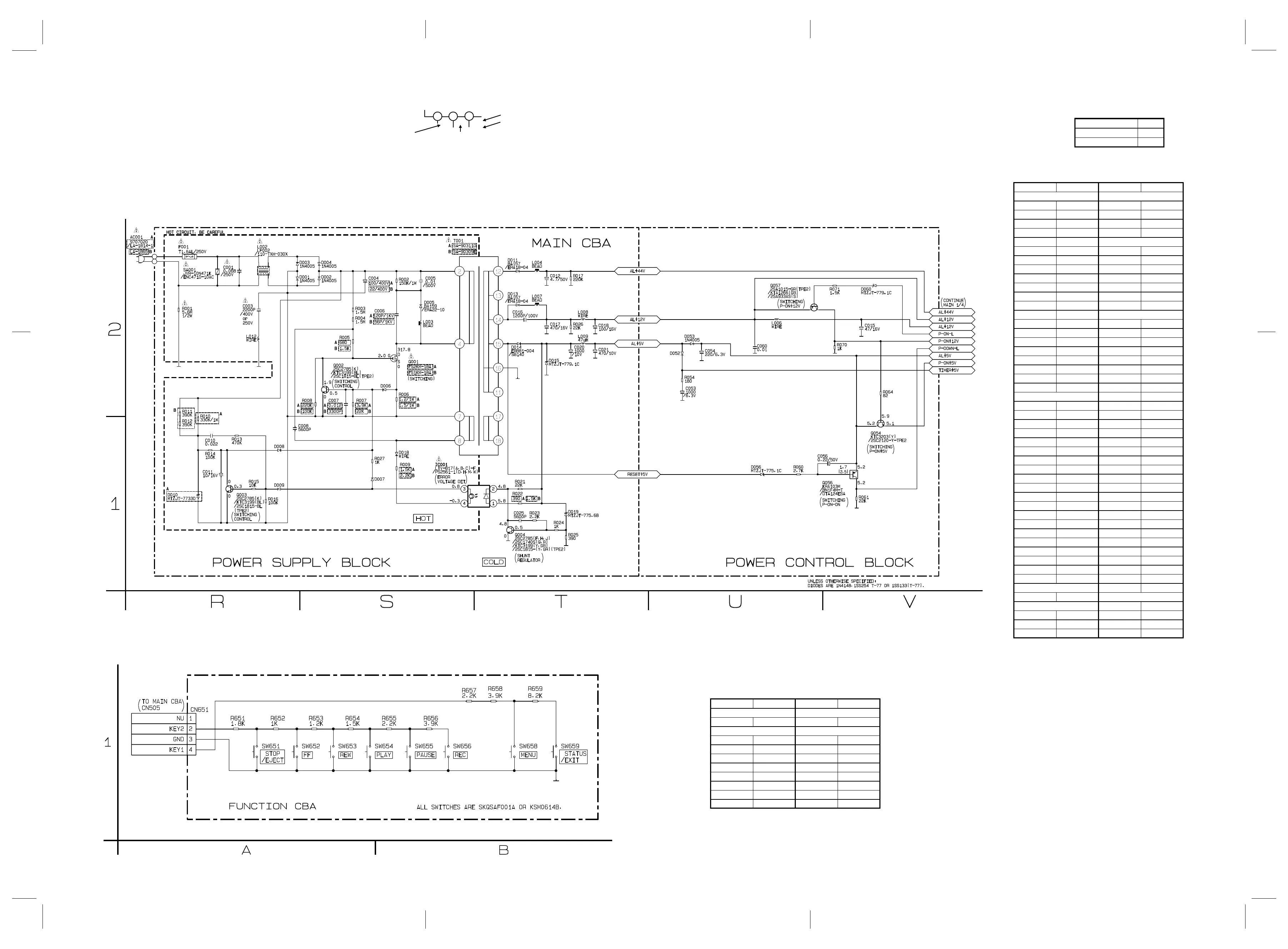
Main 4/4 Schematic Diagram
THE SAME VOLTAGE FOR
BOTH PLAY & REC MODES.
INDICATES THAT THE VOLTAGE
IS NOT CONSISTENT HERE.
MODE: SP/REC
PLAY MODE
REC MODE
1
2
3
5.0
5.0
(2.5)
Function Schematic Diagram
FUNCTION Schematic Diagram Parts Location Guide
Ref No. Position Ref No. Position
CN651A-1R659B-1
R651 A-1 SW651 A-1
R652 A-1 SW652 A-1
R653 A-1 SW653 A-1
R654 A-1 SW654 B-1
R655 B-1 SW655 B-1
R656 B-1 SW656 B-1
R657 B-1 SW658 B-1
R658 B-1 SW659 B-1
RESISTORSCONNECTORS
SWITCHESRESISTORS
MAIN 4/4 Schematic Diagram Parts Location Guide
Ref No. Position Ref No. Position
C001 R-2 L006 U-2
C003 R-2 L007 T-2
C004 S-2 L008 T-2
C005 S-2 L009 T-2
C006 S-2
C007 S-2 Q001 S-2
C008 R-1 Q002 S-2
C010 R-1 Q003 R-1
C011 R-1 Q004 T-1
C012 T-2 Q054 V-1
C015 V-2 Q056 V-1
C016 T-2 Q057 U-2
C017 T-2
C018 T-2 R001 R-2
C020 T-2 R002 S-2
C021 T-2 R003 S-2
C025 T-1 R004 S-2
C053 U-2 R005 S-2
C054 U-2 R006 S-2
C056V-1R007S-2
C060 U-2 R008 S-2
R009 S-1
D001 R-2 R010 R-1
D002S-2R011R-2
D003 R-2 R012 R-1
D004S-2R013R-1
D005S-2R014R-1
D006S-2R015R-1
D007S-1R016R-1
D008 R-1 R017 T-2
D009 R-1 R021 T-1
D010 R-1 R022 T-1
D011 T-2 R023 T-1
D013 T-2 R024 T-1
D014 T-2 R025 T-1
D015 T-2 R026 T-2
D018S-1R027S-1
D019 T-1 R054 U-2
D052 U-2 R060 U-1
D053 U-2 R061 V-1
D056 U-1 R064 V-2
D060V-2R070V-2
R071 V-2
IC001 S-1
AC001 R-2
L002 R-2 F001 R-2
L003 S-2 SA001 R-2
L004 T-2 T001 S-2
COILSCAPACITORS
TRANSISTORS
DIODES
COILS
RESISTORS
ICS
MISCELLANEOUS
H67T0SCF
Comparison Chart of
Models and Marks
MODEL MARK
VR109/55 A
VR109/75 B
www.freeservicemanuals.info
06/28/2012
World of Free Manuals