EasyManua.ls Logo

Power Electronics SD700 Series - Group 14 - G14: Multi-references; Group 15 - G15: Inch Speeds

Power Electronics SD700 Series
91 pages
Print Icon
To Next Page IconTo Next Page
To Next Page IconTo Next Page
To Previous Page IconTo Previous Page
To Previous Page IconTo Previous Page
Loading...
POWER ELECTRONICS
POWER CONNECTION
51
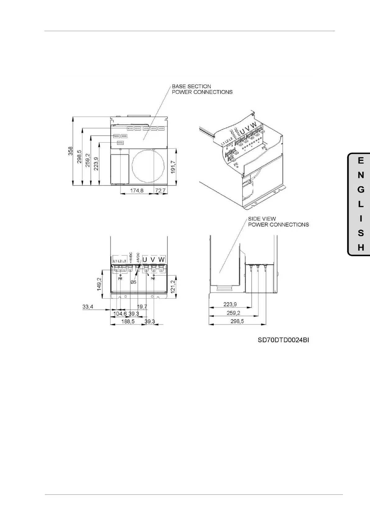
6.10.3. Connections for Frame 3
Figure 6.21 Location of power connections for equipments of Frame 3 [mm]

Other manuals for Power Electronics SD700 Series

Related product manuals