EasyManua.ls Logo

PowerWave AR1200 - Fon; DPX Connections

PowerWave AR1200
83 pages
Print Icon
To Next Page IconTo Next Page
To Next Page IconTo Next Page
To Previous Page IconTo Previous Page
To Previous Page IconTo Previous Page
Loading...
PCBA Connections AR Standard Repeater
044-05250 Rev B 2-9
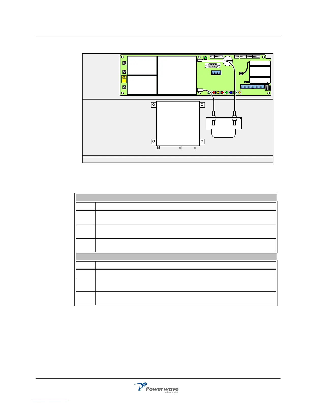
Figure 2-6 FOU
Table 2-10 FOU/DPX connections
FON
The FON is illustrated in Figure 2-7 and the LED indicators are described in Table 2-11. The
FON has three coaxial ports and two optical ports for the downlink and uplink RF signal. Table
2-12 defines the port numbers, connector types, and port usage.
on the donor side (BMU or RMU)
Port Connected to
ANT BMU: BS -20dB on the donor (BS) DC
RMU: DPX on the donor (BS) DC
HI BMU: P101 on the FON (or a CMB or CMD)
RMU: IN on the LNA/DL
LO BMU: P102 on the FON (or a CMB or CMD)
RMU: P5 on the PA/UL
on the service side (FOR and WRH)
Port Connected to
ANT Service antenna
HI FOR: P5 on the PA/DL
WRH: P5 on the PA/DL or P4 on the BA
LO FOR: IN on the LNA/UL
WRH: IN on the LNA/UL or P2 101 on the WBA
P102
P130
Beryllium
oxide
hazard
P103
P101
P114
P108P116P111
P105P109P115
P106
P104
RX
TX
P113
P112
P110
FON
DPX
ANTLO HI
P102
P101
FOU

Table of Contents