EasyManua.ls Logo

PowerWave AR1200 - FOR RF to Fiber Optic Connections; FOR RF-To-Fiber Optic Connections

PowerWave AR1200
83 pages
Print Icon
To Next Page IconTo Next Page
To Next Page IconTo Next Page
To Previous Page IconTo Previous Page
To Previous Page IconTo Previous Page
Loading...
Connections AR Standard Repeater
3-8 044-05250 Rev B
FOR RF to Fiber Optic Connections
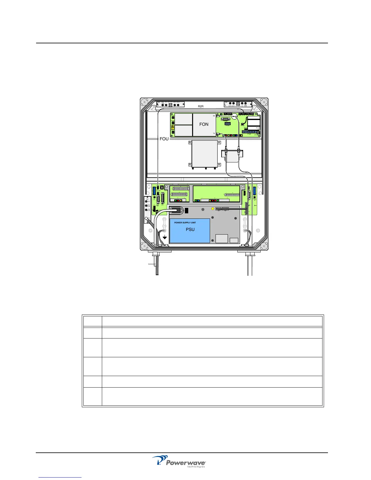
Figure 3-9 illustrates a FOR for service antenna and separate TX/RX fiber optic cables from a
BMU. By adding WDMs and OSPs, a number of FORs can be fed by one BMU with double or
single fiber communication. Table 3-4 describes the steps for making the connections.
Figure 3-9 FOR RF-to-Fiber Optic Connections
Table 3-4 FOR RF-to-Fiber Connections Procedure
Step Action
1 Mount AR Repeater
2
Connect the service antenna coaxial cable to the left in the cabinet using an N-
type male connector.
3
Connect the TX and RX fiber optic cables from the BMU to the FON located in
the upper part of the FOU
4 Connect station ground, if to be used
5
Mount the main power plug to the main power cord but do not connect the main
power.
MS
DPX
ANT
TEST
DC
-30 dB
-20 dB
POWER SUPPLY UNIT
ALLGON INNOVATION
SWEDEN M105 R6
1
PARKING
FOR W5
W5
8
P27
W6B 10
1
P33
ALAR M
P23
LNA
UP-LINK
P32
MODEM
A
U
X
1
P28
DOOR
5
9
6
1
1
16
1
1
M
-
>
S
P11
P34
8
9
15
P26
15 16
S
-
>
M
1
2
3
89
P
3
6
5
X0A
X0B
2
V2
1
16
P12 P13
1
1
1
16
16
16
P4
P5
P6
c
b
a
c
b
a
c
b
a
c
b
a
1P232
1
b
a
1
16P3
16
1
16
P14
1
V1
1
1
1
1
1
4
6
1
15
6
9
15
2
16
1
2
4
5
8
5
P35
P21
PSU
6
10
P31
PC
P29
P24
P25
GND
7
6V6
LNA
DOWN-LINK
LED
P22
1
2
TX
OUT
LOWIN+ 7V ATTOUT2 OUT1
LNA
DL
OUT
LOW
IN ATT +7V OUT1 OUT2
LNA
UL
RX
FOU
PSU
R2R
P102
P130
Beryllium
oxide
hazar d
P103
P101
P114
P108P116P111
P105P109P115
P106
P104
RX
TX
P113
P112
P110
FON
BMU

Table of Contents