EasyManua.ls Logo

PowerWave AR1200 - RMU RF to Fiber Optic Connections; RMU RF-To-Fiber Optic Connections

PowerWave AR1200
83 pages
Print Icon
To Next Page IconTo Next Page
To Next Page IconTo Next Page
To Previous Page IconTo Previous Page
To Previous Page IconTo Previous Page
Loading...
AR Standard Repeater Connections
044-05250 Rev B 3-7
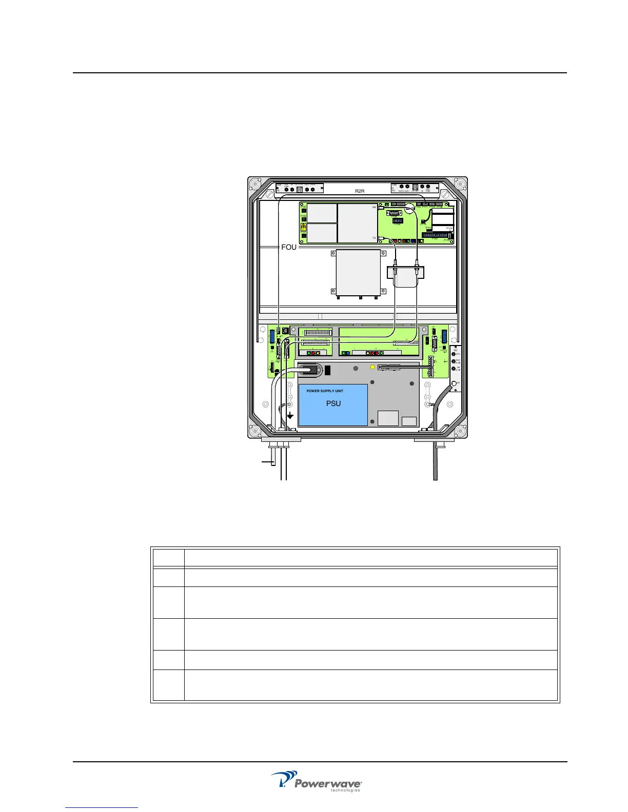
RMU RF to Fiber Optic Connections
Figure 3-8 illustrates an RMU for donor antenna and separate TX/RX fiber optic cables to one
FOR. By using WDMs and OSPs, up to four FORs, or eight using a high cover, can be fed in
parallel by an RMU with double or single fiber communication. Table 3-3 describes the steps
for making the connections.
Figure 3-8 RMU RF-to-Fiber Optic Connections
Table 3-3 RMU RF-to-Fiber Connections Procedure
Step Action
1 Mount AR Repeater
2
Connect the donor antenna coaxial cable to the right in the cabinet using an N-
type male connector
3
Connect the TX and RX fiber optic cables from the FON located in the upper part
of the FOU to an FOR
4 Connect station ground, if to be used
5
Mount the main power plug to the main power cord but do not connect the main
power.
MS
DPX
ANT
TEST
DC
-30 dB
-20 dB
POWER SUPPLY UNIT
ALLGON INN OVATION
SWEDEN M105 R6
1
PARKING
FOR W5
W5
8
P27
W6B 10
1
P33
ALAR M
P23
LNA
UP-LINK
P32
MODEM
A
U
X
1
P28
DOOR
5
9
6
1
1
16
1
1
M
-
>
S
P11
P34
8
9
15
P26
15 16
S
-
>
M
1
2
3
89
P
3
6
5
X0A
X0B
2
V2
1
16
P12 P13
1
1
1
16
16
16
P4
P5
P6
c
b
a
c
b
a
c
b
a
c
b
a
1P232
1
b
a
1
16P3
16
1
16
P14
1
V1
1
1
1
1
1
4
6
1
15
6
9
15
2
16
1
2
4
5
8
5
P35
P21
PSU
6
10
P31
PC
P29
P24
P25
GND
7
6V6
LNA
DOWN-LINK
LED
P22
1
2
TX
FOR
OUT
LOW
IN ATT +7V OUT1 OUT2
LNA
UL
OUT
LOWIN+7V ATTOUT2 OUT1
LNA
DL
FOU
PSU
R2R
P102
P130
Beryllium
oxide
hazar d
P103
P101
P114
P108P116P111
P105P109P115
P106
P104
RX
TX
P113
P112
P110
FON
RX

Table of Contents