EasyManua.ls Logo

Regency E33-NG10 - Minimum Clearances to Combustibles

Regency E33-NG10
48 pages
Print Icon
To Next Page IconTo Next Page
To Next Page IconTo Next Page
To Previous Page IconTo Previous Page
To Previous Page IconTo Previous Page
Loading...
E33-10 FPI Direct Vent Gas Insert | 15
|
15
installation
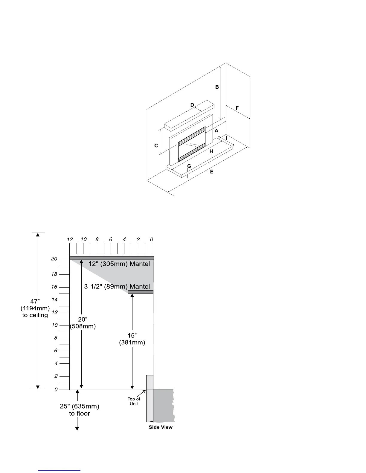
MINIMUM CLEARANCES TO COMBUSTIBLES
From Unit
Side Walls * A 8" (203 mm)
Ceiling B 47" (1194 mm)
Min. Mantel Height C 15" (381 mm)
Max. Mantel Depth D 12" (305 mm)
Alcove Width E 76" (1930 mm)
Alcove Depth F 36" (914 mm)
Hearth Height G 1-1/4" (32 mm)
Hearth Width H 45-1/2" (1156 mm)
Hearth Depth I 13" (330 mm)
* Alcove side wall must have a min. of 8"
clearance on one side.
* Measured from edge of glass frame.
COMBUSTIBLE MANTEL CLEARANCES
The minimum combustible mantel clearances from the top of the insert are shown in the following diagram:
Because of the extreme heat this replace emits, the mantel clear-
ances are critical.
Note: A non-combustible mantel may be installed at a lower height
if the framing is made of metal studs covered with a non-
combustible board.
Mantel can be installed anywhere in shaded area or higher using the
above scale.
Note: Ensure the paint that is used on the mantel and the facing is
"heat resistant" or the paint may discolour.

Table of Contents

Related product manuals