EasyManua.ls Logo

Regency Ultimate U1500E-LP - Mantel Clearances; Mantel Leg Clearances

Regency Ultimate U1500E-LP
68 pages
Print Icon
To Next Page IconTo Next Page
To Next Page IconTo Next Page
To Previous Page IconTo Previous Page
To Previous Page IconTo Previous Page
Loading...
12 | Regency Ultimate
U1500E Gas Fireplace
installation
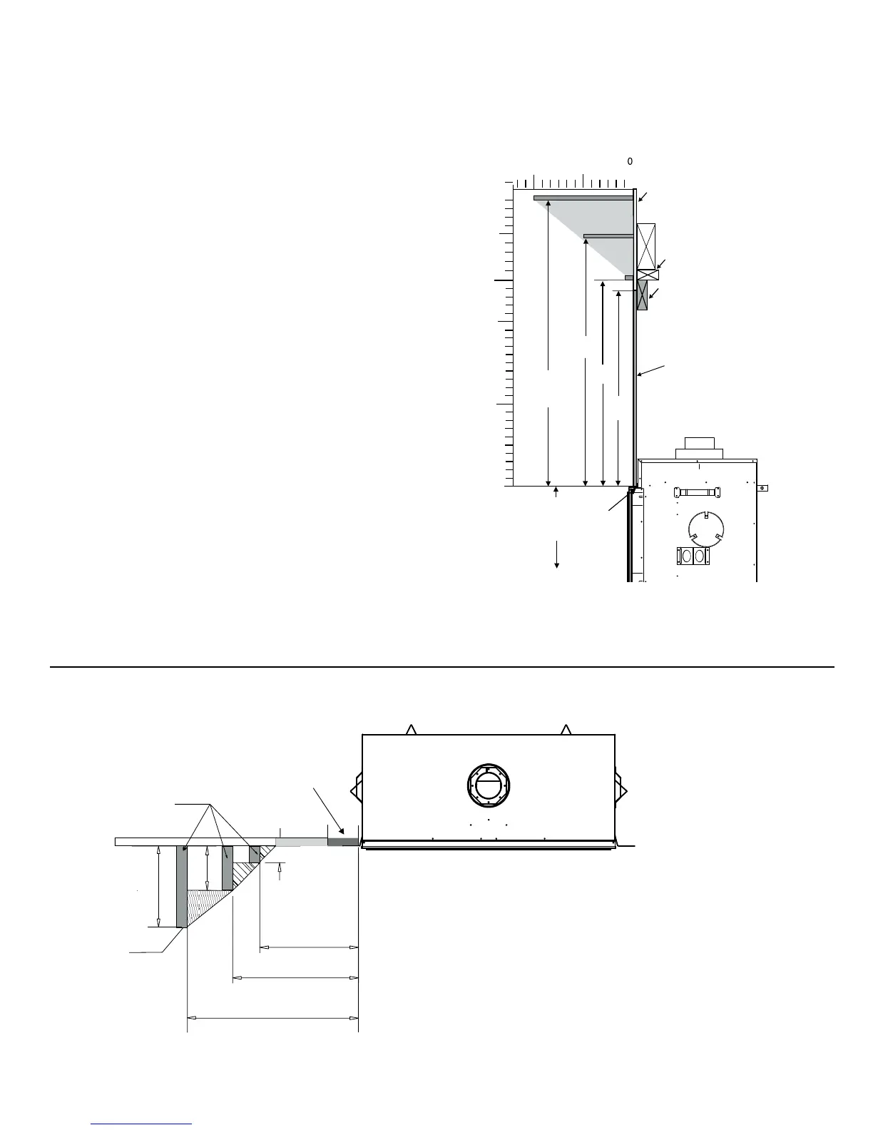
MANTEL CLEARANCES
Due to the extreme heat this replace emits, the mantel clearances
are critical. Combustible mantel clearances from top of front facing
are shown in the diagram on the right.
Note: Ensure the paint that is used on the mantel and the facing
is "high quality" or the paint may discolour.
MANTEL LEG CLEARANCES
Combustible mantel leg clearances as per diagram:
Wood Studs
0
Non-combustible
Facing
34"
(864mm)
24-1/4"
(616mm)
10"
(254mm)
30"
(762mm)
Top of
Fireplace
Opening
20"
(508mm)
6"
(152mm)
12"
(305mm)
29-1/2"
(749mm)
Steel
Stud
(On Edge)
1"
(25mm)
23-7/8"
(606mm)
6" (152mm)
12" (305mm)
Drywall
From base
of unit
25"
(635mm)
4"
Allowable mantel
leg projection
7-1/8” (181mm)
10”
(203mm)
13”( 279mm)
1.5" (38mm)
MANTEL LEG
3-1/4"
(83mm
)
Non-Combustibl
e
7”
(178mm)
(102mm)

Table of Contents

Related product manuals