EasyManua.ls Logo

Regency Ultimate U1500E-LP - Wiring Diagram

Regency Ultimate U1500E-LP
68 pages
Print Icon
To Next Page IconTo Next Page
To Next Page IconTo Next Page
To Previous Page IconTo Previous Page
To Previous Page IconTo Previous Page
Loading...
Regency Ultimate
U1500E Gas Fireplace | 37
installation
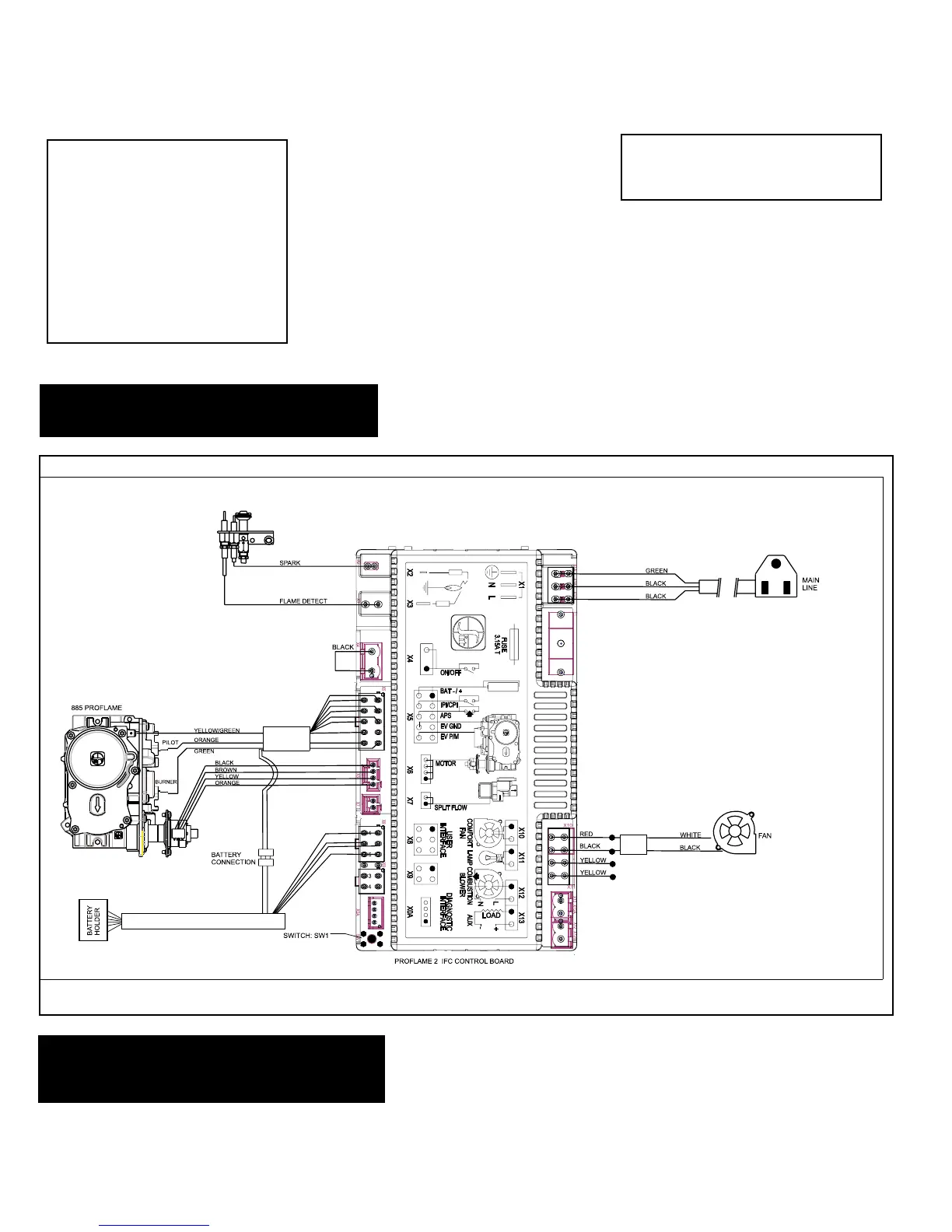
WIRING DIAGRAM
CAUTION: Label all wires prior to disconnection
when servicing controls. Wiring errors can
cause improper and dangerous operation.
DISCONNECT POWER SUPPLY TO UNIT PRIOR
TO WORKING ON ELECTRICAL COMPONENTS.
This heater does not require a 120V A.C. supply
for operation. In case of a power failure, the re-
mote control/thermostat will continue to operate.
However, a 120V A.C. power supply is needed
for the fan/blower operation.
CAUTION: Ensure that the wires do
not touch a hot surface and are away
from sharp edges.
WARNING:
Electrical Grounding
Instructions
This appliance is equipped with
a three pronged (grounding) plug
for your protection against shock
hazard and should be plugged
directly into a properly grounded
three-prong receptacle. Do not
cut or remove the grounding
prong from this plug.
Note:
4 AA Batteries must be installed into the wall
mounted battery holder, however for this unit to
operate when power is lost. See battery back
up instructions in this manual. The fan will not
operate during a power outage.

Table of Contents

Related product manuals