EasyManua.ls Logo

Regency Ultimate U1500E-LP - Unit Installation with Horizontal Termination; 5 X 8 Venting

Regency Ultimate U1500E-LP
68 pages
Print Icon
To Next Page IconTo Next Page
To Next Page IconTo Next Page
To Previous Page IconTo Previous Page
To Previous Page IconTo Previous Page
Loading...
Regency Ultimate
U1500E Gas Fireplace | 31
installation
7. Ensure that the pipe clearances to combus-
tible materials are maintained (Diagram 55).
Install the termination cap.
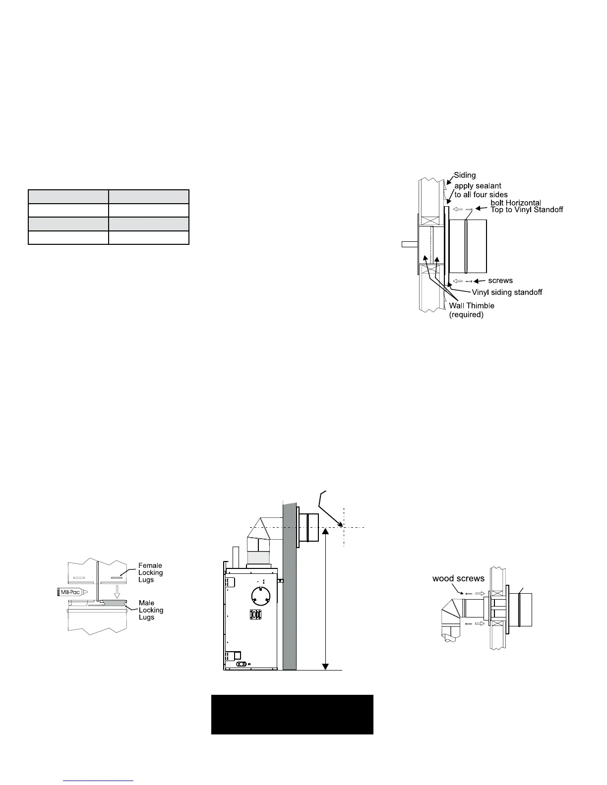
Note: If installing termination on a vinyl
siding covered wall, a vinyl siding
stando󰀨 or furring strips must be used
to ensure that the termination is not
recessed into the siding.
The four wood screws provided should be re-
placed with appropriate fasteners for stucco,
brick, concrete, or other types of sidings.
8. Before connecting the horizontal run of vent
pipe to the vent termination, slide the Wall
Thimble over the vent pipe. The wall thimble
is required for all horizontal terminations.
9. Slide the appliance and vent assembly
towards the wall carefully inserting the vent
pipe into the vent cap assembly. It is important
that the vent pipe extends into the vent cap
sufficient distance so as to result in a minimum
pipe overlap of 1-1/4 inches (32mm). Secure
the connection between the vent pipe and
the vent cap.
10. Install wall thimble in the center of the framed
hole and attach with wood screws (Diagram
4).
Install the vent system according to the
manufacturer's instructions included with the
components.
1. Set the unit in its desired location. Check
to determine if wall studs or roof rafters are
in the way when the venting system is at-
tached. If this is the case, you may want to
adjust the location of the unit. Rough in the
gas preferably on the right side of the unit
and the electrical (junction block is on the
left side) on the left.
2. Direct Vent pipe and fittings are designed with
special twist-lock connections to connect the
venting system to the appliance flue outlet.
A twist-lock appliance adaptor is required.
3. In conjunction with the Approved Vent system,
install the adaptor after the unit is set in its
desired location. Slip the adapter over the
existing inner and outer flue collar. Fasten to
the outer collar only with the 3 supplied screws
(drilling pilot holes will make this easier).
4. Level the fireplace and fasten it to the framing
using nails or screws through the top and
side nailing strips.
Note: For best results and optimum
performance with each approved
venting system, it is highly
recommended to apply “Mill-Pac”
sealant (supplied) to every inner pipe
connection. Failure to do so may result
in drafting or performance issues not
covered under warranty.
Horizontal runs of vent must be supported
every 3 feet (0.9 meter). Wall straps are avail-
able for this purpose.
6. Mark the wall for a square hole.-see chart
to left for size. The center of the square hole
should line up with the center-line of the
horizontal pipe. Cut and frame the square
hole in the exterior wall where the vent will
be terminated. See diagram 4 for center line
requirements.
If the wall being penetrated is constructed of
non-combustible material, i.e. masonry block
or concrete, an 8" (203mm) diameter hole
is acceptable.
Note:
a) The horizontal run of vent must be level,
or have a 1/4 inch rise for every 1 foot
of run towards the termination. Never
allow the vent to run downward. This
could cause high temperatures and may
present the possibility of a re.
b) The location of the horizontal vent
termination on an exterior wall must meet
all local and national building codes, and
must not be blocked or obstructed. See
"Exterior Vent Termination Locations"
section for more details.
5. Assemble the desired combination of pipe
and elbows to the appliance adaptor and
twist-lock for a solid connection.
C
L
C
L
41-3/8"
(1051mm)
Min. height (5
x 8”)
center
of hole
Horizontal Top* 3" (76mm)*
Horizontal Side 2 " (51mm)
Horizontal Bottom 2" (51mm)
Vertical Vent 2" (51mm)
Minimum Vent Clearances
to Combustibles
UNIT INSTALLATION WITH
HORIZONTAL TERMINATION
5" X 8" VENTING
(Rigid Vent Systems)
Below are the recommended framing dimen-
sions (inside measurements) for the 5" x 8"
rigid vent terminations - for use with a restop
or wall thimble.
* Clearances noted below must be maintained;
except when passing through a wall, ceiling or at the
termination where the use of a restop or wall thimble
reduces clearance to 1-1/2" (38mm).
IMPORTANT
Must use Rear Venting Deector packaged with
unit in rear vent horizontal termination
applications.
Diagram 1
Diagram 2
Diagram 3
Diagram 4

Table of Contents

Related product manuals