EasyManua.ls Logo

Robuschi Robox Evolution RB-DV - 4 Installazione; Ingombro E Disposizione; Collegamenti Delle Tubazioni

Default Icon
Print Icon
To Next Page IconTo Next Page
To Next Page IconTo Next Page
To Previous Page IconTo Previous Page
To Previous Page IconTo Previous Page
Loading...
12 / 44
4 INSTALLAZIONE
4.1 Ingombro e Disposizione
Le dimensioni e la massa di ROBOX DV sono riportate a pagina 41, la superficie di appoggio deve essere piana ed orizzontale (max 5 mm su
1 m) esente da vibrazioni ed in grado di sopportare il peso del gruppo, non esistono carichi dinamici.
Nota : Per fissare ROBOX DV a strutture metalliche contattare ROBUSCHI o un rivenditore autorizzato.
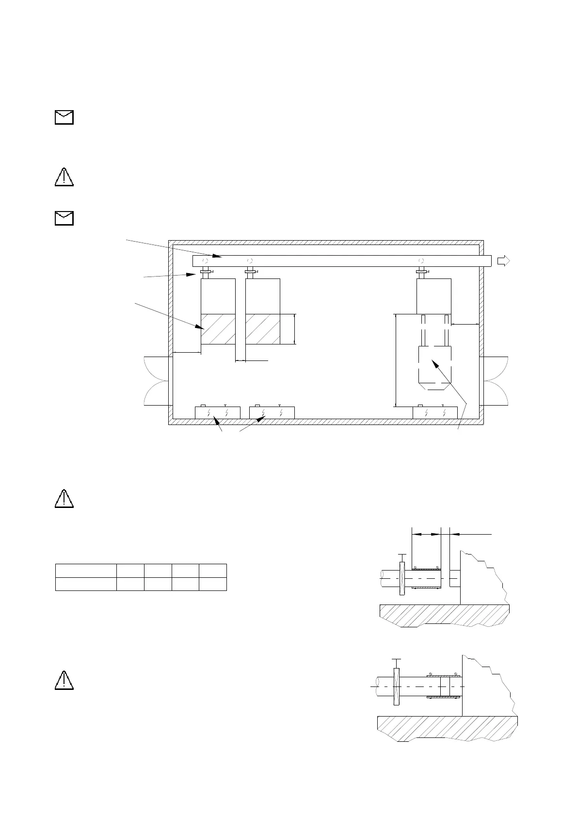
La figura 7 rappresenta la disposizione consigliata di più ROBOX DV con evidenziate le dimensioni consigliate per l’installazione e le
operazioni di manutenzione di ROBOX DV.
E’ possibile sostare nell’area utile per la manutenzione anche durante il funzionamento di ROBOX DV.
Attenzione : Non sostare nell’area di scarico della valvola limitatrice durante il funzionamento
Le porte o le aperture di accesso al locale devono essere adeguatamente dimensionate per consentire il passaggio dei carrelli elevatori
Nota : La quota L deve consentire il movimento del carrello elevatore per la posa in opera di ROBOX DV
Collettore cumune
Valvola di intercettazione
ROBOX ROBOX ROBOX
Area di manutenzione
1000
1000
1000
20 – 30 L
I E I E I E
Armadi elettrici Carrello elevatore
Fig. 6
4.2 Collegamenti delle tubazioni
Prevedere i tubi terminali dell’impianto secondo le dimensioni indicate nel disegno di ingombro a pagina 41
Installare sempre una valvola di intercettazione sui terminali dell’impianto per isolare ROBOX DV dall’impianto durante la manutenzione.
Attenzione: La superficie delle tubazioni di mandata può superare i 70°C
L 20 – 30 mm
Inserire i manicotti elastici e le relative fascette sui tubi terminali dell’impianto come mostrato
in figura 8.1.
Il terminale dell’impianto deve avere un tratto rettilineo di lunghezza uguale o superiore ad L
ROBOX DV 2 3 4 5
L 200 230 230 300
Posizionare il tubo terminale di ROBOX DV alla distanza indicata in Fig. 7.1
Fig. 7.1
Spostare il manicotto elastico nella posizione definitiva e serrare le fascette (Fig. 7.2)
Attenzione : Fissare i tubi terminali dell’impianto vicino ai
manicotti elastici
Dimensionare il diametro del collettore comune di mandata in modo che la velocità del
gas risulti inferiore a 30 m/s
Fig. 7.2

Table of Contents

Related product manuals