EasyManua.ls Logo

Rockwell Automation Allen-Bradley 1769-L24ER-QB1B - Page 53

Rockwell Automation Allen-Bradley 1769-L24ER-QB1B
332 pages
Print Icon
To Next Page IconTo Next Page
To Next Page IconTo Next Page
To Previous Page IconTo Previous Page
To Previous Page IconTo Previous Page
Loading...
Rockwell Automation Publication 1769-UM021I-EN-P - May 2018 53
Install the CompactLogix 5370 L2 Controller Chapter 3
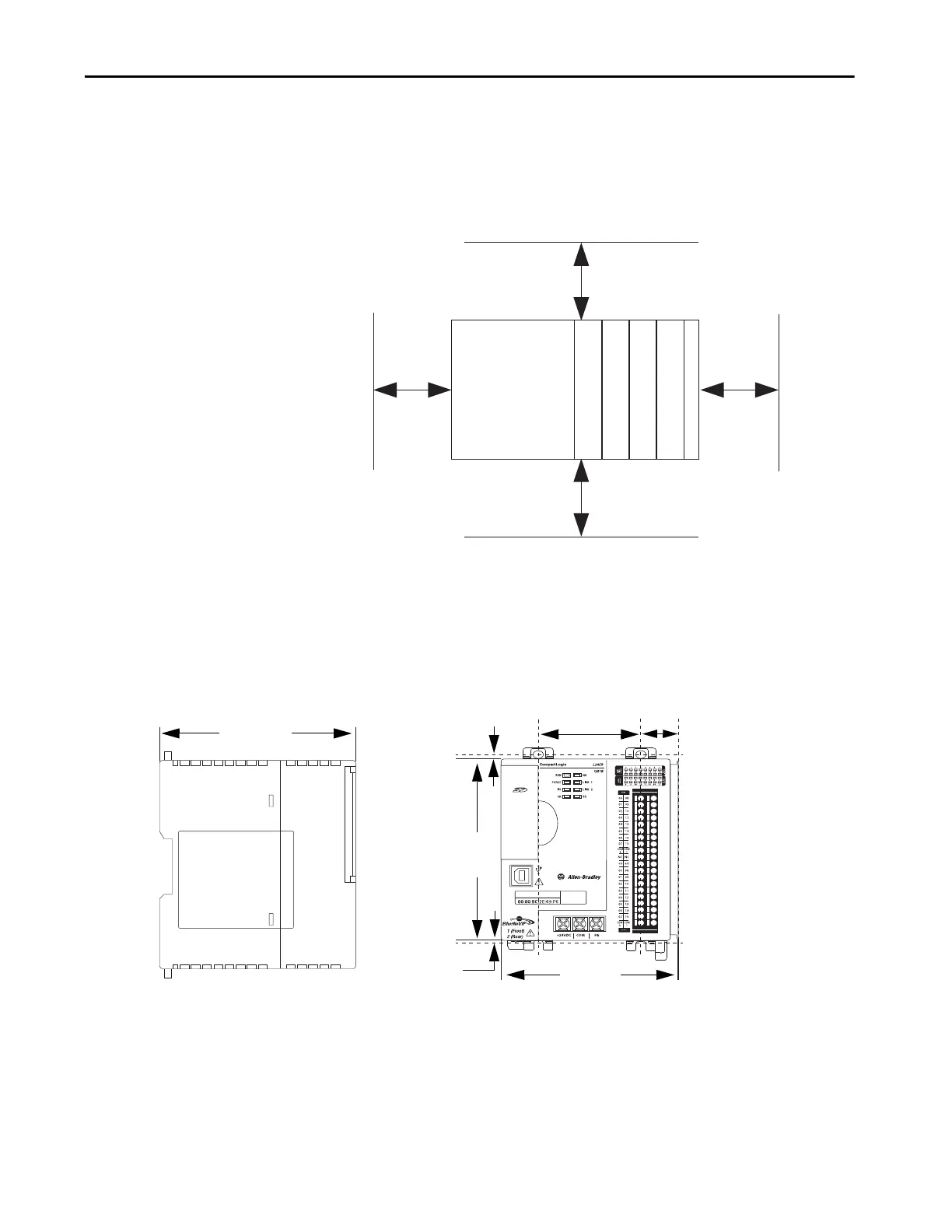
Minimum Spacing
Maintain spacing from enclosure walls, wireways, and adjacent equipment.
Allow 50 mm (2 in.) of space on all sides, as shown. This spacing provides
ventilation and electrical isolation.
System Dimensions
This graphic shows the system dimensions for the 1769-L24ER-QB1B
controller.
Bottom
Top
CompactLogix 5370 L2
Controller with
Embedded Power
Supply and I/O Points
End Cap
50 mm
(2 in.)
50 mm
(2 in.)
50 mm
(2 in.)
50 mm
(2 in.)
Side Side
Compact I/O Module
Compact I/O Module
Compact I/O Module
Compact I/O Module
118.00 mm
(4.65 in.)
105 mm
(4.13 in.)
115.00 mm
(4.53 in.)
27.65 mm
(1.09 in.)
59.70 mm
(2.35 in.)
3.06 mm
(0.12 in.)
2.8 mm
(0.12 in.)

Table of Contents

Related product manuals