EasyManua.ls Logo

Rockwell Automation CENTERLINE 2100

Rockwell Automation CENTERLINE 2100
108 pages
To Next Page IconTo Next Page
To Next Page IconTo Next Page
To Previous Page IconTo Previous Page
To Previous Page IconTo Previous Page
Loading...
Publication 2100-IN012C-EN-P - April 2009 31
Installation Procedures Chapter 2
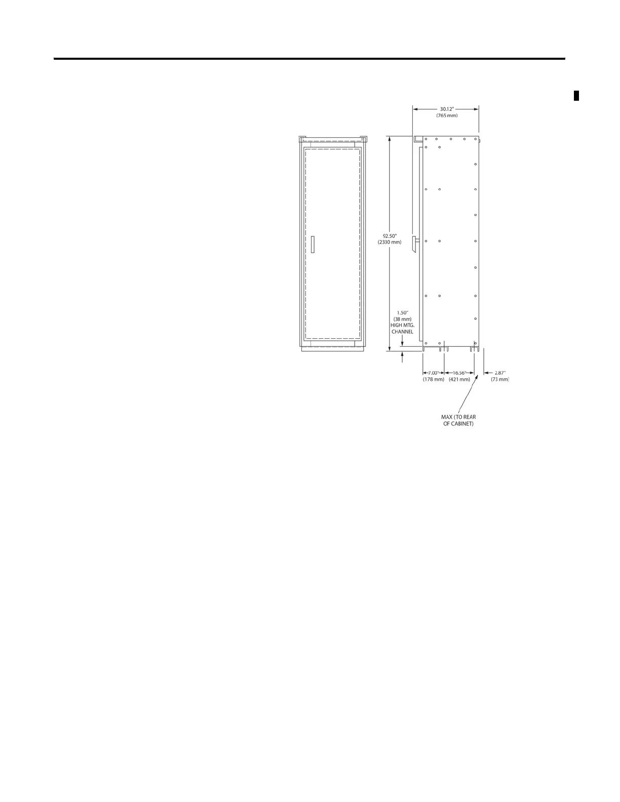
Mounting Dimensions for NEMA 3R and 4 Section [90 in. (2866 mm) high]

Table of Contents