EasyManua.ls Logo

Rockwell Automation CENTERLINE 2100

Rockwell Automation CENTERLINE 2100
108 pages
To Next Page IconTo Next Page
To Next Page IconTo Next Page
To Previous Page IconTo Previous Page
To Previous Page IconTo Previous Page
Loading...
30 Publication 2100-IN012C-EN-P - April 2009
Chapter 2 Installation Procedures
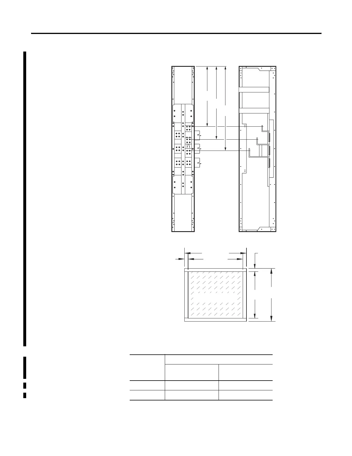
Mounting Dimensions for 10 in. Wide Section with 10 in. (254 mm) Incoming Line
Section
Dimension,
approx.
Section Depth
15 in. (381 mm) Deep
in. (mm
20 in. (508 mm) Deep
in. (mm
A 12.75 (324) 17.75 (451)
B 14.75 (375) 19.75 (502)
A (L1)
A (L2)
A (L3)
A
B
1.25 in. (32 mm)
7.5 in. (191 mm)
10 in. (254 mm)
1.12 in. (28 mm)
Power Wires

Table of Contents