EasyManua.ls Logo

Sam4s ER-420F - Memory Part

Sam4s ER-420F
86 pages
Print Icon
To Next Page IconTo Next Page
To Next Page IconTo Next Page
To Previous Page IconTo Previous Page
To Previous Page IconTo Previous Page
Loading...
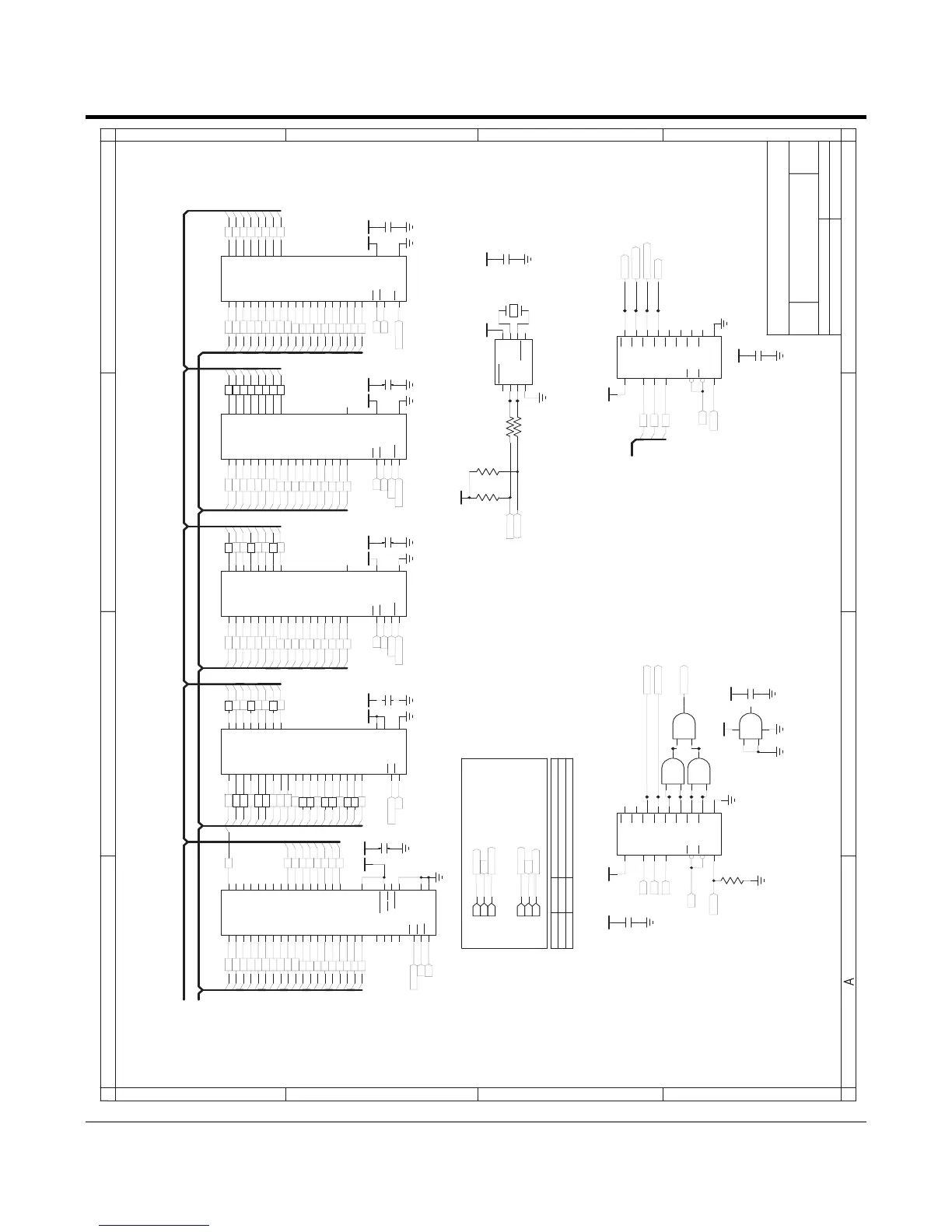
SAM4S ER-420M/F SERIES 11-3
11-2 MEMORY PART
4
Date
of
4
3
2
1
AB
Size
3
2
1
B
Drawn by
Sheet
C
TITLE :
D
C D
File Name
A3
Rev
Shin Heung Precision Co., Ltd.
4
Date
of
4
3
2
1
AB
Size
3
2
1
B
Drawn by
Sheet
C
TITLE :
D
C D
File Name
A3
Rev
Shin Heung Precision Co., Ltd.
A(1)
A(2)
A(4)
A(5)
A(7)
A(8)
D(0)
D(2)
D(3)
D(5)
D(6)
2
A(0)
A(3)
A(6)
A(9)
D(1)
D(4)
D(7)
VBT
2 & 3
_RD
CS_FLASH
A(2)
A(3)
A(5)
A(6)
A(8)
A(9)
A(11)
A(12)
A(14)
A(15)
A(17)
A(18)
MEM_CE
_CS3
A(19)
A(18)
A(17)
2 & 3
(SHUNT#B) BOOT ROM
CS_FLASH
_CS1
CS_EPROM
_CS0
CS_EPROM
CS_FLASH
D(2)
D(1)
D(5)
D(4)
D(7)
_RD
CS_EPROMCS_EPROM
A(10)
A(11)
A(13)
A(14)
A(16)
A(17)
SRAM#3(4MBITs)
SRAM#2(1MBITs)
CS_SRAM#1
_RESET
_RD
A(0)
A(3)
A(2)
A(6)
A(5)
A(9)
A(8)
A(12)
A(11)
A(15)
A(14)
D(0)
D(3)
D(2)
D(6)
D(5)
_RESET
CS_SRAM#2
_RD
A(0)
A(3)
A(2)
A(6)
A(5)
A(9)
A(8)
A(12)
A(11)
A(15)
A(14)
_CS2
_RESET
A(19)
A(18)
A(17)
R99100
D(0)
D(3)
D(2)
D(6)
D(5)
CS_SRAM#3
_RD
A(2)
A(1)
A(5)
A(4)
A(8)
A(7)
A(11)
A(10)
A(14)
A(13)
A(17)
A(16)
ER420 MAIN.SCH
ER-420 MAIN
CS_LCD
CS_KEYSCAN
CS_FISCAL8255
CS_EXTIN
D(0)
D(3)
D(2)
D(6)
D(5)
8
1 & 2
A(1)
_WR
A(4)
A(7)
A(10)
A(13)
A(16)
A(19)
R56
150K
1 & 2
VCC
D(0)
D(3)
D(6)
A(0)
A(12)
A(15)
A(18)
VBT
1
2
7
3
14
74HC08
U6:A
13
12
11
74HC08
U6:D
VCC VCC
SRAM#1(1MBITs)
_WR
A(1)
A(4)
A(7)
A(10)
A(13)
A(16)
VBT VBT
D(1)
D(4)
D(7)
VCC
R94
4.7K
_WR
A(1)
A(4)
A(7)
A(10)
A(13)
A(16)
R102100
VBT
D(1)
D(4)
D(7)
VCC
100nF
C61
VBT
_WR
A(0)
A(3)
A(6)
A(9)
A(12)
A(15)
A(18)
MEMORY PART
2004.04.21
VBT
100nF
C86
D(1)
D(4)
D(7)
V1.4
VBT VCC
(SHUNT#A)
2
CN12:B
(SHUNT#B)
2
CN11:B
(SHUNT#A)
BOOT ROM SELECT
A(0:19)
CS_SRAM#3
(0xC80000~0xCFFFFF)
CS_SRAM#2
(0xC60000~0xC7FFFF)
CS_SRAM#1
RTC_SCLK
A(0:19)
(0xC00000~0xCFFFFF)
3
CN12:C
1
CN11:A
CON-NOWALL;3P,2.54MM,ST
3
CN11:C
1
CON-NOWALL;3P,2.54MM,ST
CN12:A
100nF
C87
VCC
D(0:7)
VBT
100nF
C42
(0xC40000~0xC5FFFF)
5
4
6
74HC08
U6:B
RTC_SDA
100nF
C90
100nF
C89
R101
4.7K
VBT
100nF
C85
VBT
100nF
C88
Hyun-Oh,Yun
VBT
100nF
C50
11
WE
27
VSS2
26
CE
10
NC2
12
RESET
13
NC3
15
RY/BY
25
A0
37
VCC
22
A3
29
DQ0
23
A2
19
A6
35
DQ3
20
A5
33
DQ2
7
A9
42
DQ6
8
A8
40
DQ5
4
A12
32
DQ9
5
A11
30
DQ8
1
A15
39
DQ12
2
A14
36
DQ11
16
A18
17
A17
43
DQ14
45
A0/DQ15
28
OE
46
VSS1
14
NC4
47
BYTE
9
NC1
24
A1
21
A4
31
DQ1
18
A7
38
DQ4
6
A10
44
DQ7
3
A13
34
DQ10
48
A16
41
DQ13
AM29F800-70
U19
10
9
8
74HC08
U6:C
22
CE
24
OE
16
GND
1
VPP
10
A2
11
A1
7
A5
8
A4
27
A8
5
A7
25
A11
13
O0
23
A10
29
A14
17
O3
28
A13
15
O2
30
A17
20
O6
2
A16
19
O5
32
VCC
12
A0
9
A3
6
A6
26
A9
4
A12
14
O1
3
A15
18
O4
31
A18
21
O7
U24
M27C040-100
16
GND
30
CS2
22
CS1
32
VCC
24
OE
1
NC
12
A0
10
A2
9
A3
7
A5
6
A6
13
D0
26
A9
27
A8
17
D3
15
D2
4
A12
25
A11
20
D6
19
D5
31
A15
3
A14
29
WE
14
D1
11
A1
8
A4
5
A7
23
A10
18
D4
21
D7
28
A13
2
A16
KM681000LG-70
U22
8
GND
6
E3
9
Q6
4
E1
11
Q4
3
A2
13
Q2
1
A0
16
VCC
15
Q0
2
A1
7
Q7
5
E2
14
Q1
12
Q3
10
Q5
U14
74HC138
X2
32.768KHZ
16
GND
30
CS2
22
CS1
32
VCC
24
OE
1
NC
12
A0
10
A2
9
A3
7
A5
6
A6
13
D0
26
A9
27
A8
17
D3
15
D2
4
A12
25
A11
20
D6
19
D5
31
A15
3
A14
29
WE
14
D1
11
A1
8
A4
5
A7
23
A10
18
D4
21
D7
28
A13
2
A16
KM681000LG-70
U23
16
VSS
22
CS
32
VCC
24
OE
11
A1
10
A2
8
A4
7
A5
5
A7
27
A8
25
A11
23
A10
13
I-O1
3
A14
28
A13
15
I-O3
17
I-O4
30
A17
2
A16
20
I-O7
19
I-O6
29
WE
12
A0
26
A9
9
A3
4
A12
6
A6
14
I-O2
1
A18
31
A15
21
I-O8
18
I-O5
KM684000LP-70
U20
7
OSCIN
6
OSCOUT
2
SCL
3
SDA
1
INTRB
8
VDD
5
INTRA
4
VSS
RS5C372A
U18
EPROM (0XF80000 ~ 0XFFFFFF) - 4MBITs
0X100000 ~ 0X1FFFFF (8MBITs)
0XF00000 ~ 0XFFFFFF (8MBITs)
FLASH ROM (0XF00000 ~ 0XFFFFFF) - 8MBITs
8
GND
6
E3
9
Q6
4
E1
11
Q4
3
A2
13
Q2
1
A0
16
VCC
15
Q0
2
A1
7
Q7
5
E2
14
Q1
12
Q3
10
Q5
U9
74HC138

Table of Contents

Related product manuals