EasyManua.ls Logo

Sam4s ER-420F - Display PCB Schematics

Sam4s ER-420F
86 pages
Print Icon
To Next Page IconTo Next Page
To Next Page IconTo Next Page
To Previous Page IconTo Previous Page
To Previous Page IconTo Previous Page
Loading...
SAM4S ER-420M/F SERIES 11-11
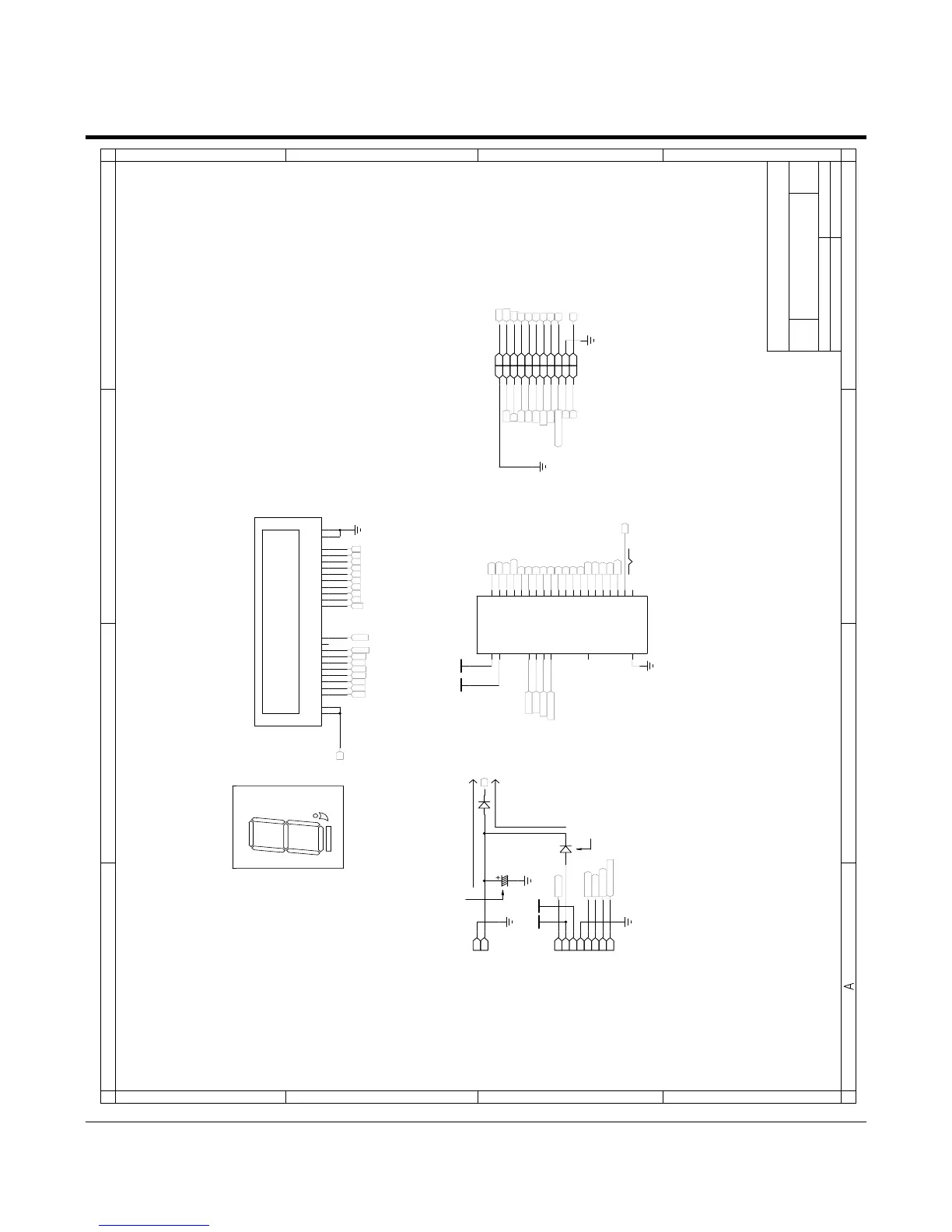
11-10 FRONT DISPLAY PCB (ER-420F)
4
Date
of
4
3
2
1
AB
Size
3
2
1
B
Draw n by
Sheet
C
TITLE :
D
C D
File Nam e
A3
Rev
Shin H eung Precision Co., Ltd.
e
P6
f
c
P5
g
P4
P2
P1
P8
dp
P9
G9
G6
G7
G3
G4
G1
G1
G2
P 1_A
P 2_B
VF
P 6_E
BLK
G3
G6
G4
G5
G9
G7
G8
P 3_F
G10
1
a
com
VF
P1_A
P3_F
P4_G
P6_E
P7_D
P10_H
G10
6
CN1:F
3
CN1:C
2
CN3:B
SEN_DISPDISCON
VFD_SCLK
V FD _LA T C H
VFD_STORBE
VFD_SDIN
VF
h
P10
b
P3
P 10_H
P 1_A
P 2_B
P 5_C
P 7_D
G2
G1
G3
G5
G4
G6
G8
G7
G9
P 8_D P
P 6_E
P 4_G
P 3_F
G8
G5
G2
G10
P 8_D P
P 7_D
SEN_DISPDISCON
P 5_C
21 22
15 16
9 10
BLUE
3 4
DISPLAY(10G ).SCH
1
8
CN1:H
5
CN1:E
2
CN1:B
7
CN1:G
4
CN1:D
[CN3]
ER-380 : NO POP
ER-350,RUSB : YES
C1
3300uF
10V
ER-350/350F
Vf= 3.43V
If= 290m A
1N 4003
D1
d
P7
VDISPVCC
13
19
11
17
14
20
12
18
7
5
8
6
2
2003/04/01
V1.0
VDISP
ER-380
Vf= 3.79V
If= mA
P2_B
P8_D P
P5_C
VDIS
Vbc=28.4V
Ibc= 24m A
OLD PCB INFOR.
JK41-10005A
V2.2
2001-03-21
ARRAY = 4
VFD_STORBE
V FD _LA T C H
VFD_SCLK
VFD_SDIN
ER-350 DISPLAY(10G )
Note] The connection of R ear Display PCB is sam e as Old Version(ER-350/5100/5200/6600)
P 4_G
1
CN1:A
CON-BO X;8P,2.5MM,ST
D2
EK-04
1
CN3:A
CON-BO X;2P,2.5MM,ST
[J19] Digit 10
ER-350/380 : YES
RUSB(9 Digit) : NO POP
VFD FR O NT PART
1
CON-BO X;22P,2MM,2R ,ST
CN2:A
Sungho,Kim
VCC
[C1]
RUSB: YES
(MAIN B'D CE7 470uF16V )
ER-350/380: NO PO P
2
F1
5
P3
4
P2
8
P6
7
P5
11
P9
10
P8
13
G10
16
G7
15
G8
19
G4
18
G5
22
G1
21
G2
24
F2
23
F2
1
F1
3
P1
6
P4
9
P7
12
P10
14
G9
17
G6
20
G3
0 1 2 3 4 5 6 7 8 9
V1
VFD;10-LT-50G /GK,10D IG,FUTABA
REAR VFD I/F CONN
27
SDIN
15
SCLK
1
VBB
5
O18
4
O19
8
O15
7
O16
11
O12
10
O13
17
O10
18
O9
20
O7
21
O6
23
O4
24
O3
26
O1
14
GND
28
VDD
9
O14
6
O17
3
O20
19
O8
22
O5
25
O2
12
O11
13
BLNK/nS TB
2
SDOUT
16
STB/LA T
IC-VFD;U C N 5812A F,DIP,28P
U1
[D2]
ER-380 : YES
ER-350,RUSB : NO POP

Table of Contents

Related product manuals