EasyManua.ls Logo

Sam4s ER-420F - Interface Part

Sam4s ER-420F
86 pages
Print Icon
To Next Page IconTo Next Page
To Next Page IconTo Next Page
To Previous Page IconTo Previous Page
To Previous Page IconTo Previous Page
Loading...
SAM4S ER-420M/F SERIES 11-5
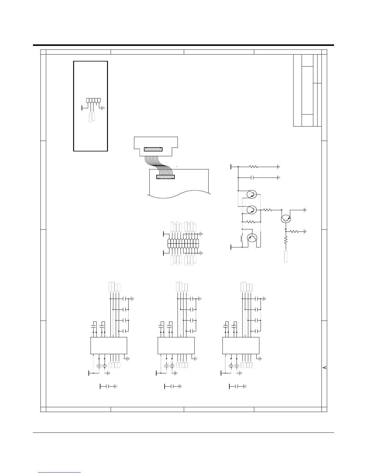
11-4 INTERFACE PART
4
Date
of
4
3
2
1
AB
Size
3
2
1
B
Draw n by
Sheet
C
TITLE :
D
C D
File Nam e
A3
Rev
Shin H eung Precision Co., Ltd.
4
Date
of
4
3
2
1
AB
Size
3
2
1
B
Draw n by
Sheet
C
TITLE :
D
C D
File Nam e
A3
Rev
Shin H eung Precision Co., Ltd.
(BLK)
(BLK)
22
2
4
VCC
VCC
VCC
1
21
2
22
(BLK)
(BLK)
MAIN PCB
DSR2
TXD 2
DTR2
RXD2
1uF C 30
RXD1
DSR1
TXD 1
DTR1
DSR0
RXD0
TXD 0
DTR0
1uF C 12
1uF C 11
1uF C 35
1uF C 34
19
CN3:S
20
CN3:T
13
CN3:M
14
CN3:N
7
CN3:G
8
CN3:H
2
CN3:B
T2
21
1
ER 420 MAIN.SCH
ER-420 MAIN
3
CN4:3
8
VCC
VCC
1uF
C33
1uF C 29
1uF C 16
1uF C 37
C15
470pF
1uF C 26
1uF C 27
C3
470pF
C13
470pF
C19
470pF
C28
470pF
C9
470pF
C4
470pF
C18
470pF
C25
470pF
4.7K
R32
2
3
1
KS A 1182-Y
Q10
VCC
11
CN3:K
10
CN3:J
12
CN3:L
15
CN3:O
17
CN3:Q
16
CN3:P
18
CN3:R
22
CN3:V
21
CN3:U
3
CN3:C
4
CN3:D
5
CN3:E
6
CN3:F
9
CN3:I
2
3
1
M M B T2222A
Q9
R33
4.7K
1 3
2
KS A 708-Y
Q7
R25
10K
UART PART
2004.04.21
VCC
5
CN4:5
4
CN4:4
2
CN4:2
V1.4
1uF
C22
1uF
C8
VCC
1uF C 17
1uF C 38
L10
R31
1K
VO LT_O N O F F
FRO M P_FAIL
DSR2_IN
TX D 2_O U T
DTR2_OUT
RXD2_IN
DSR1_IN
DTR1_OUT
DSR1_IN
DTR1_OUT
RXD1_IN
DSR1_IN TXD1_OUT TXD 1_O U T
RXD1_IN RXD1_IN
TX D 1_O U T
DTR1_OUT
DTR2_OUT
RXD2_IN RXD0_IN
DTR0_OUT
DSR2_IN DSR0_IN
TXD2_OUT TX D 0_O U T
RXD0_IN
DSR0_IN
TX D 0_O U T
DTR0_OUT
RXD2_IN
TXD2_OUT
[UART#2]
C23
470pF
C6
470pF
C20
470pF
R30
10K
1 3
2
KS A 708-Y
Q8
VSERIAL VSERIAL
100nF
C31
VSERIAL
I/F PCB
1
CN4:1
CON-BO X;5P,2.5MM,ST(YH)
H yun-Oh,Yun
[UART#1]
9
R2OUT
8
R2IN
7
T2O U T
10
T2IN
11
T1IN
14
T1O U T
6
V-
4
C2+
5
C2-
3
C1-
16
VCC
1
C1+
15
GND
2
V+
12
R1OUT
13
R1IN
U3
M A X 232A
[UART#0]
9
R2OUT
8
R2IN
7
T2O U T
10
T2IN
11
T1IN
14
T1O U T
6
V-
4
C2+
5
C2-
3
C1-
16
VCC
1
C1+
15
GND
2
V+
12
R1OUT
13
R1IN
U4
M A X 232A
1
CN3:A
CON-BOX;22P,2MM,2R ,ST
RUSSIA BLACK BOX
9
R2OUT
8
R2IN
7
T2O U T
10
T2IN
11
T1IN
14
T1O U T
6
V-
4
C2+
5
C2-
3
C1-
16
VCC
1
C1+
15
GND
2
V+
12
R1OUT
13
R1IN
U1
M A X 232A

Table of Contents

Related product manuals