EasyManua.ls Logo

Sam4s ER-420F - STM-320 Printer PCB Schematics

Sam4s ER-420F
86 pages
Print Icon
To Next Page IconTo Next Page
To Next Page IconTo Next Page
To Previous Page IconTo Previous Page
To Previous Page IconTo Previous Page
Loading...
SAM4S ER-420M/F SERIES 11-15
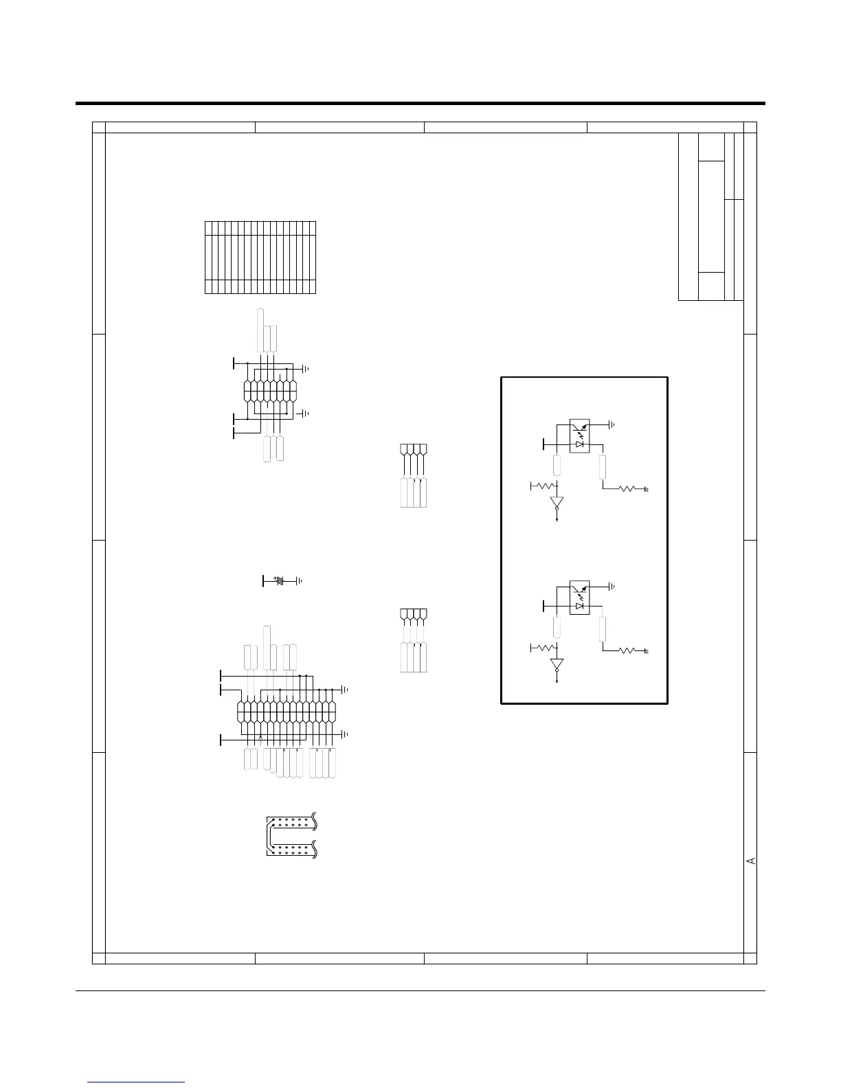
11-14 STM-320 PRINTER PCB
4
Date
of
4
3
2
1
AB
Size
3
2
1
B
Drawn by
Sheet
C
TITLE :
D
C D
File Name
A3
Rev
Shin Heung Precision Co., Ltd.
1 2
VCC
[
´`
]
15
16
14
12
13
9
10
11
6
7
8
3
4
5
22P
1
2
GND
GND
---
SCLK
GND
GND
VCC
1
VPH VCC
VCC
12
RLFMOTOUT_B
RLFMOTOUT_B
RLFMOTOUT_A
RLFMOTOUT_A
JLFMOTOUT_B
JLFMOTOUT_B
JLFMOTOUT_A
TPH_PCLK
TPH_PDATA
JLFMOTOUT_A
PENDR_IN
PENDJ_IN
30
CN1:AD
29
CN1:AC
23
CN1:W
24
CN1:X
18
CN1:R
17
CN1:Q
11
CN1:K
12
CN1:L
5
CN1:E
6
CN1:F
270[Ohm]
PENDR_LED
74HC14
150K
VCC
RLFMOTOUT_B
RLFMOTOUT_A
RLFMOTOUT_B
RLFMOTOUT_A
(
¥»
)
(+24V)
74HC14
JLFMOTOUT_B
JLFMOTOUT_A
JLFMOTOUT_B
JLFMOTOUT_A
(
¥»
)
3
CN4:C
TPH_PSTB#1
TPH_PCLK
TPH_PDATA
16
CN5:P
10
CN5:J
4
CN5:D
STM-320 CONN.SCH
STM-320 CONN
15
14
13
12
11
10
9
7
8
6
4
5
3
15P
1
2
1
(MAIN) (CONN)
Harness Connection DISCON INPUT
28
CN1:AB
27
CN1:AA
26
CN1:Z
25
CN1:Y
9
CN1:I
8
CN1:H
3
CN1:C
2
CN1:B
4
CN1:D
7
CN1:G
22
CN1:V
21
CN1:U
20
CN1:T
19
CN1:S
10
CN1:J
13
CN1:M
14
CN1:N
15
CN1:O
16
CN1:P
PENDR_IN
(
¸`
)
(
)
(
‡º¶ß
)
VPH
1000uF
C1
35V
(
¸`
)
(
‡º¶ß
)
(
)
2
CN4:B
4
CN4:D
8
CN5:H
6
CN5:F
2
CN5:B
14
CN5:N
12
CN5:L
2004.02.10
V1.2
VCC
VCC VPH VPH
2) P/END SENSOR GRADE
”fl
: C/D ĺ D(ONLY)
3) MOTOR
”fl ¿¡ß‚¥
COLOR
”fl
(
¨‚•˛´`
)
NOTE] REV1.1 ĺ REV1.2
”fl » ˙
270[Ohm]
PENDJ_LED
150K
NOTE] SENSOR GRADE : C or D TYPE
3
CN3:C
TPH_PLATCH
TPH_PSTB#1
TPH_PSTB#2
ADC_TPHTHERMISTER
PENDJ_LED
PENDR_LED
CONNECTOR 15P : JST S15B-PH-SM3-TB(TPH)
HARNESS TERMINAL : SPH-002T-P0.5S (MAX AWG#24)
CONNECTOR 16P : HIROSE 2MM(CONN SIDE)
+24V(VPH)
+24V(VPH)
HARNESS HOUSING(15P) : PHR-15(JST)
15
CN5:O
TPH_PSTB#2
TPH_PLATCH
/LATCH
SDATA(SI)
9
CN5:I
ADC_TPHTHERMISTER
TM(THERMISTER)
/STROBE#1
/STROBE#2
3
CN5:C
SIGNAL NAME
+24V(VPH)
+24V(VPH)
4)
––
SCREW
¿˝
PCB TOUCH
•˛ ˛ ˙
PCB
`”˛ß‡¿
NOTE] REV1.2 ĺ REV1.3
”fl » ˙
1) MOTOR CONN
”fl
(
¿‹¨£
ĺ MOLEX)
1)
…‰ˆ
STEP MOTOR
”fl
:
‚˘¯
ĺ NMB(PM20L-020-YKF4A)
RECEIPT SIDE
MAIN APPLICATION MAIN APPLICATION
PENDJ_IN
1
2 4
3
SG-105F
U1
PAPER-END SENSOR
RECEIPT MOTOR
2
CN3:B
4
CN3:D
1
CN3:A
CON-BOX;4P,2.5MM,ST
STROBE = LOW ACTIVE
(STM-210 = HIGH ACTIVE)
VPH
CONN PCB (TPH/MOTOR)
5
CN5:E
7
CN5:G
11
CN5:K
13
CN5:M
HARNESS CONNECTION
Hyun-Oh,Yun
1
CN5:A
CON-BOX;16P,2MM,2R,ST
JOURNAL SIDE
1
2 4
3
SG-105F
U2
JOURNAL MOTOR
1
CN4:A
CON-BOX;4P,2.5MM,ST
1
CON-BOX;30P,2MM,2R,ST
CN1:A

Table of Contents

Related product manuals