EasyManua.ls Logo

Sam4s ER-420F - Page 80

Sam4s ER-420F
86 pages
Print Icon
To Next Page IconTo Next Page
To Next Page IconTo Next Page
To Previous Page IconTo Previous Page
To Previous Page IconTo Previous Page
Loading...
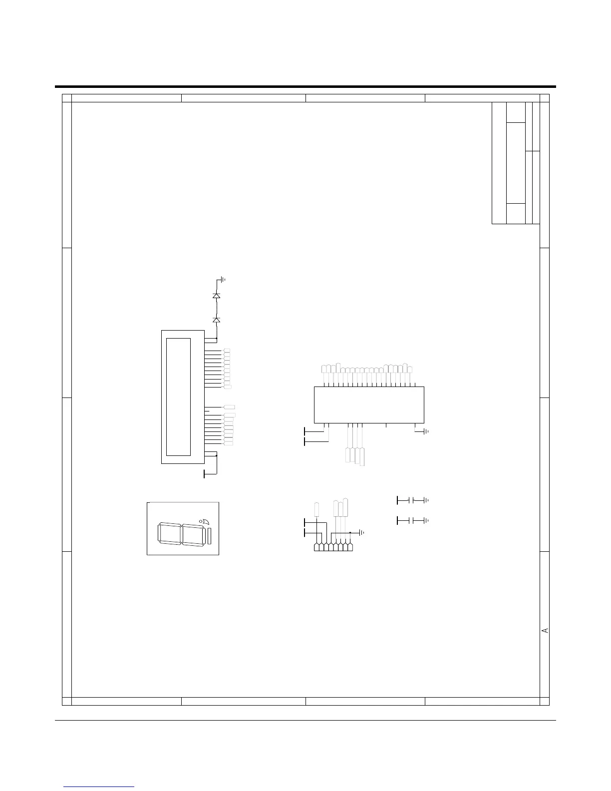
SAM4S ER-420M/F SERIES 11-13
11-12 REAR DISPLAY PCB (ER-420M)
4
Date
of
4
3
2
1
AB
Size
3
2
1
B
Draw n by
Sheet
C
TITLE :
D
C D
File Nam e
A3
Rev
Shin H eung Precision Co., Ltd.
e
P6
f
c
P5
g
P4
P2
P1
P8
dp
P9
G9
G2
G1
G3
G5
G4
G6
G8
G7
G9
G6
G7
G3
G4
G1
1
a
com
P1_A
P3_F
P4_G
P6_E
P7_D
P10_H
G10
V FD _LA T C H
VFD_SCLK
h
P10
b
P3
G10
P 10_H
P 1_A
P 2_B
P 5_C
P 7_D
P 8_D P
P 6_E
P 3_F
P 4_G
G8
G5
G2
ER 650R E A R V FD .SCH
1
100nF
C1
VFD_STORBE
VCCVDISP
VFD_SDIN
d
P7
VCC
VDISP
1N 4003
D1
2002.10.28
V1.0
VCC
P2_B
P8_D P
P5_C
8
CN1:H
5
CN1:E
6
CN1:F
2
CN1:B
3
CN1:C
VFD_STORBE
V FD _LA T C H
VFD_SCLK
VFD_SDIN
ER-650 / 5500 DISPLAY
7
CN1:G
4
CN1:D
1
CN1:A
CON-BO X;8P,2.5MM,ST
100nF
C2
VCC
VFD REAR PART
D2
EK-04
H yun-Oh,Yun
VDISP
2
F1
5
P3
4
P2
8
P6
7
P5
11
P9
10
P8
13
G10
16
G7
15
G8
19
G4
18
G5
22
G1
21
G2
24
F2
23
F2
1
F1
3
P1
6
P4
9
P7
12
P10
14
G9
17
G6
20
G3
0 1 2 3 4 5 6 7 8 9
V1
VFD;10-LT-50G /GK,10D IG,FUTABA
27
SDIN
15
SCLK
1
VBB
5
O18
4
O19
8
O15
7
O16
11
O12
10
O13
17
O10
18
O9
20
O7
21
O6
23
O4
24
O3
26
O1
14
GND
28
VDD
9
O14
6
O17
3
O20
19
O8
22
O5
25
O2
12
O11
13
BLNK/nS TB
2
SDOUT
16
STB/LA T
IC-VFD;U C N 5812AF,DIP,28P
U1

Table of Contents

Related product manuals