EasyManua.ls Logo

Sharp AJ-6020 - Page 64

Sharp AJ-6020
93 pages
Print Icon
To Next Page IconTo Next Page
To Next Page IconTo Next Page
To Previous Page IconTo Previous Page
To Previous Page IconTo Previous Page
Loading...
62
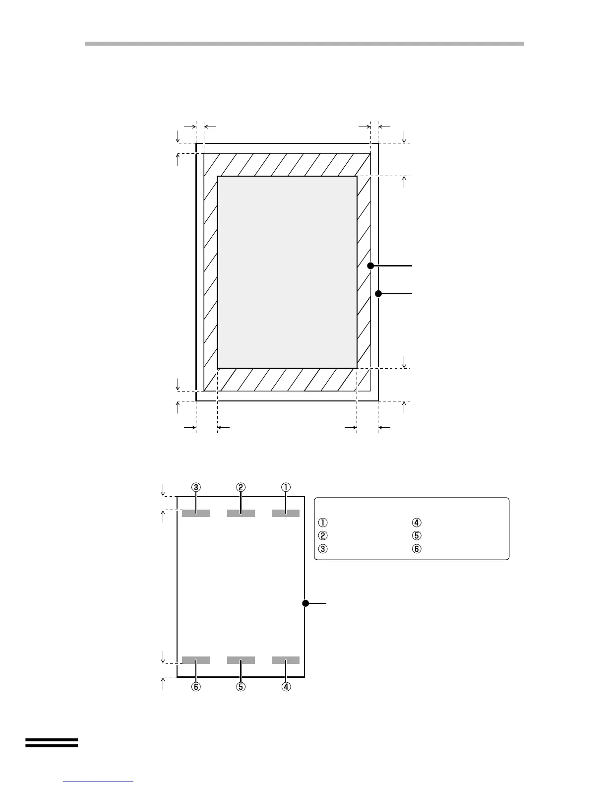
ADDING ANNOTATION TO COPIES
1.Top/Right
2.Top/Centre
3.Top/Left
4.Bottom/Right
5.Bottom/Centre
6.Bottom/Left
Quality guaranteed area
The print position of the annotation
The print position of each value
Guaranteed area and printable area
This unit can copy onto the following area of the paper. To make a clear copy, it is
recommended to fit the original image within the quality guaranteed area.
Paper size
14mm
14mm
Paper size
Printable area
3mm
3mm
19mm
3mm 3mm
10mm10mm
19mm

Table of Contents

Related product manuals