EasyManua.ls Logo

Sharp MX-M314N - Page 64

Sharp MX-M314N
256 pages
Print Icon
To Next Page IconTo Next Page
To Next Page IconTo Next Page
To Previous Page IconTo Previous Page
To Previous Page IconTo Previous Page
Loading...
MX-M264U ADJUSTMENTS AND SETTINGS 5 – 29
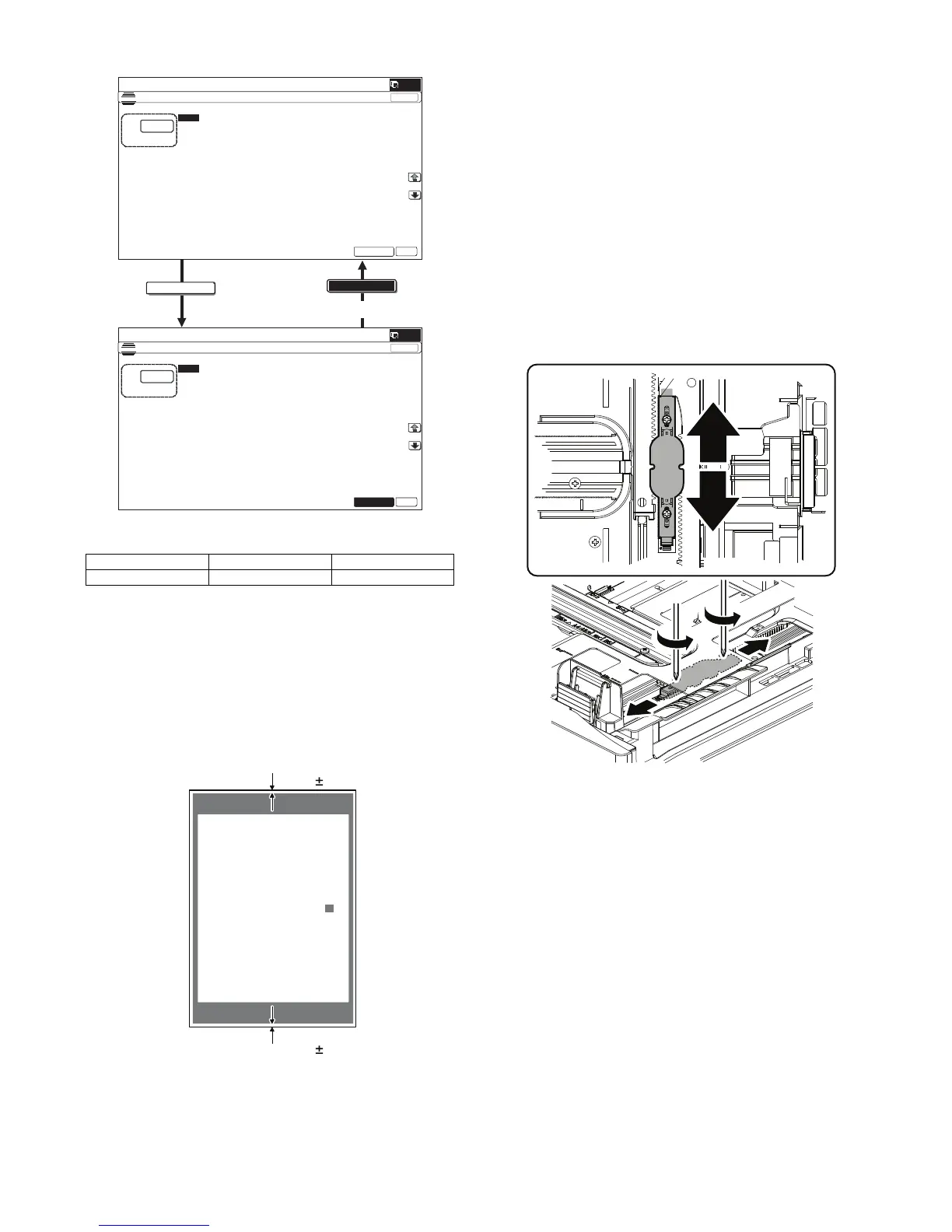
1) Enter SIM 50-10 mode.
2) Select the target paper feed tray (MAIN-XX) with the scroll key.
3) Set A4 (11" x 8.5") paper in the paper feed tray selected in pro-
cedure 2).
4) Press [EXECUTE] key.
The adjustment pattern is printed.
5) Check that the adjustment pattern image is printed in the cor-
rect position.
Measure the dimension of the void area in the front and the
rear frame direction of the adjustment pattern, and check that
all the following conditions are satisfied.
RV: REAR VOID AREA
FV: FRONT VOID AREA
RV + FV 4.0mm
RV = 2.0 2.0mm
FV = 2.0 2.0mm
If the above requirement is not met, do the following steps.
6) Change the adjustment value.
Enter the adjustment value and press the [OK] key or the
[EXECUTE] key.
When [EXECUTE] key is pressed, the adjustment pattern is
printed.
When the adjustment value is increased, the adjustment pat-
tern is shifted to the front frame side. When it is decreased, the
adjustment pattern is shifted to the rear frame side.
When the set value is changed by 1, the shift distance is
changed by about 0.1mm.
Repeat procedures 3) - 6) until the conditions of procedure 5)
are satisfied.
In case a satisfactory result cannot be obtained by repeating
the above procedures, perform the following procedure.
7) Loosen the paper feed tray off-center adjustment screws (2
pcs.) at the center section of the lift plate of the paper feed tray,
and change the gear unit position in the front/rear frame direc-
tion. Repeat the adjustment procedures from 4).
NOTE: Normally if the adjustment is executed by ADJ 3 (automatic
adjustment), there is no need to execute this adjustment.
Only when the manual adjustment is required, execute this
adjustment.
In other words, this manual adjustment is executed when a
satisfactory result is not obtained from the automatic
adjustment (ADJ 3).
Display/Item Content Setting range
NO Not select 1
EXECUTE
End of print
EXECUTE
ǂǂǂ6,08/$7,21ǂǂ12
7(67
3$3(5&(17(52))6(76(783

˷˹
˖0$,10)7
$˖
˖0$,1&6
%˖
˖0$,1&6
&˖
˖0$,1&6
'˖
˖0$,1$'8
)˖
˖0$,1&6
(˖
˖68%0)7
*˖
˖68%&6
+˖
˖68%'6.
,˖
˖68%$'8
-˖
˖08/7,&2817
.˖
˖3$3(5&6
/˖
2.

&/26(
(;(&87(
ǂǂǂ6,08/$7,21ǂǂ12
7(67
3$3(5&(17(52))6(76(783

˷˹
˖0$,10)7
$˖
˖0$,1&6
%˖
˖0$,1&6
&˖
˖0$,1&6
'˖
˖0$,1$'8
)˖
˖0$,1&6
(˖
˖68%0)7
*˖
˖68%&6
+˖
˖68%'6.
,˖
˖68%$'8
-˖
˖08/7,&2817
.˖
˖3$3(5&6
/˖
2.

&/26(
(;(&87(
RV
2.0mm
2.0mm
FV
2.0mm
2.0mm

Table of Contents

Other manuals for Sharp MX-M314N

Related product manuals