EasyManua.ls Logo

Sharp MX-M314N - Page 67

Sharp MX-M314N
256 pages
Print Icon
To Next Page IconTo Next Page
To Next Page IconTo Next Page
To Previous Page IconTo Previous Page
To Previous Page IconTo Previous Page
Loading...
MX-M264U ADJUSTMENTS AND SETTINGS 5 – 32
7) Enter an adjustment value with 10-key, and press [OK] key.
When the adjustment value is increased, the image magnifica-
tion ratio is increased. When the adjustment value is changed
by 1, the image magnification ratio is changed by 0.02%.
8) Make a normal copy and obtain the copy magnification ratio.
Repeat the procedures of 1) - 8) until a satisfactory result is
obtained.
13-D Scan image magnification ratio adjustment
(sub scanning direction) (Manual
adjustment) (RSPF mode)
This adjustment must be performed in the following cases:
* When the SCAN CONTROL PWB is replaced.
* When the EEPROM on the SCAN CONTROL PWB is replaced.
* When U2 trouble occurs.
* When the copy magnification ratio of the RSPF mode copy
image in the sub scanning direction is not proper.
* When the RSPF is disassembled.
1) Place the duplex adjustment chart shown below on the docu-
ment tray of the RSPF.
The adjustment chart is prepared by the following procedures.
Use A4 (11" x 8.5") paper, and put marks on both sides and
both surfaces of the paper at 10mm from each edge.
2) Make a duplex copy at the normal ratio on A4 paper.
3) Measure the images on the copy paper and the original
images.
4) Obtain the image magnification ratio according to the following
formula:
Image magnification ratio = Original size / Original size x 100
(%)
Image magnification ratio = 99 / 100 x 100 = 99 (%)
If the image magnification ratio is within the specified range
(100 0.8%), there is no need to perform the adjustment.
If it is not within the specified range, perform the following pro-
cedures.
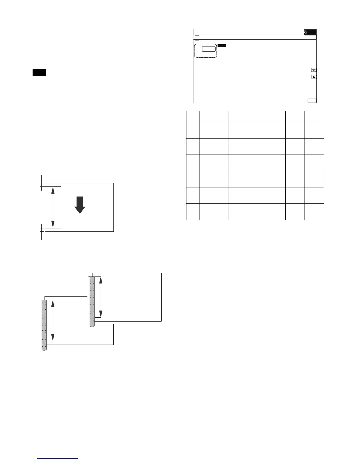
5) Enter the SIM 48-1 mode.
6) Select an adjustment item with the scroll key.
7) Enter an image magnification ratio adjustment value with 10-
key, and press [OK] key.
When the adjustment value is increased, the image magnifica-
tion ratio is increased.
When the adjustment value is changed by 1, the image magni-
fication ratio is changed by 0.1%.
8) Make a normal copy and obtain the copy magnification ratio.
Repeat the procedures of 1) - 8) until a satisfactory result is
obtained.
A4 size
10mm
10mm
Paper pass direction
original
copy
10 50 100 150 200
10
50 100
150
200
Item Display Content
Setting
range
Default
value
A CCD(MAIN) SCAN main scanning
magnification ratio
adjustment (CCD)
1 - 99 50
B CCD(SUB) SCAN sub scanning
magnification ratio
adjustment (CCD)
1 - 99 50
C SPF(MAIN) RSPF document front
surface magnification ratio
adjustment (Main scan)
1 - 99 50
D SPF(SUB) RSPF document front
surface magnification ratio
adjustment (Sub scan)
1 - 99 50
E SPFB(MAIN) RSPF document back
surface magnification ratio
adjustment (Main scan)
1 - 99 50
F SPFB(SUB) RSPF document back
surface magnification ratio
adjustment (Sub scan)
1 - 99 50
SPF (SUB) Sub scanning direction image magnification ratio
(Front surface)
SPFB (SUB) Sub scanning direction image magnification ratio
(Back surface)
ǂǂǂ6,08/$7,21
ǂǂ12
&/26(
7(67
0$*1,),&$7,21$'-8670(17

$˖
˷
˹
˖&&'0$,1
$˖
˖&&'68%
%˖
˖63)0$,1
&˖
˖63)68% 
˖63)%0$,1 
˖63)%68% 
2.

Table of Contents

Other manuals for Sharp MX-M314N

Related product manuals