EasyManua.ls Logo

Sharp MX-M620N - Adjust Scanned Image Distortions in the Main Scanning Direction; Adjust Scanned Image Distortions in the Sub-Scanning Direction

Sharp MX-M620N
412 pages
Print Icon
To Next Page IconTo Next Page
To Next Page IconTo Next Page
To Previous Page IconTo Previous Page
To Previous Page IconTo Previous Page
Loading...
MX-M700N ADJUSTMENTS 6 – 10
3-C Adjust scanned image distortions in the
sub-scanning direction
This adjustment is needed in the following situations:
* The scanner (reading) section has been disassembled.
* Scanned images are distorted.
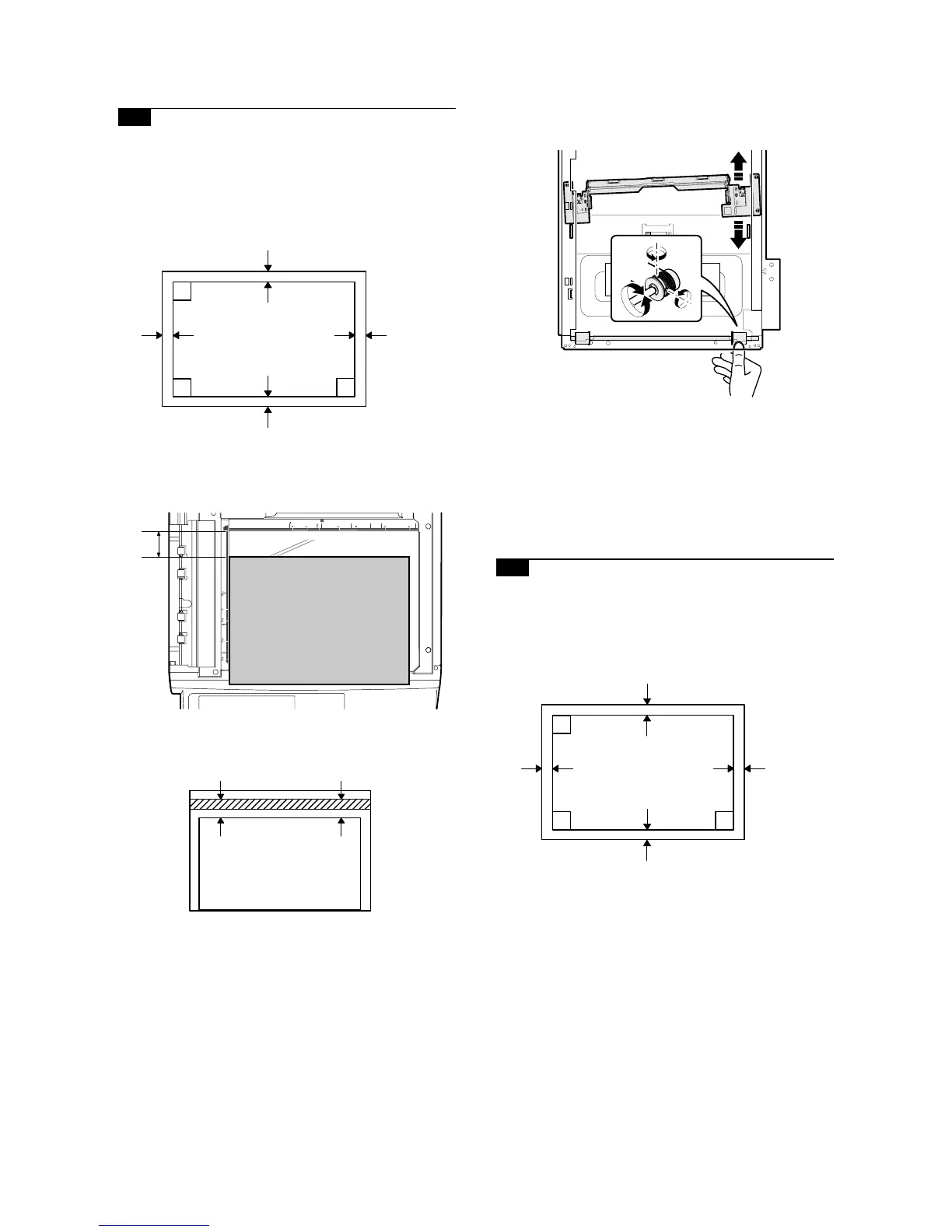
1) Make a test chart on A3 (11" x 17") paper as shown below.
(Draw a rectangular with four right angles.)
2) Set the test chart made in step 1 on the document table (about
30mm in front of the document standard setting position), and
make a copy on A3 (11" x 17") paper with the DSPF unit open.
3) Check for distortions in the sub scanning direction.
If La = Lb, there is no distortion.
If there is some distortion in the sub scanning direction, do the
following steps.
4) Loosen either of two fixing screws of the scanner unit drive pul-
ley. (Either one on the front or the rear side will do.)
5) With the scanner unit drive shaft kept stationary, manually turn
the scanner unit drive pulley to change the parallelism of Scan-
ner Units A and B. (Change the positional relationship between
the scanner unit drive pulley and the drive shaft.)
6) Tighten the scanner unit drive pulley fixing screw.
Repeat steps 2 to 6 until an acceptable result is obtained.
If the above steps fail to eliminate distortions in the sub scanning
direction, do the steps described in "ADJ 3E: Adjust scanned image
distortions in the main scanning direction 2".
3-D Adjust scanned image distortions in the
main scanning direction 1
The scanner (reading) section has been disassembled.
* Scanned images are distorted.
1) Make a test chart on A3 (11" x 17") paper as shown below.
(Draw a rectangular with four right angles.)
2) Set the test chart made in step 1 on the document table, and
make a copy on A3 (11" x 17") paper.
L
L
L
L
L = 10mm
A5
B5
A4
A5
B4
B5
A3
A4
11
8
1
2
5
1
2
A5 B5 B4 A3
A4
A5 B5 A4
8
1
2
11 13 14 175
1
2
30mm
LbLa
L
L
L
L
L = 10mm

Table of Contents

Related product manuals