EasyManua.ls Logo

SICK Lector621 - 13.6.9 Wiring the digital outputs “Result 1” and “Result 2” of the device in the CDB620-001

SICK Lector621
132 pages
Print Icon
To Next Page IconTo Next Page
To Next Page IconTo Next Page
To Previous Page IconTo Previous Page
To Previous Page IconTo Previous Page
Loading...
13.6.9 Wiring the digital outputs “Result 1” and “Result 2” of the device in the CDB620-001
Device = Lector621 ECO = V2D621x-xxxxxYx (serial variant, Y = D or E)
Device 1
CDB620-001
Load (e.g. PLC) 5
5
.
.
.
ERes D
22
GND
5Shield
U
IN
*V
S
GND
V
out
Result A
GND
B C
1
2 1
2
3
1
7
2
6
5
4
8
13
14
17
15
9
10
12
16
11
9 8
110
15
6
11
5
6
For inductive load: 7
3
4
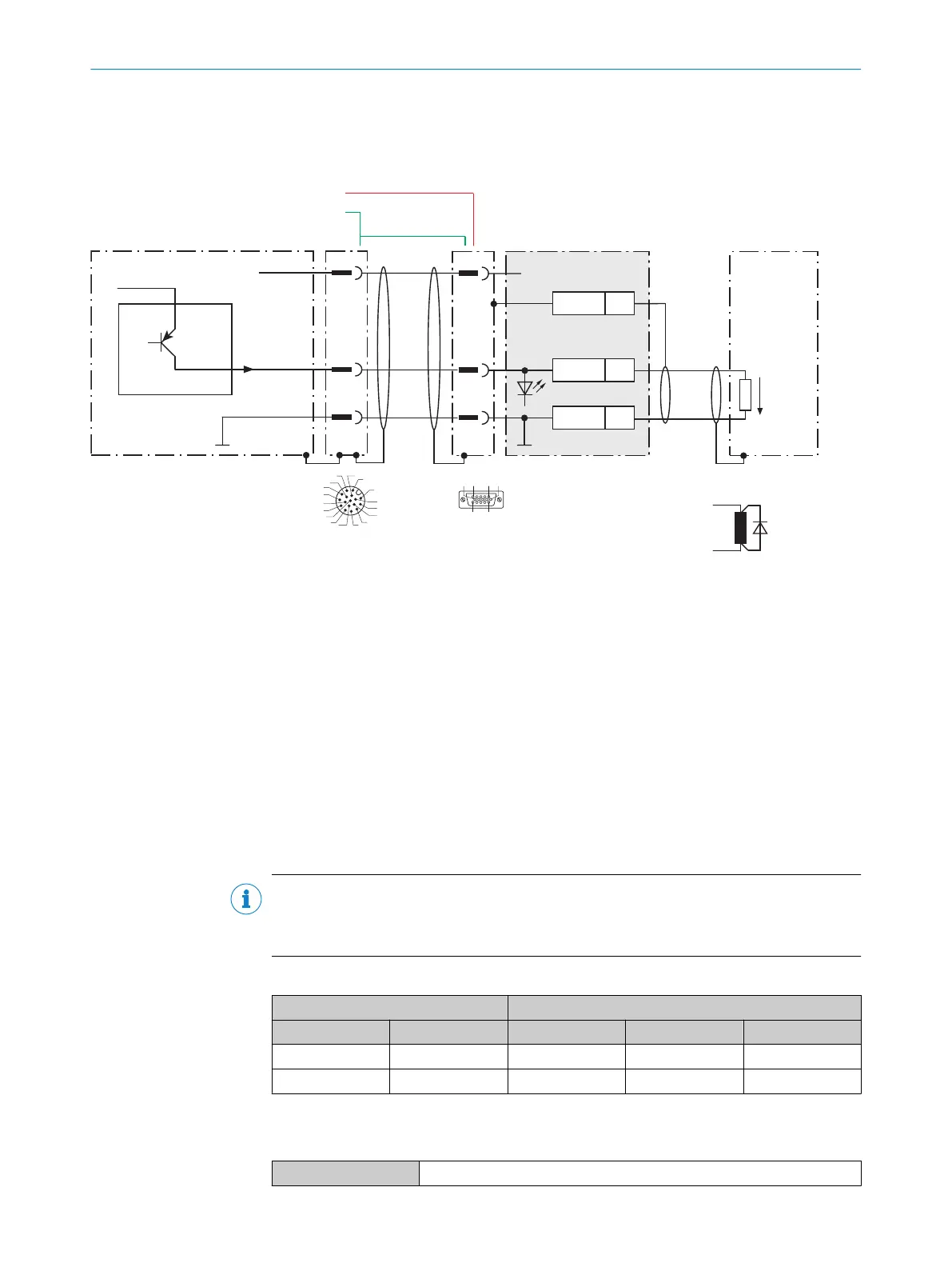
Figure 71: Wiring the digital outputs “Result 1” and “Result 2” of the device in the connection module CDB620-001
1
Device
2
Supply voltage V
S
3
V2D621x-xxxxxYx (serial variant, Y = D or E): connecting cable permanently connected with the device (male connector,
D-Sub-HD, 15-pin)
4
V2D621x-xxxxxYx (serial variant, Y = D or E): omitted
5
Load (e.g. PLC)
6
Output voltage V
out
7
With inductive load: see note
8
Connection module: female connector, D-Sub-HD, 15-pin
9
V2D621x-xxxxxYx (serial variant, Y = D or E): omitted
Inductive load
NOTE
Provide an arc-suppression switch at the digital output if inductive load is present.
b
Attach a freewheeling diode directly to the load for this purpose.
Table 63: Assignment of placeholders to the digital outputs
Device CDB620-001
Output A Pin B Pin C Signal D Terminal E
Result 1 13 12 Res 1 20
Result 2 14 13 Res 2 21
Characteristic data of the digital outputs
Table 64: Characteristic data of the digital outputs “Result 1” and “Result 2”
Type Switching
13 ANNEX
114
O P E R A T I N G I N S T R U C T I O N S | Lector621 8022502/15NT/2020-02-11 | SICK
Subject to change without notice

Table of Contents

Related product manuals