EasyManua.ls Logo

SICK Lector64x Flex - Page 83

SICK Lector64x Flex
96 pages
Print Icon
To Next Page IconTo Next Page
To Next Page IconTo Next Page
To Previous Page IconTo Previous Page
To Previous Page IconTo Previous Page
Loading...
3
CMC600 parameter cloning module (optional)
4
Auxiliary interface “Aux
5
Male connector, D-Sub, 9-pin
6
Name of the digital output
7
e.g. PLC (programmable logic controller)
8
SCANNER = Device
9
Female connector, D-Sub-HD, 15-pin
ß
Device to be connected
à
The optional CMC600 parameter cloning module is required in the connection module in order to be able to use the
additional external digital inputs and outputs of the device (highlighted in gray).
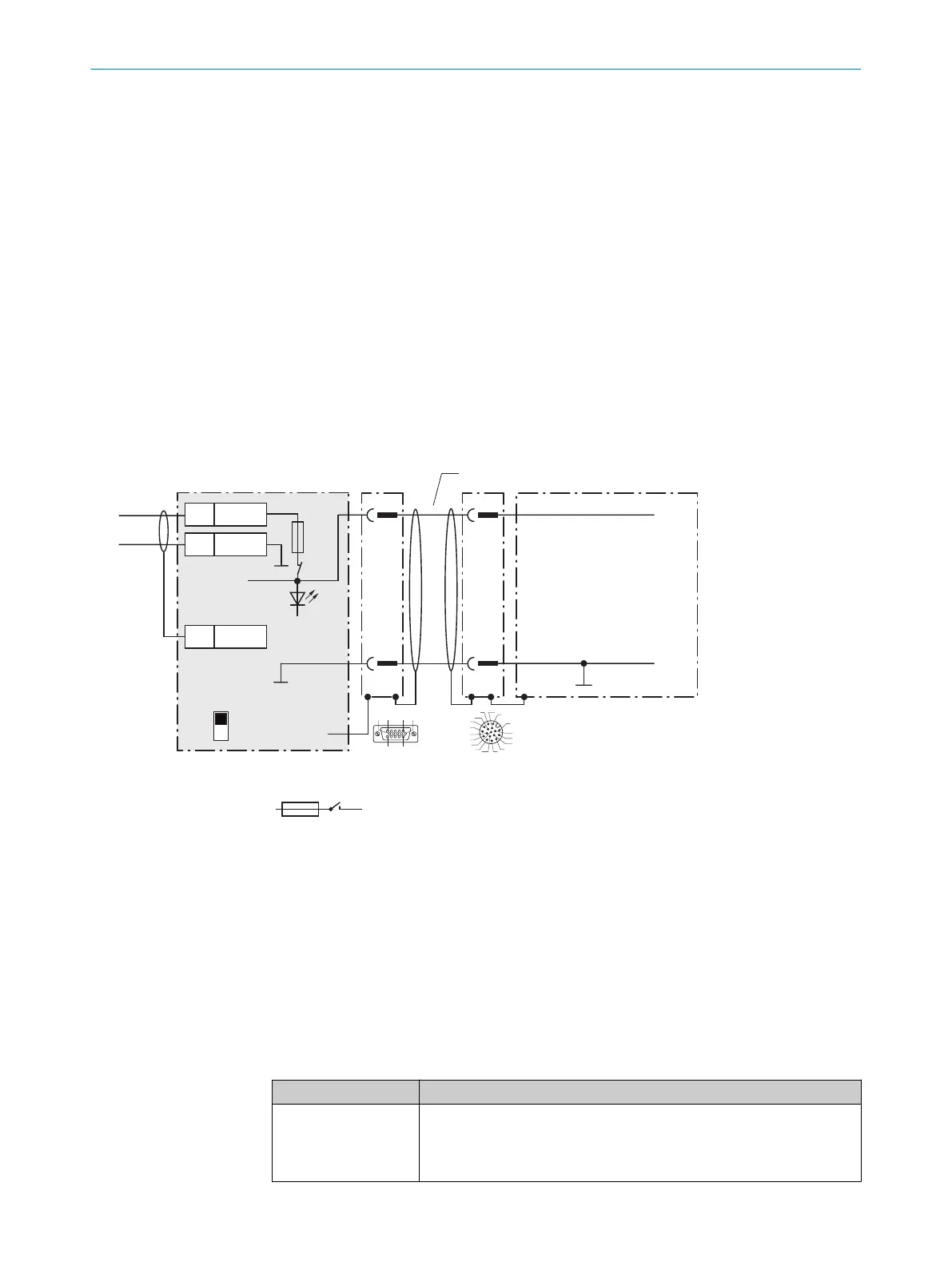
13.3.3 Connecting supply voltage for the device in CDM420-0006
Device = Lector64x = V2D64xx-xxxxYx (Y = A, B or S)
Device = Lector65x = V2D65xx-xxxxYx (Y = A, B or S)
Device
3CDM420-0006
V
S
2
1
1
5
5
Shield
1 +24 V
2 GND
+24 V*
GND
S1
F
Shield
GND
.
.
.
.
.
.
.
.
.
ON
OFF
S1 : POWER
+24 V*
POWER
V
S
GND
3
1
7
2
6
5
4
8
13
14
17
15
9
10
12
16
11
V
S
- +24 V -
F
S 1
- +24 V*
5 4
Cable 2
V
s
1
110
15
6
11
5
Figure 32: Connecting supply voltage for the device in CDM420-0006 connection module
1
Supply voltage V
S
2
Adapter cable (male connector, D-Sub-HD, 15-pin / female connector, M12, 17-pin, A-coded)
3
Device
4
Device: male connector, M12, 17-pin, A-coded
5
Connection module: female connector, D-Sub-HD, 15-pin
Function of switch S1
Table 28: Switch S1: Power
Switch setting Function
ON Supply voltage +24 V connected to CDM420-0006 and device via fuse
as +24 V* supply voltage.
Supply voltage +24 V* can be additionally tapped at terminals 29 and
39.
ANNEX 13
8016185/19E9/2020-10-21 | SICK O P E R A T I N G I N S T R U C T I O N S | Lector64x/65x Flex, Lector65x Dynamic Focus
83
Subject to change without notice

Table of Contents

Related product manuals