EasyManua.ls Logo

SICK Lector64x Flex - Page 91

SICK Lector64x Flex
96 pages
Print Icon
To Next Page IconTo Next Page
To Next Page IconTo Next Page
To Previous Page IconTo Previous Page
To Previous Page IconTo Previous Page
Loading...
Characteristic data of the digital inputs
Table 35: Characteristic data of the digital inputs “External input 1” and “External input 2”
Type Switching
Switching behavior Power to the input starts the assigned function, e.g. start read cycle.
Default setting in the device: logic not inverted (active high), debounce
time 10 ms
Properties
Opto-decoupled, reverse polarity protected
Can be wired with PNP output of a trigger sensor
Electrical values Low: V
in
1)
≤ 2 V; I
in
2)
≤ 0.3 mA
High: 6 V ≤ V
in
≤ 30 V; 0.7 mA ≤ I
in
≤ 5 mA
1)
Input Voltage
2)
Input current
NOTE
Assign the functions for the external digital inputs in the device using a configuration
tool, e.g., the SOPAS ET configuration software.
13.3.9 Wiring digital outputs of the device in the CDM420-0006
Device = Lector64x = V2D64xx-xxxxYx (Y = A, B or S)
Device = Lector65x = V2D65xx-xxxxYx (Y = A, B or S)
Device 1
CDM420-0006
Load (e.g. PLC) 4
C
5
.
.
.
E
Result D
13
GND
5
Shield
+24 V* (V
S
)
V
S
GND
V
out
Result A
GND
B
1
2 1
For inductive load: 6
5
2
3
3
1
7
2
6
5
4
8
13
14
17
15
9
10
12
16
11
8 7
110
15
6
11
5
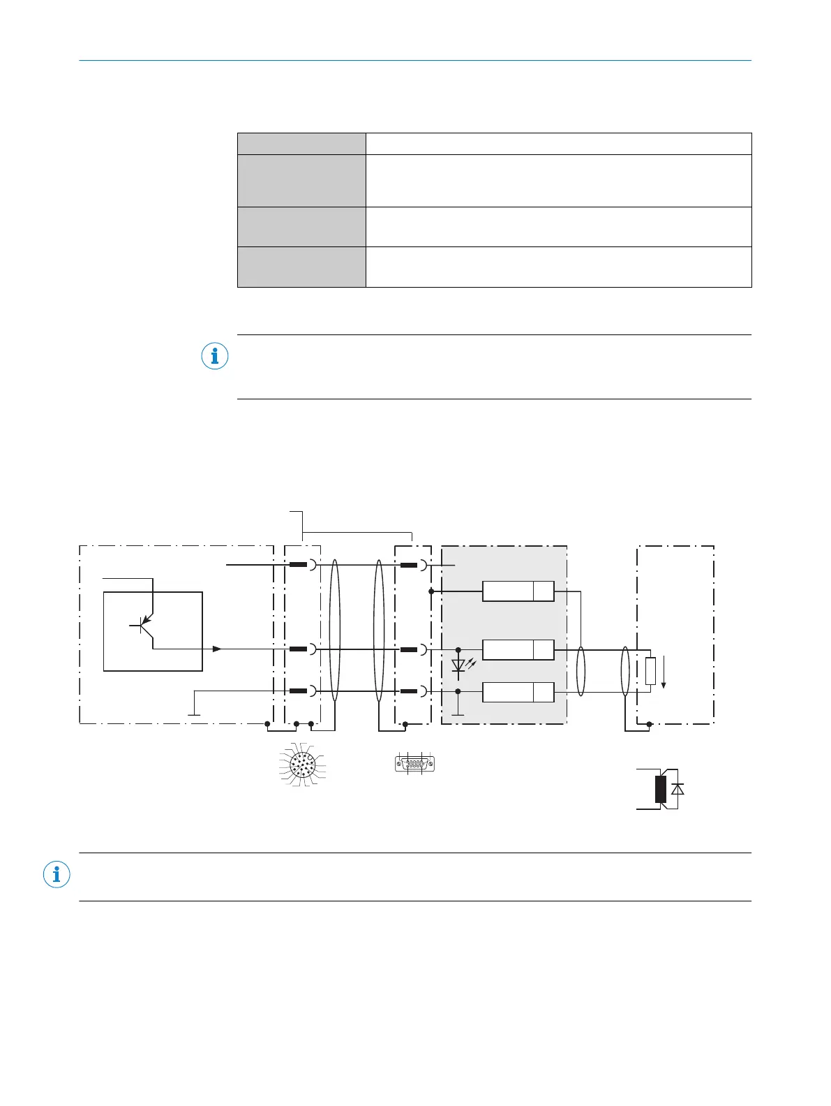
Figure 40: Wiring the digital outputs “Result 1” and “Result 2” of the device in the connection module CDM420-0006
NOTE
The two digital outputs “Result 3” and “Result 4” are not available in the CDM420-0006.
1
Device
2
Supply voltage V
S
3
Adapter cable (female connector, M12, 17-pin, A-coded/male connector, D-Sub-HD, 15-pin)
4
Load (e.g. PLC)
5
Output voltage V
out
6
With inductive load: see note
7
Connection module: female connector, D-Sub-HD, 15-pin
ANNEX 13
8016185/19E9/2020-10-21 | SICK O P E R A T I N G I N S T R U C T I O N S | Lector64x/65x Flex, Lector65x Dynamic Focus
91
Subject to change without notice

Table of Contents

Related product manuals