EasyManua.ls Logo

SICK V2D632R-MXSXB0 - Page 92

SICK V2D632R-MXSXB0
100 pages
To Next Page IconTo Next Page
To Next Page IconTo Next Page
To Previous Page IconTo Previous Page
To Previous Page IconTo Previous Page
Loading...
4
Device
5
Master
6
Device number
7
CAN etc.
8
Slave
9
Branch line
ß
An adapter cable (female connector, M12, 17-pin, A-coded / male connector, D-Sub-HD, 15-pin) is required to connect
the device
à
Device number (GN)
á
Maximum 32 users
â
Alternative connection module CDB650-204.
A connection cable 1:1 (female connector, M12, 17-pin, A-coded/male connector, M12, 17-pin, A-coded) is required to
connect the device
NOTE
Activate the CAN data interface in the device with a configuration tool, e.g. the configu‐
ration software SOPAS ET.
Make further settings in the device corresponding to the function of the device in the
system configuration.
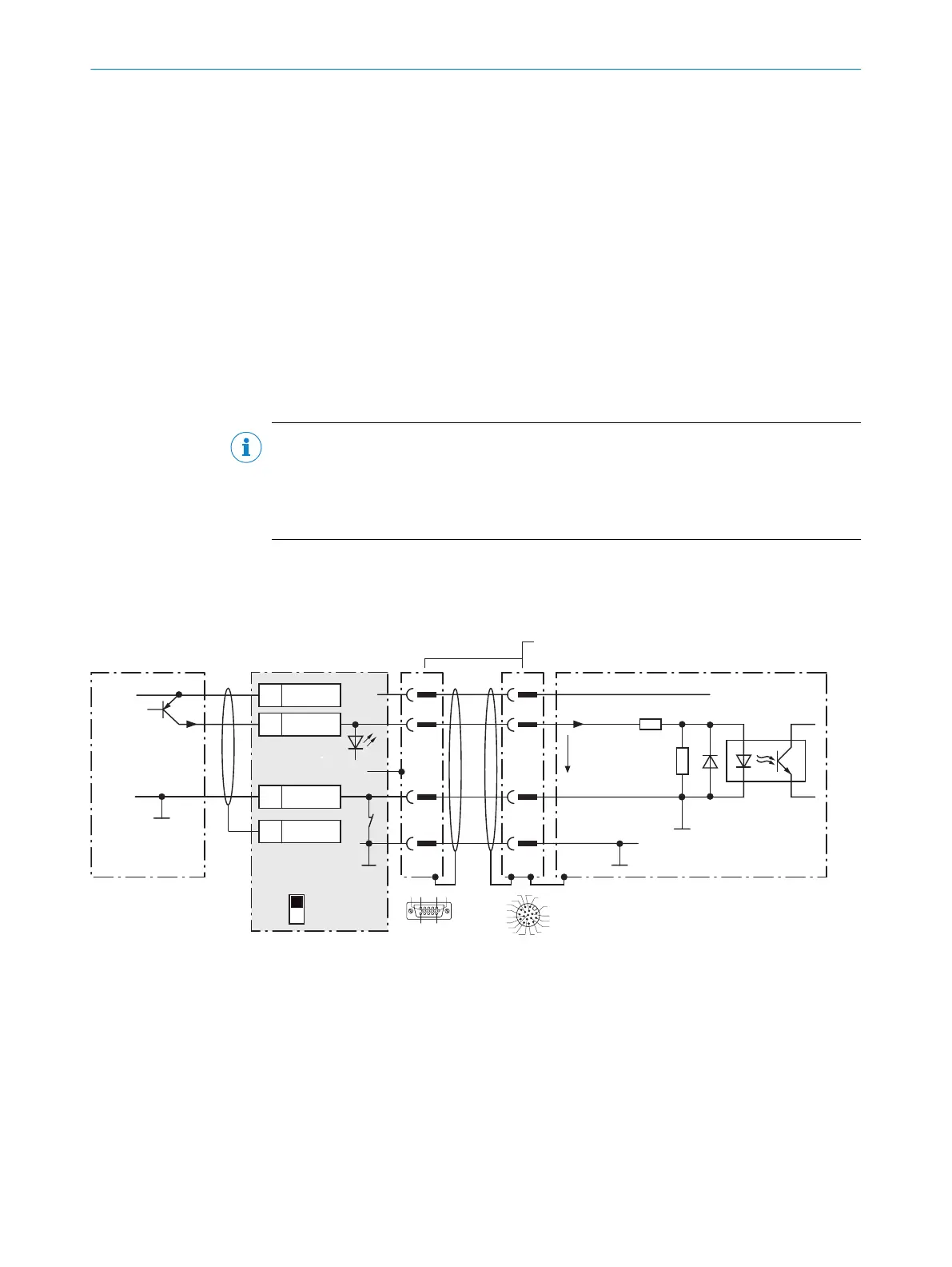
13.4.7 Wiring digital inputs of the device in the CDM420-0006
Device = Lector63x = V2D63xx-xxxxYx (Y = A, B or S)
Device 4
CDM420-0006
PNP sensor 8
V
S
V
S
V
S
GND
SensGND
3.32 K
6.64 K
Sensor E
V
in
D
9
2
1
C
15
1
5
Out
+24V*
GND
S6
ON
OFF
S6 : SGND-GND
Shield
GND
.
.
.
A
Sensor B
37
SGND
6
Shield
39
+24 V*
GND
SensGND
3
1
7
2
6
5
4
8
13
14
17
15
9
10
12
16
11
Trigger sensor 1
9
E.g. photo-electric
switch 7
3
6 5
110
15
6
11
5
Cable 2
Figure 36: Trigger sensor supplied with power by connection module CDM420-0006
1
Trigger sensor, e.g. for read cycle generation
2
Adapter cable (male connector, D-Sub-HD, 15-pin / female connector, M12, 17-pin, A-coded)
3
Input voltage V
in
4
Device
5
Device: male connector, M12, 17-pin, A-coded
6
Connection module: female connector, M12, 17-pin, A-coded
7
e.g. photoelectric sensor
8
PNP sensor
9
Supply voltage V
S
13 ANNEX
92
O P E R A T I N G I N S T R U C T I O N S | Lector63x Flex C-mount and S-mount 8018071/16XD/2020-05-06 | SICK
Subject to change without notice

Table of Contents

Related product manuals