EasyManua.ls Logo

SICK V2D632R-MXSXB0 - Page 94

SICK V2D632R-MXSXB0
100 pages
To Next Page IconTo Next Page
To Next Page IconTo Next Page
To Previous Page IconTo Previous Page
To Previous Page IconTo Previous Page
Loading...
NOTE
Assign the functions for the digital inputs in the device using a configuration tool, e.g.
the configuration software SOPAS ET.
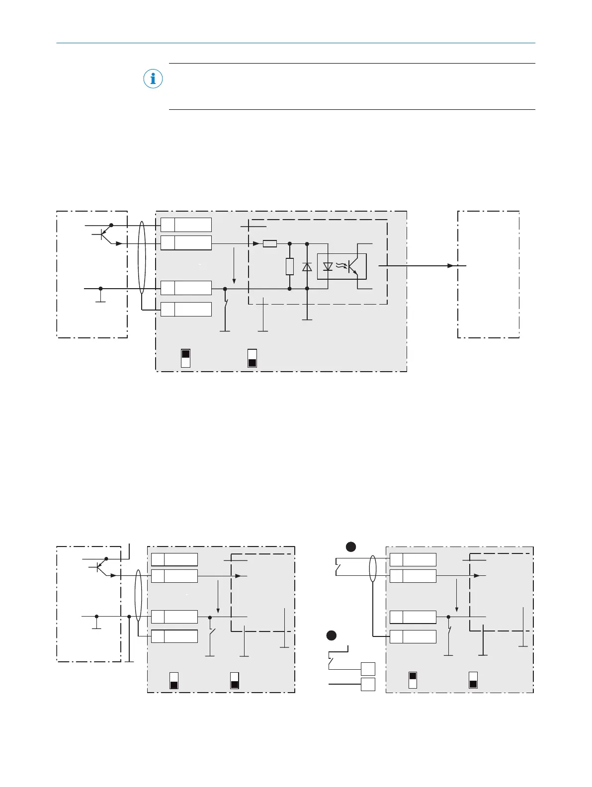
13.4.8 Wiring the external digital inputs of the device in the CDM420-0006
Device = Lector63x = V2D63xx-xxxxYx (Y = A, B or S)
Device 4
CDM420-0006
PNP sensor 7
V
S
GND
3.32 K
6.64 K
V
in
Out
GND
S6
CMC600 3
Aux
(RS-232)
ON
OFF
S6 : SGND
No
YES
S8 : CMC
17
SGND
8
Shield
39
+24 V*
A
Aux In B
+24V*
“External
input C5
SensGND
Trigger sensor 1
8
E.g. photo-electric
switch 6
2
Figure 38: Trigger sensor supplied with power by connection module CDM420-0006
1
Trigger sensor, e.g. for read cycle generation
2
Input voltage V
in
3
The optional CMC600 parameter cloning module is required in the connection module in order to be able to use the
additional external digital inputs and outputs of the device
4
Device
5
Logical “External input” in the device
6
e.g. photoelectric sensor
7
PNP sensor
8
Supply voltage V
S
CDM420-0006
PNP sensor 4
V
S
GND
Out
GND
S6
V
S ext
V
in
CMC600
No
YES
S8 : CMC
ON
OFF
S6 : SGND
17
SGND
8
Shield
39
+24 V*
A
Aux In B
+24V*
SensGND
Trigger sensor 1
5
2
3
CDM420-0006
V
in
GND
S6
CMC600
ON
OFF
S6 : SGND
No
YES
S8 : CMC
17
SGND
8
Shield
39
+24 V*
A
Aux In B
+24V*
SensGND
3
1
V
S ext
GND
A
17
2
2
Figure 39: Left: Trigger sensor connected potential-free and supplied with power externally. Right: Alternatively switch,
!
sup‐
plied with power by connection module CDM420-0006 or
"
connected potential-free and supplied with power externally.
Switch setting S3 then as in left figure.
13 ANNEX
94
O P E R A T I N G I N S T R U C T I O N S | Lector63x Flex C-mount and S-mount 8018071/16XD/2020-05-06 | SICK
Subject to change without notice

Table of Contents

Related product manuals