EasyManua.ls Logo

Siemens SIMATIC HMI 177 - Page 79

Siemens SIMATIC HMI 177
100 pages
Print Icon
To Next Page IconTo Next Page
To Next Page IconTo Next Page
To Previous Page IconTo Previous Page
To Previous Page IconTo Previous Page
Loading...
Specifications
6.7 Connection examples for Enable switch and STOP button
Mobile Panel 177 (WinCC flexible)
Operating Instructions (Compact), Edition 07/2005
6-19
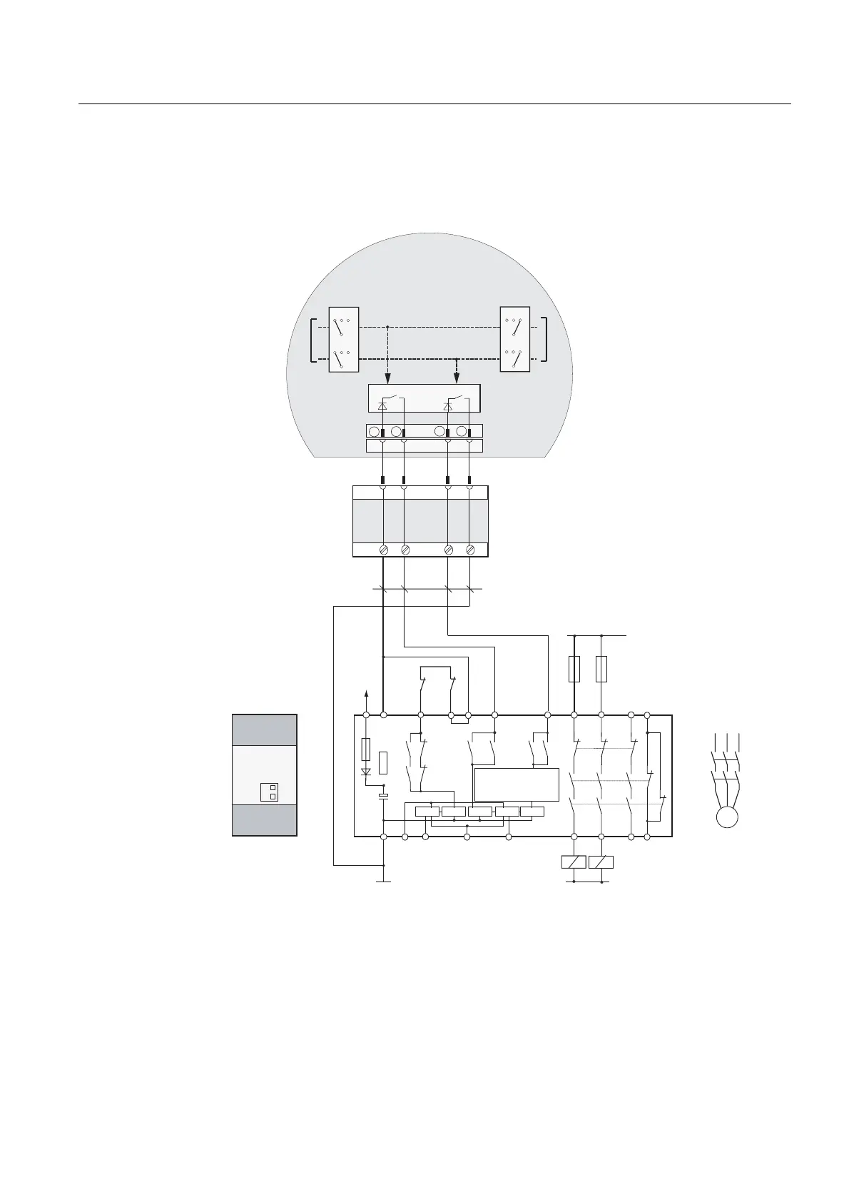
Connection example 1: Enabling switch with monitoring device ELAN SRB-NA-R-C.27/S1
The following figure shows the connection of a monitoring device ELAN SRB-NA-R-C.27/S1
to the enabling switch of the Mobile Panel.
)
6
.
.
.
. .
.
6
.
.
.
.
.
.
.
& & 6 6 6 6 6  
 



/'/
/'
)
$W $W
6
6
/ / /
.$
.%
0
;
 




'&
9
.$
.%
/
*1'
.$
1
*1'
.$ .%
0RELOH3DQHO
(63
(60
(63
(60
(/$1
65%1$5&6
&RQQHFWLQJFDEOHV
PLQPP
&X
7ZRHQDEOLQJVZLWFKHV
VWDJHDQGFLUFXLWHDFK
(6OHIW (6ULJKW
&LUFXLW
&LUFXLW
(6&LUFXLW (6&LUFXLW
(YDOXDWLRQ
HOHFWURQLFV
7HUPLQDO%R[%DVLF
RU
7HUPLQDO%R[3OXV
&URVVRYHUFLUFXLW
UHFRJQLWLRQ
0RGXOHUHDU
Figure 6-18 Wiring diagram: Enabling switch with monitoring device ELAN SRB-NA-R-C.27/S1
S1 and S4 switches on the rear of the module must be at Position 0.

Table of Contents

Related product manuals