EasyManua.ls Logo

Sony HBD-DZ950 - Power Board Schematic

Sony HBD-DZ950
48 pages
Print Icon
To Next Page IconTo Next Page
To Next Page IconTo Next Page
To Previous Page IconTo Previous Page
To Previous Page IconTo Previous Page
Loading...
DAV-DZ350/DZ650/DZ950
DAV-DZ350/DZ650/DZ950
3434
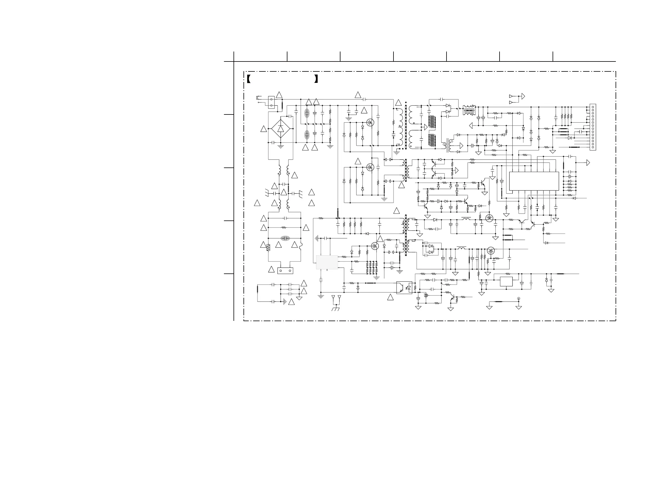
5-16. SCHEMATIC DIAGRAM - POWER Board -
• See page 35 for IC Block Diagrams.
POWER BOARD
A
36
E
2
D
5
B
C
714
1
2
CN901
CN4P-396-R23
TVR901
14D561KF10
1
2
CN902
CN3P-396-R2
CM901
C155P-250V
C969
10U 50V
C967
104P
C975
104P
R940
330K
EA(+)
1
EA(-)
2
COM/IN
3
D/C
4
C-T
5
R-T
6
GND
7
C1
8
E1
9
E2
10
C2
11
VCC
12
OUT/C
13
VERF
14
EA(-)
15
EA(+)
16
IC905
IC-AZ7500
ALL RES. ARE 1/6W EXCEPT SPECICAL EXPLAIN WITH NOTES
P906
SCREW-A
P905
SCREW-A
C968
47U 50V
D918
UF4007
R943A
56 3W
J901
NC
DS
G
Q903
13N50C
DS
G
Q902
13N50C
12
CE902
330uF 200/220V
CE901
330uF 200/220V
CX902
C224P-275V
NTC901
RT-6A
1 2
4 3
LF901
ET-24 15mH
1 2
4 3
LF902
ET-24 15mH
R949 R04-33
1
2
4
3
IC901
IC-EL817C
C959
1000U 16V
DS
G
Q901
SMK4N60F/PFF4N80
ALL EC.CAP. ARE 50V EXCEPT SPECICAL EXPLAIN WITH NOTES
C941
M222P/630V
R933
10R
C904
103P-1KV
C905
103P-1KV
D912
1N4148
R960
6K8
D914
1N4148
R928 1K5
R973
100
R977
1K
C961 1000U 16V
VCC
VCC
B
C E
Q910
2SB772
B
CE
Q911
2SB772
C928 104P
C929
104P
C962
470U 25V
C958
CC104P-100V
C957 CC104P-100V
ZD904
15V
ZD903
15V
D903
1N4148
D911
1N4148
D909
1N4148
ZD909
18V
ZD908
18V
ZD910
12V
ZD907 12V
ZD905
18V
TVR903
VCR10D241KPS
TVR902
VCR10D241KPS
C925
104P
C997
104P
R969
100K
R970
100K
F901
T5AL 250V
1
2
3
D924
FMX-22SL
C902
103P-1KV
C901
103P-1KV
R919
47R
R936
R04-10R
C942
NC
D905
1N4148
D906
1N4148
R925
27K
C924
104P
R922
6K2 1%
C973
100U16V
D910
1N4148
R926
10K
C974 1U 50V
C966 220U 16V
D913
1N4148
R941
R04-33
220
C926
NC
R920
10K
R955
10K
R954 2K4 1%
C932
NC
R959
4.7K
R978
0.47R
R961
3K9
C964
104P
R981 10K
R979
7K5
R980
3.3
R965 4K7
R966
56
R967
56
R963
560
R964
560
R968
4.7K
R971
10K
R972
10K
R974
9.1K
R975
2K4
R976 24K
R927
5K1
L904
L-6UH-5A
C963
470U 25V
C936
NC
C950
470P-500V
C946
470P-500V
C947
220P-500V
C933
470P-500V
C949 470P-500V
C972
470P-500V
C951
220P-500V
1
3
6
4
5
L907
T-TR19-C
C970
1000U 50V
C971
1000U 50V
R948
1K
D908
1N4148
D907
1N4148
C921
CC470P NC
Pin4
ZD913
9.1V
R915
4K7
Pin4
C980
470P
C981
470P
D927
1N4148
4
5
1
6
10
2
T902
TSA100006-0018/Z014
R938
10
EC
B
Q914
2SC1623(L6)
R999
4.7K
B
C
E
Q913
2SA812/733
R995
2.2K
R997
15K
R998
10K
D928
1N4148
+12V
D925
NC
1
2
43
L908
75UH
R956
100 1%
D902 1N4148
D901 1N4148
AMP_VCC
R988
18K
R989
18K
R990 18K
R991 18K
C909
NC
C908
NC
R962
NC
C985
4.7U
C986
220P-500V
C903
103P-1KV
!
!
!
!
!
!
!
!
!!!
!
!
!
!
!
!
!
!
!
!
!
!
C994 104P
C992
104P
DS
G
Q909
AO3403
D S
G
Q906
DMN4800LSS-13
L905
L-6UH-3A
P904
PAD-D4X6
4 1
3
2
BD901
GBU8K
C931
104P
D926
1N4148
R929
150
FB/olp
1
NC
3
Ocp
6
Startup
4
Gnd
8
Out
5
VCC
2
F/S
7
IC903
IC-SSC6200
C939
223 50V
12
H901
JP
1
2
H902
JP
1
2
3
D923
FMEN-210A
D921
HER105
SW1
PIN1-2/220V
PIN2-3/110V
C930
104P
C995
104P
!
!!
!
!
!
!
!
+12V
1
2
3
4
5
6
7
8
9
10
11
12
13
14
CN906
CN14P-2.5
AMP_VCC
SGND
PAC
+12V
+5V
C993
104P
CY903 560P-400V
CY904 560P-400V
CY905 NC
CY901
560P-400V
CY902
560P-400V
R901
1.5M 1W
CX901 C224P-275V
C914
NC
C996
NC
C913
102P-1KV
R907
R04-1M
R908
R04-1M
R909
R04-1M
R910
R04-1M
C944
NC
C943
NC
R944
NC
R943
NC
R932 4K7
R942 4K7
GT903
NC
GT904
NC
GT905
NC
ERL35 7+7P
EEL19
R937
3R3
D904
HER105
C927
47uF 50V
C920
104P
C938
104P
ZD902
12V
C960
1000U 16V
R983
0
C991
104P
+5V
C923
M104P
C922
102 50V
R931C1
220
220
220
220
220
220
220
220
220
220
220
220
220
220
220
R945A~R945P
220*16
1
2
3
220V
SW-110/220V
E C
B
Q915
2SC1623(L6)
D919
1N4148
D920
1N4148
C915
3.3UF/50VR982
10K
R985
100K
R914
10K
Pin1
R984
4.7K
ON/OFF
C918
103P
ON/1
+12V
R917
10K
R918
470K
R916
3.3K
R986
100K
R952
47K
R987
100K
R957
5.1K
R921
1K
C917
10U 50V
C911
47U
E C
B
Q908
2SC1623
D916
1N4148
D915
1N4148
E C
B
Q905
SS8050LT1
Pin1
C910
10U 50V
R958
NC
D917
1N4148
ZD906
11V
R911
200
P908
SCREW-A
P907
SCREW-A
12V
5V
R946
3K65 1%
R947
2K
E C
B
Q918
2SC1623(L6)
R994
NC
ON/1
C977
104P
C976
100U 16V
R923
33
J914
JMPER
J910
JMPER
J902 JMPER
J904
JMPER
J907
JMPER
PAC
ON/OFF
J921
JMPER
R931A1
R9311
R931B1
R930 1
R930A 1
R930B 1
R930C 1
R940A
330K
R939
330K
R939A
330K
C978
104P
J903
JMPER
J905
JMPER
32V
R996
NC
C948
225P
ZD914
NC
BK3V3
C912
103P-1KV
C945A
220P 500V
C945
R935
100K
6
2
7
5
3
4
9
8
11
10
13
12
T903
TSB100006-0018 /0014
BK3V3
7
5
8
1
3
9
14
6
11
10
13
T901
T-EEL25-B
J909
JMPER
J911
JMPER
+12V
J912
JMPER
J913
JMPER
BK3V3
ON/OFF
SGND
J916 JMPER
J917 JMPER
J918
JMPER
J919 JMPER
J915
JMPER
J908
JMPER
+32V
GND
GND
GND
+32V
+32V
+5V
+5V
GND
GND
+12V
PAC
BK3V3
ON/OFF
Out
2
In
3
G
1
IC907
IC-LDO-3.3V
J906
JMPER
J920 JMPER
VCR10D271KPGJ
VCR10D271KPGJ
1
2 3
IC904
IC-TL431
R902
15K
R1000 1K
R1001 1K
D922 1N5819
R1003 2K
R1002 2K
R1004 2K
R1005
2K

Related product manuals