EasyManua.ls Logo

Sony KV-13FM13 - HD Board

Sony KV-13FM13
107 pages
Print Icon
To Next Page IconTo Next Page
To Next Page IconTo Next Page
To Previous Page IconTo Previous Page
To Previous Page IconTo Previous Page
Loading...
— 36 —
KV-13FM13 / 13FM14
1
2
3
1
2
3
1
2
3
4
5
6
7
8
V
1
2
3
4
5
6
7
D
2
2
1
1
R
2
2
1
6
R
2
2
1
1
R
2
2
1
2
R
2
2
1
7
C
2
2
1
2
S
2
2
1
1
S
2
2
1
2
S
2
2
1
3
S
2
2
1
4
D
2
2
1
2
D
2
2
1
3
R
2
2
1
3
R
2
2
1
9
C
N
2
2
1
0
C
N
2
2
1
1
C
N
2
2
1
2
C
N
2
2
1
3
C
2
2
2
2
C
2
2
1
1
J
2
2
1
2
R
2
2
1
5
J
2
2
1
1
4
.
7
k
2
.
2
k
2
2
0
M
T
Z
J
-
T
-
7
7
-
1
0
B
3
3
0
2
5
V
R
D
9
.
1
E
W
-
T
1
1
.
5
k
6
.
8
k
4
.
7
k
M
T
Z
J
-
T
-
7
7
-
2
2
B
8
P
3
P
3
P
7
P
4
7
1
J
A
C
K
H
E
A
D
P
H
O
N
E
S
:
H
J
P
-
S
4
7
0
k
J
A
C
K
F
R
N
T
A
/
V
:
H
J
P
-
S
L
1
L
2
G
N
D
M
E
N
U
S
W
G
N
D
L
2
L
E
D
M
.
P
W
R
L
E
D
T
I
M
E
R
P
O
W
E
R
S
W
I
R
S
E
N
S
O
R
K
E
Y
S
W
G
N
D
G
N
D
V
2
K
E
Y
S
W
I
R
S
E
N
S
O
R
P
O
W
E
R
S
W
L
E
D
T
I
M
E
R
L
E
D
-
P
W
R
T
O
A
B
O
A
R
D
T
O
H
C
B
O
A
R
D
C
N
2
2
0
1
T
O
A
B
O
A
R
D
5
V
-
S
T
B
Y
5
V
-
S
T
B
Y
F
R
O
N
T
A
/
V
I
N
P
U
T
V
A
C
N
4
0
7
C
N
4
0
2
C
N
1
0
0
1
T
O
M
B
B
O
A
R
D
M
E
N
U
S
W
I
T
C
H
E
S
B
A
5
-
9
0
9
-
H
D
S
T
B
Y
5
V
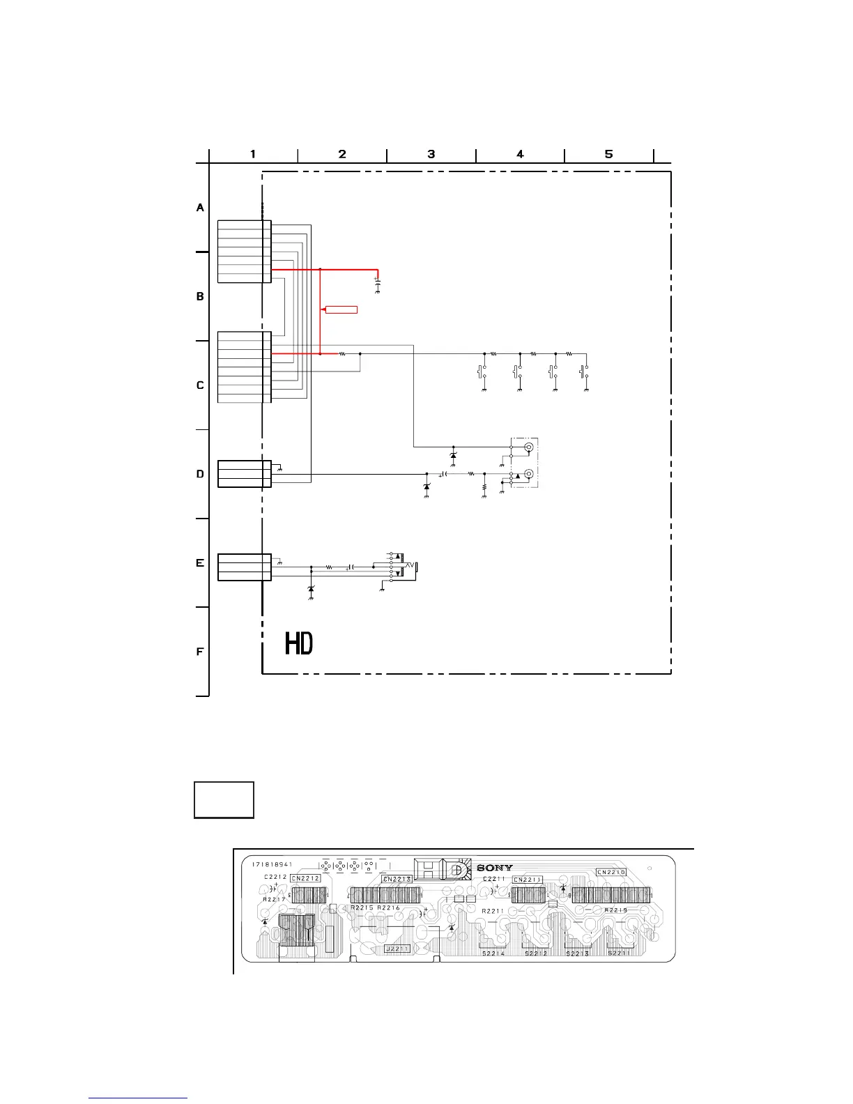
HD BOARD SCHEMATIC DIAGRAM
HD
[MENU SWITCHES, FRONT A/V INPUT]
D
2
2
1
3
D
2
2
1
2
R
2
2
1
4
D
2
2
1
1
J
2
2
1
2
C
2
2
2
2
R
2
2
1
2
R
2
2
1
3
1
-
6
7
8
-
3
4
5
-
4
1
1 | 2 | 3 | 4 | 5
A

Table of Contents

Related product manuals