EasyManua.ls Logo

Sony RDR-GX310 - Page 78

Sony RDR-GX310
123 pages
Print Icon
To Next Page IconTo Next Page
To Next Page IconTo Next Page
To Previous Page IconTo Previous Page
To Previous Page IconTo Previous Page
Loading...
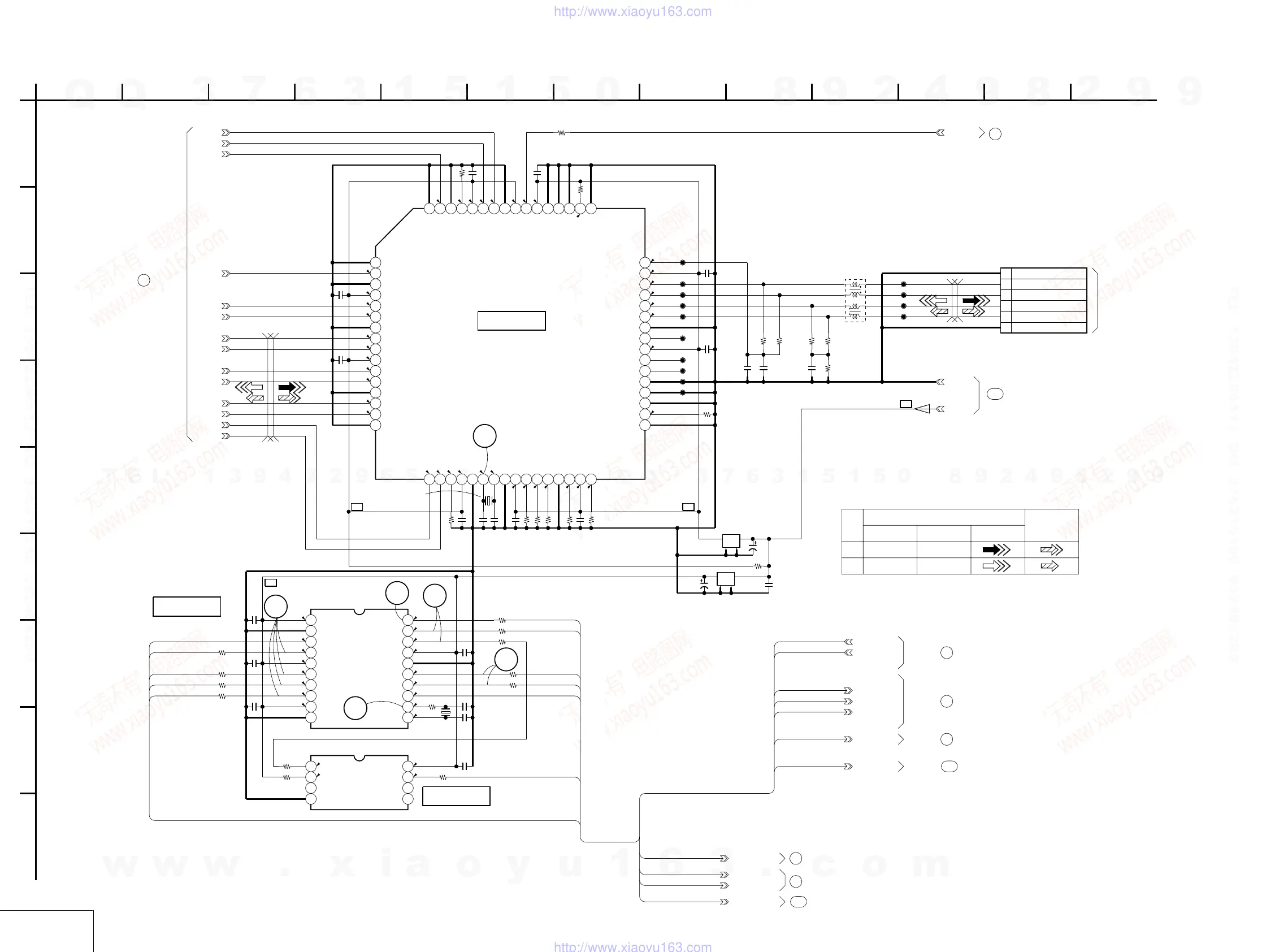
RDRGX310/HX710/HX910
4-55 4-56
DV I/F, PLL
RD-051 (13/13)
0.1u
B
C1905
10k
R1913
CTL1
PDT3
JL1908
16V
0.01u
B
C1915
PDT2
PDT4
PDT7
10k
R1909
16V
10u
C1901
JL1911
JL1913
100
R1907
10k
R1912
JL1904
0.1u
B
C1906
10k
R1904
0.1u
B
C1904
PDT1
JL1901
10k
R1905
JL1906
JL1902
JL1907
50V
270p
C1917
JL1914
LINKON
10k
R1908
LPS
PDT6
0.1u
B
C1903
JL1910
± 0.5%
56
R1917
R1901
0
JL1905
JL1909
± 0.5%
56
R1919
CTL0
PDT5
± 0.5%
5100
R1921
XPHYRST
± 0.5%
56
R1920
± 0.5%
9100
R1915
0.1u
B
C1909
0.1u B
C1912
6P
CN1901
1
2
3
4
5
6
JL1912
PDT0
0.1u
B
C1914
0.1u
B
C1911
± 0.5%
56
R1916
6.3V
1u
B
C1916
0.1u
B
C1913
10k
R1910
10k
R1911
SCLK
JL1903
LREQ
IC1901
UPD72852AGB-8EU-A
1
DGND
2
SCLK
3
IC(DL)
4
DVDD
5
CTL0
6
CTL1
7
DGND
8
D0
9
D1
10
DVDD
11
D2
12
D3
13
DGND
14
D4
15
D5
16
DGND
17
D6
18
D7
19
SUS/RES
20
DVDD
21
DGND
22
XO
23
XI
24
AGND
25
AVDD
26
PC0
27
PC1
28
PC2
29
IC(AL)
30
CMC
31
AVDD
32
CPS
33
AGND
34
RI1
35
AGND
36
TpBOn
37
TpB0p
38
TpA0n
39
TpA0p
40
AVDD
41
TpBIAS0
42
AGND
43
TpB1n
44
TpB1p
45
TpA1n
46
TpA1p
47
AVDD
48
TpBIAS1
49
AGND
50
DIRECT
51
IC(AL)
52
AGND
53
AGND
54
AVDD
55
RESETB
56
DVDD
57
DGND
58
LKON
59
LPS
60
DVDD
61
SPD
62
TEST
63
LREQ
64
DGND
FL1902
0uH
LF1901
1
2
3
45
6
7
8
IC1003
SN74LVC2G08DCUR
1
1A
2
1B
3
2Y
4
GND
5
2A
6
2B
7
1Y
8
VCC
0.1u
B
C1005
680
R1011
0.1u
B
C1002
R1005
56
33
R1003
33R1017
BU2357FV-E2
IC1001
1
VDD
2
VSS
3
FSEL1
4
CLK27M1
5
VDD2
6
CLK27M2
7
CLK27M3
8
CLK27M4
9
AVDD
10
AVSS
11
XTAL_IN
12
XTAL_OUT
13
FSEL2
14
CLK512FS_2_2
15
CLK512FS_2_1
16
VSS1
17
VDD1
18
CLK512FS_1_2
19
CLK512FS_1_1
20
CLK256FS_1
4700
R1023
33
R1018
X1001
27MHz
56
R1025
0.1u
B
C1003
33R1006
50V
10p
C1007
330
R1015
33
R1019
0.1u
B
C1004
0.1u
B
C1010
33
R1004
1W
0
R1022
50V
10p
C1008
33
R1016
16V
C1001
10u
FL1001
0.1u
B
C1006
DGND
SW3.3V
REC_MCK_2
PB_MCK_2
PB_MCK_1
REC_MCK_3
PLL2FSEL
REC_MCK_1
NAZSYSCK27M
CARSYSCK27M
PLL1FSEL
VIDSYSCK27M
DVSYSCK27M
1
A
C1907
8p
C1908
8p
X1901
24.576MHz
REC_MCK_1
PB_MCK_1
PB_MCK_2
CARSYSCK27M
PLL2FSEL
REC_MCK_3
NAZSYSCK27M
VIDSYSCK27M
DVSYSCK27M
PLL1FSEL
REC_MCK_2
PB_MCK_1
REC_MCK_3
PB_MCK_2
REC_MCK_1
REC_MCK_2
PLL2FSEL
CARSYSCK27M
PLL1FSEL
NAZSYSCK27M
VIDSYSCK27M
DVSYSCK27M
GND
TPA+
TPA-
TPB+
TPB-
GND
IC1901
DV I/F
IC1001
PLL
BUFFER
IC1003
98
TO(11/13)
TO(5/15)
54
8
TO(1/13)
60
TO(6/13)
TO(10/13)
86
100
TO(11/13)
70
TO(8/13)
TO(4/13)
45
TO(14/13)
102
DV I/F,PLL
XX MARK:NO MOUNT
RD-051 BOARD(13/13)
-REF.NO.:20,000 SERIES-
16
8
E
I
1261011
D
G
H
4
C
35
F
7
B
132 9
(SEE PAGE 4-25/27)
TO
FR-226/FR-232 BOARD
CN103
1.6
1.6
1.6
3.2
3.2
1.6
1.6
3.2
3.2
1.6
3.2
1.6
1.6
1.6
3.2
6
7
5
4
1.5
1.5
3
NO MARK:REC/PB MODE
B+
B+B+
B+
Y/CHROMAY
VIDEO SIGNAL
PB
CHROMA
AUDIO
SIGNAL
REC
TO(14/15)
103
0
1.1
3.3
1.7
0
3.3
3.2
3.3
3.3
1.6
3.3
0
0
0
0
3.3
0
0
0
0
0
0
0
3.3
1.6
1.6
3.3
0
0
0
3.3
0
0
8
3.3
3.3
3.3
3.3
0
0
3.3
1.2
1.6
3.2
3.2
1.7
w
w
w
.
x
i
a
o
y
u
1
6
3
.
c
o
m
Q
Q
3
7
6
3
1
5
1
5
0
9
9
2
8
9
4
2
9
8
T
E
L
1
3
9
4
2
2
9
6
5
1
3
9
9
2
8
9
4
2
9
8
0
5
1
5
1
3
6
7
3
Q
Q
TEL 13942296513 QQ 376315150 892498299
TEL 13942296513 QQ 376315150 892498299
http://www.xiaoyu163.com
http://www.xiaoyu163.com

Table of Contents

Other manuals for Sony RDR-GX310

Related product manuals