EasyManua.ls Logo

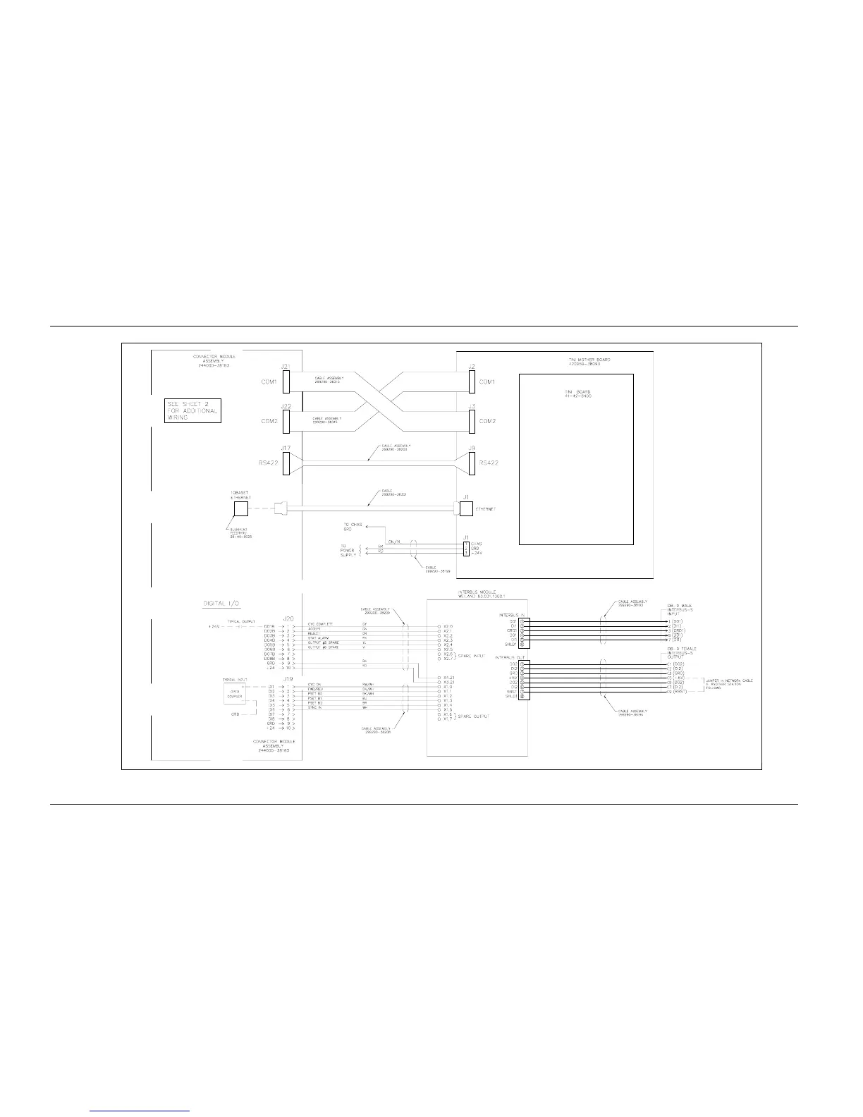
SPX CS4000 Mini - Figure 9-2. CS4000 Mini Controller with Ethernet Wiring of Standard Ethernet

SPX CS4000 Mini
106 pages
Print Icon
To Next Page IconTo Next Page
To Next Page IconTo Next Page
To Previous Page IconTo Previous Page
To Previous Page IconTo Previous Page
Loading...
Chapter 9. Technical Information
April 2002 T-38324-A Page 9-5
Figure 9-2. CS4000 Mini Controller with Ethernet Wiring of Standard Ethernet

Table of Contents