EasyManua.ls Logo

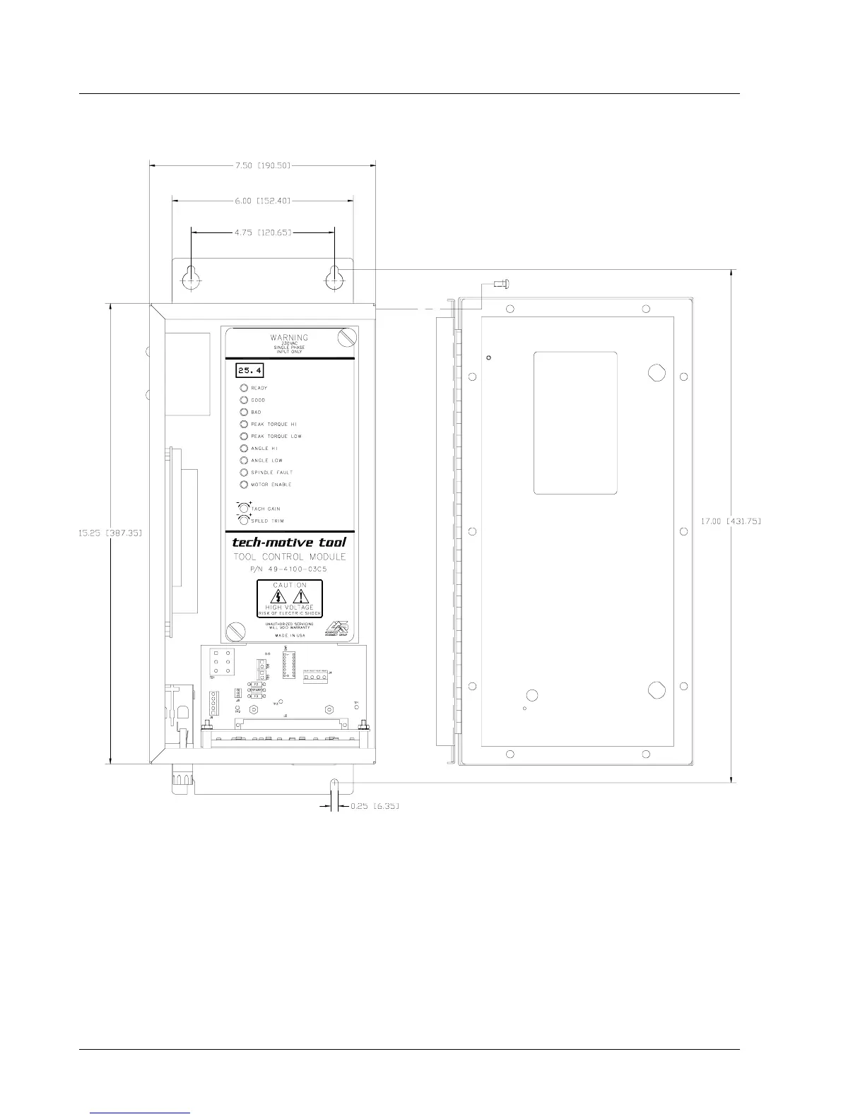
SPX CS4000 Mini - Figure 4-1. CS4000 Mini Controller with Ethernet Dimensions

SPX CS4000 Mini
106 pages
Print Icon
To Next Page IconTo Next Page
To Next Page IconTo Next Page
To Previous Page IconTo Previous Page
To Previous Page IconTo Previous Page
Loading...
CS4000 Mini Controller with Ethernet
Page
4-2
T-38324-A 39-30-38324
Figure 4-1. CS4000 Mini Controller with Ethernet Dimensions
To mount the controller you require four 1/4-20-in bolts or screws.
NOTE: All dimensions are in inches with
millimeters in square brackets.

Table of Contents