EasyManua.ls Logo

Stratasys Objet1000 Plus - Installation Area; Floor Plan (Printer Area)

Stratasys Objet1000 Plus
23 pages
Print Icon
To Next Page IconTo Next Page
To Next Page IconTo Next Page
To Previous Page IconTo Previous Page
To Previous Page IconTo Previous Page
Loading...
InstallationArea
Theinstallationareashouldbefreeofsourcesofvibrationandelectromagneticinterferencethatcould
affecttheproperfunctioningoftheprinter.
Thefloorgradientshouldbelessthan0.5%(5mmpermeter).
Thefloorshouldbestableandabletobeartheloadoftheprinter.
Theareaaroundtheprintershouldremaindryatalltimes.
Shelvesandcabinetsarerecommendedneartheprinterforconvenientstorageoftools,parts,
accessories,manuals,andmaterials.
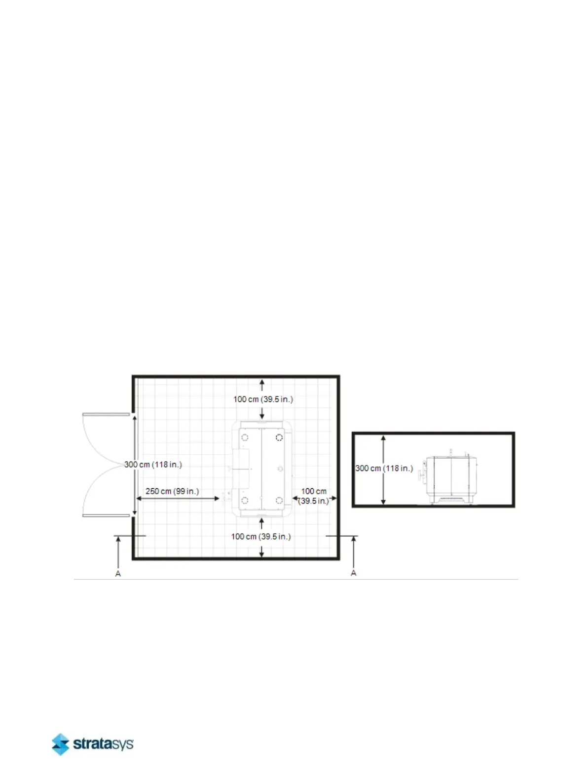
FloorPlan(PrinterArea)
Thefollowingisasamplefloorplan,showingthe3Dprintingsystem.Thedimensionsshowninthe
figurearetheminimumclearancerequirements.
Figure4Printerfloorplan(sample,nottoscale)
Makesurethattheprinterisonthesamelevelastheareasurroundingit.
Iftheprinterispositionedaboveorbelowtheareasurroundingit,itmightnotbepossibletoattachthe
unloadingcart.
Objet1000 Plus Installation Area
10

Other manuals for Stratasys Objet1000 Plus

Related product manuals