EasyManua.ls Logo

Stratasys Objet1000 Plus - Circuit Breaker; Residual Current Device (RCD); Power Connection

Stratasys Objet1000 Plus
23 pages
Print Icon
To Next Page IconTo Next Page
To Next Page IconTo Next Page
To Previous Page IconTo Previous Page
To Previous Page IconTo Previous Page
Loading...
CircuitBreaker
AType-Ccircuitbreakerwiththefollowingspecificationisrequiredonthepowerline(subjecttothe
localelectricalcode).
Voltage CircuitBreaker
220-240VAC 16A
Table3Circuitbreaker
ResidualCurrentDevice(RCD)
Thewalloutletmustbeconnectedtoaresidualcurrentdevice(RCD).
PowerConnection
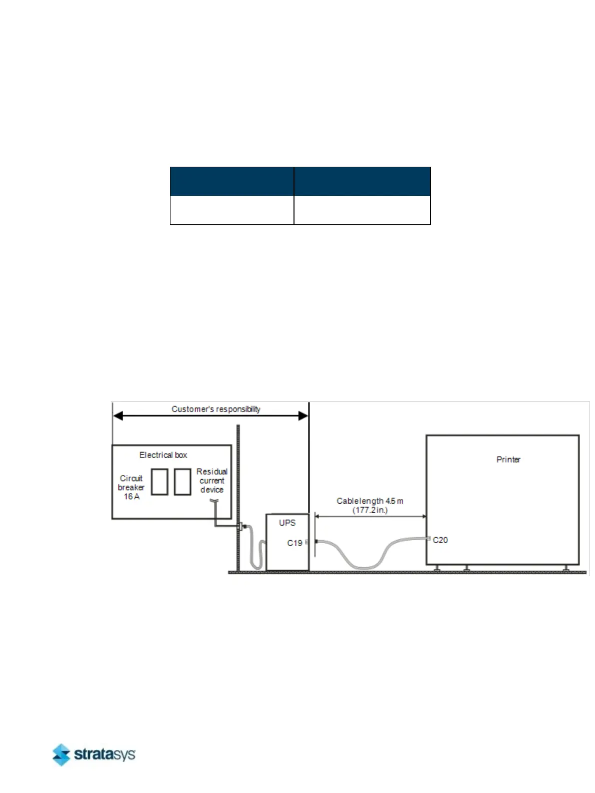
Thefollowingdiagramshowshowtoconnecttheprintertothelocalpowersupply.
Figure7Electricalconnection
Thefollowingelectricaloutletsarerequired:
oneoutlet(C19)behindtheprinterwireddirectlytotheUPS
threeoutletsclosetotheprinter(forservicingequipment)
Objet1000 Plus Electrical Requirements
14

Other manuals for Stratasys Objet1000 Plus

Related product manuals