EasyManua.ls Logo

Subaru Outback 2012 - Fuse Panel Located in the Engine Compartment

Subaru Outback 2012
474 pages
Print Icon
To Next Page IconTo Next Page
To Next Page IconTo Next Page
To Previous Page IconTo Previous Page
To Previous Page IconTo Previous Page
Loading...
Black plate (448,1)
Model "A2480BE-A" EDITED: 2011/ 7/ 26
12-12 Specifications
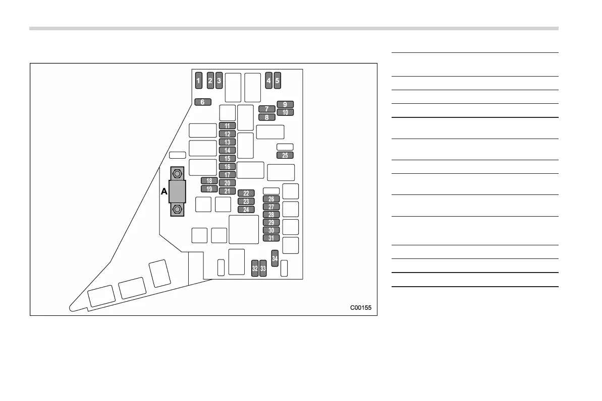
& Fuse panel located in the engine compartment
A) Main fuse
Fuse
panel
Fuse
rating
Circuit
1 7.5A
. CVT control unit
2 7.5A
. Horn LO
3 7.5A
. Horn HI
4 15A
. Low beam headlight
(right side)
5 15A
. Low beam headlight
(left side)
6 20A
. Fuel pump
7 10A
. High beam headlight
(left side)
8 10A
. High beam headlight
(right side)
9 20A
. Continuously variable
transmission control
unit
10 7.5A
. Alternator
11 20A
. Moonroof
12 7.5A
. Engine control unit

Table of Contents

Related product manuals