EasyManua.ls Logo

Swann AMI Oxytrace - QV-Flow PMMA OTG

Swann AMI Oxytrace
98 pages
Print Icon
To Next Page IconTo Next Page
To Next Page IconTo Next Page
To Previous Page IconTo Previous Page
To Previous Page IconTo Previous Page
Loading...
AMI Oxytrace QED
Product Description
A-96.250.531 / 300617 19
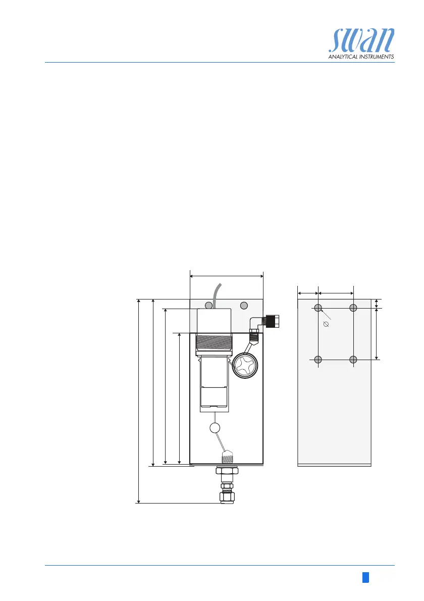
2.4.3 QV-Flow PMMA OTG
Flow cell Flow cell made of acrylic glass with integrated flow sensor.
Sample temp. max. 45 °C
Inlet pressure max. 1 bar
Outlet pressure
Pressure free
Sample flow 6–25 l/h
Process con-
nection inlet
Swagelok connection for 1/4” tube
Outlet SERTO angle for 6 mm flexible tube
Dimensions see picture below
217.7
178.5
164
138
80
21
38
8
62
5.3

Table of Contents

Other manuals for Swann AMI Oxytrace