EasyManua.ls Logo

Teletek electronics CA60Plus - Supplement D: General Connection Scheme

Teletek electronics CA60Plus
44 pages
Print Icon
To Next Page IconTo Next Page
To Next Page IconTo Next Page
To Previous Page IconTo Previous Page
To Previous Page IconTo Previous Page
Loading...
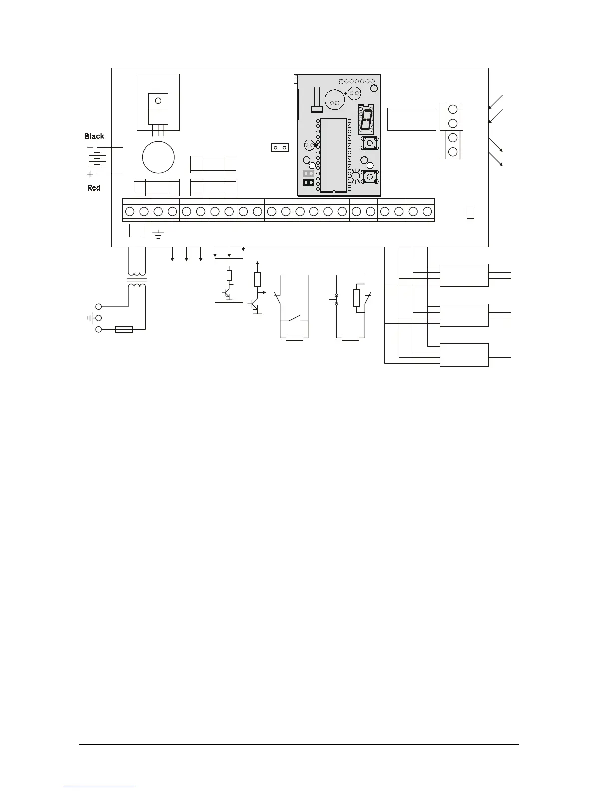
42 CA60Plus control panel Installation manual
Supplement D General connection scheme
CA 60 Plus
+ PGM
+ AUX
KEYBOARD
AC
+AUX
+PGM
PGM1
PGM2
PGM3
SIREN
Z2
COM
Z3
Z4
Z5
Z6
COM
COM
RED
GRN
YLW
BLCK
RESET
BATT
2A
1A
1A
DIALER
Keyboard1
Keyboard 2
PR 60
Powerful output
max 2À
12V
Connecting with
double EOL
resistor
CONNECTING ZONE
INPUTS
N.C.
N.O.
ZCOM
1k
Connecting with
single EOL
resistor
1k
TAMPER
ZCOM
1k
N.C.
Red
Green
Yellow
Black
PGM outputs
max 100mA
12V
A
B
A1
B1
LINE
COM
Power supply for detectors
and auxillary components
Power supply for
PGM and siren
220V/0,63A
N
L
Z1
White
Black
Z1
White
Black
PGM
TELEPHONE
17V
17W - 25W
PROG
EXPAND
SP
MIC
REC
MSG
PLAY
MSG
VD60
BUSY
1
2 2

Related product manuals