EasyManua.ls Logo

Trane S Series - Page 19

Trane S Series
100 pages
Print Icon
To Next Page IconTo Next Page
To Next Page IconTo Next Page
To Previous Page IconTo Previous Page
To Previous Page IconTo Previous Page
Loading...
RLC-SVX09Q-EN
19
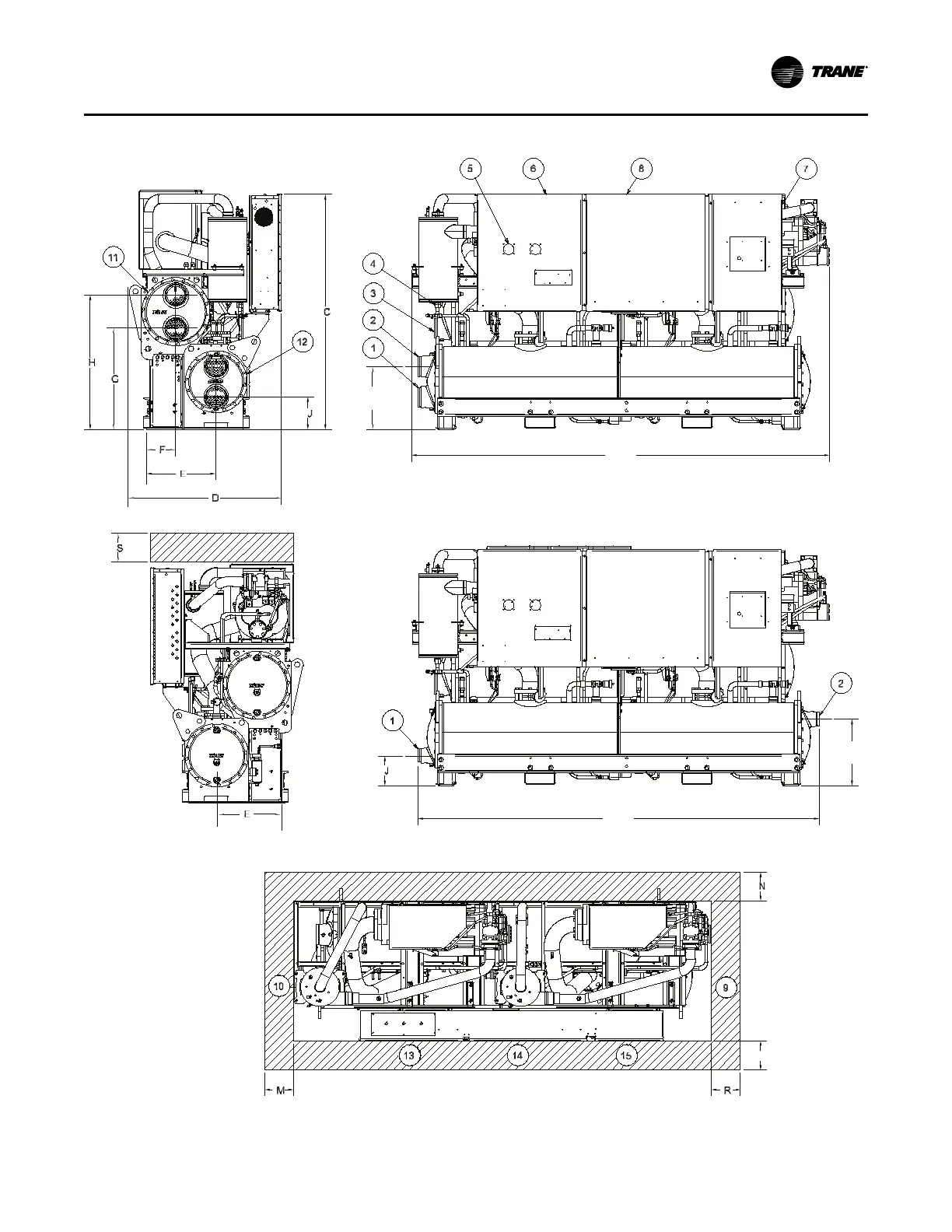
Figure 2. RTWD, 150 to 250 tons, 60 Hz
A
K
B
L
P
3 pass evap
2 pass evap
( 3 pass evap )
(3 pass evap)
( 2 pass evap )
(2 pass evap)
(3 pass evap)
Unit Dimensions and Weights

Table of Contents