EasyManua.ls Logo

Valor Fires 940 - Hole-In-The-Wall Installations

Valor Fires 940
68 pages
Print Icon
To Next Page IconTo Next Page
To Next Page IconTo Next Page
To Previous Page IconTo Previous Page
To Previous Page IconTo Previous Page
Loading...
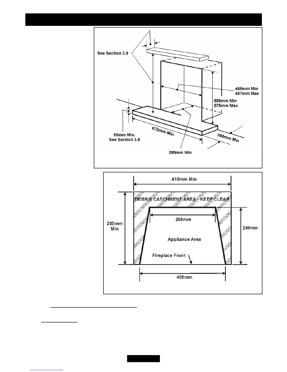
3.10.1.1 ‘Hole-in-the-wall’ Installations
It is recommended that a hearth should be installed as in section 3.8.
Icon firefront
If when using the Icon firefront a hearth is not fitted, the fire must be installed so
that the distance from the base of the fireplace opening in the wall to the
finished floor level is at least 100mm. Where there is no floor covering or carpet
and the floor is of a type that is likely to be covered in such a way in the future
Page 15
© Baxi Heating U.K. Limited 2009.
INSTALLER GUIDE
Figure 5. Hearth and fireplace opening dimensions
Figure 6. Fireplace area.

Table of Contents

Related product manuals