EasyManua.ls Logo

Vertiv Liebert DSE - Page 101

Vertiv Liebert DSE
136 pages
Print Icon
To Next Page IconTo Next Page
To Next Page IconTo Next Page
To Previous Page IconTo Previous Page
To Previous Page IconTo Previous Page
Loading...
REV : 7
REV DATE : 6/18
DPN002950
Page :1 /1
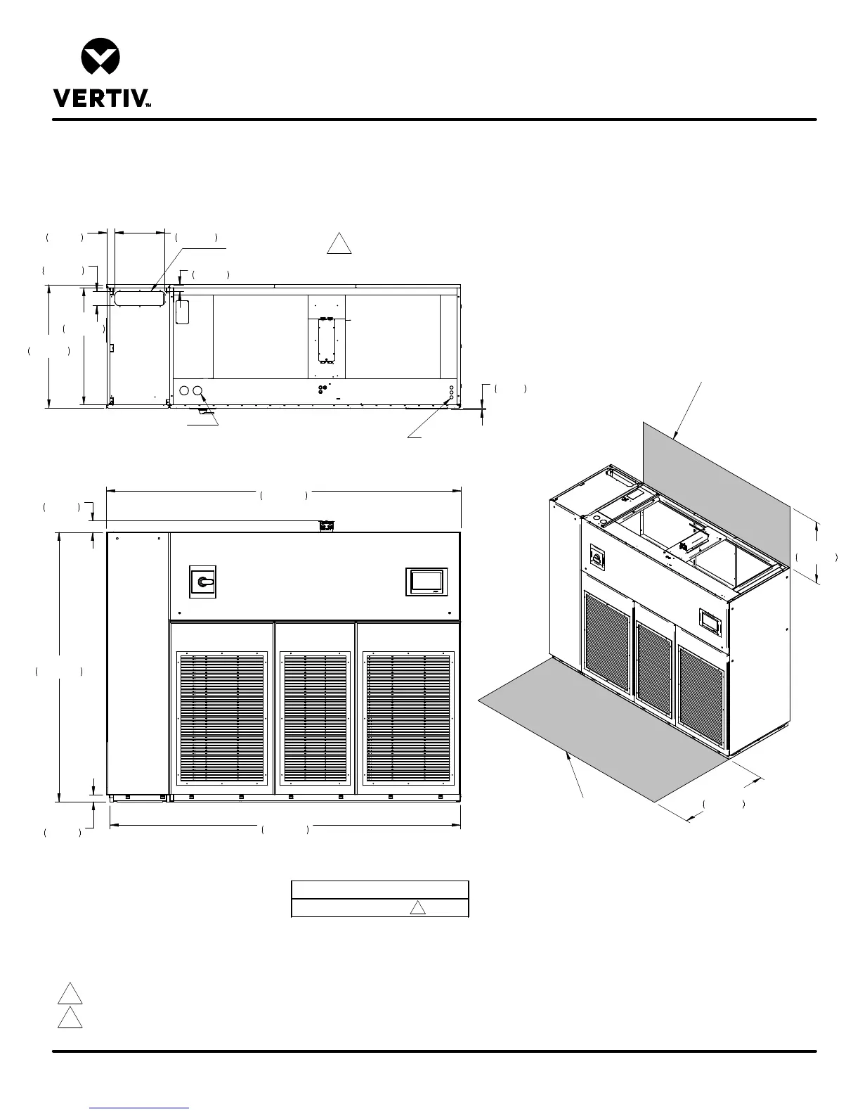
UPFLOW DA080-DA085
Form No.: DPN001040_REV4
CABINET DIMENSIONAL DATA
LIEBERT DSE
Secondary Refrigerant
Piping Entrance
Shaded area indicates a
recommended minimum
clearance be provided for
component access.
Minimum required
for blower replacement
High Volt Connection(s)
Low Volt Connection(s)
Approximate Dry Weight lbs. (kg)
2150 (977)
Notes:
1. Front air return unit shown.
2. Fan weight not included in this unit weight. Fan is installed in Plenum. Add 120lbs. (54kg) for 575V Transformer.
3. Secondary Refrigerant Piping Entrance not available with 575V.
2
3
24"
610mm
34"
864mm
Front View
Top View
3/8"
9mm
Bezel
33"
838mm
100"
2540mm
3 1/4"
83mm
76"
1930mm
2"
51mm
99"
2515mm
2 3/8"
59mm
14"
356mm
1 7/8"
48mm
4"
102mm
34 3/4"
883mm

Table of Contents

Other manuals for Vertiv Liebert DSE

Related product manuals