EasyManua.ls Logo

Vertiv Liebert DSE - Page 102

Vertiv Liebert DSE
136 pages
Print Icon
To Next Page IconTo Next Page
To Next Page IconTo Next Page
To Previous Page IconTo Previous Page
To Previous Page IconTo Previous Page
Loading...
REV : 7
REV DATE : 5/18
DPN002951
Page :1 /1
UPFLOW DA08-DA085
Form No.: DPN001040_REV4
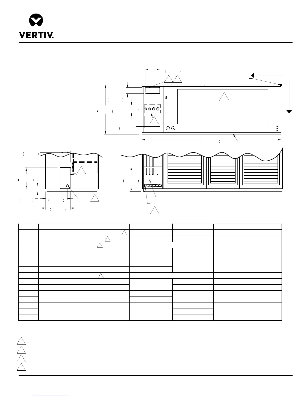
PRIMARY CONNECTION LOCATIONS
LIEBERT DSE
O
X
Y
Top View
Left Side View
Front View
(Left Front Panel Not Shown)
HUM
CPD
L1
L2
G1
G2
R3
6"
152mm
FACTORY LOCATION
3
17 1/4"
437mm
CGD
3
3
3
3 7/8"
98mm
15 7/8"
403mm
14 1/4"
362mm
L1L2
G1G2
R2
R1
3
4"
102mm
5"
127mm
35"
889mm
14 7/8"
379mm
3
14 1/8"
359mm
100"
2540mm
E1
E2
LV1
LV2
LV3
4
POINT DESCRIPTION X in. (mm) Y in. (mm) CONNECTION SIZE / OPENING
R1 SECONDARY REFRIGERANT ACCESS (TOP) 83-5/8 (2124) 1-7/8 (48) 15-7/16"(392mm) X 4" (102mm)
R2 REFRIGERANT ACCESS (BOTTOM) 82-15/16 (2106) 13-5/8 (346) 14-15/16" (379mm) X 5" (127mm)
R3 REFRIGERANT ACCESS (SIDE) 6" (152mm) X 17-3/16" (437mm)
L1 LIQUID LINE SYSTEM 1 94-9/16 (2402)
L2 LIQUID LINE SYSTEM 2 91-7/8 (2334)
G1 HOT GAS DISCHARGE 1 88-7/8 (2257)
G2 HOT GAS DISCHARGE 2 85-5/8 (2175)
CGD CONDENSATE GRAVITY DRAIN 3/4" NPT Female
CPD CONDENSATE PUMP DISCHARGE (OPT) 11-7/8 (302) 1/2" O.D. Cu
HUM HUMIDIFIER SUPPLY LINE 9-7/8 (251) 1/4" O.D. Cu
E1 78-1/8 (1984)
E2 74-3/8 (1889)
LV1 29-1/16 (738)
LV2 30-7/16 (773)
LV3 31-13/16 (808)
N/A
N/A
79-5/16 (2015)
2-5/8 (66)
16-3/4 (425)
16-7/16 (418)
30 (762)
ELECTRICAL CONN. (LOW VOLT)
ELECTRICAL CONN. (HIGH VOLT) 2-1/2"
7/8"
5/8" O.D. Cu
1-1/8" O.D. Cu
FRONT OF UNIT
ALL DIMENSIONS FROM REAR CORNER
OF UNIT INCLUDING PANELS
Notes:
1. Drawing not to scale.
2. Tolerance on all piping dimensions is ± 1/2" (13mm).
3. Field routed alternatives for refrigerant gas and liquid line connection points.
4. See submittal page DPN004084 for plenum dimensional data.
5. Field pitch Condensate Drain line a minimum of 1/8" (3.2 mm) per foot (305 mm). All units contain a factory installed condensate trap. Do not trap
external to the unit. Drain line may contain boiling water. Select appropriate drain system materials. The drain line must comply with all local codes
6. Secondary Refrigerant Access (R1). Not available with 575V.
5
5
CGD 5
EC FAN OUTLET
6
14"
356mm

Table of Contents

Other manuals for Vertiv Liebert DSE

Related product manuals