EasyManua.ls Logo

Vertiv Liebert MBSM - Figure 14 Schematic Diagram

Vertiv Liebert MBSM
34 pages
Print Icon
To Next Page IconTo Next Page
To Next Page IconTo Next Page
To Previous Page IconTo Previous Page
To Previous Page IconTo Previous Page
Loading...
Vertiv
|Liebert
®
MBSM
User Manual | 22
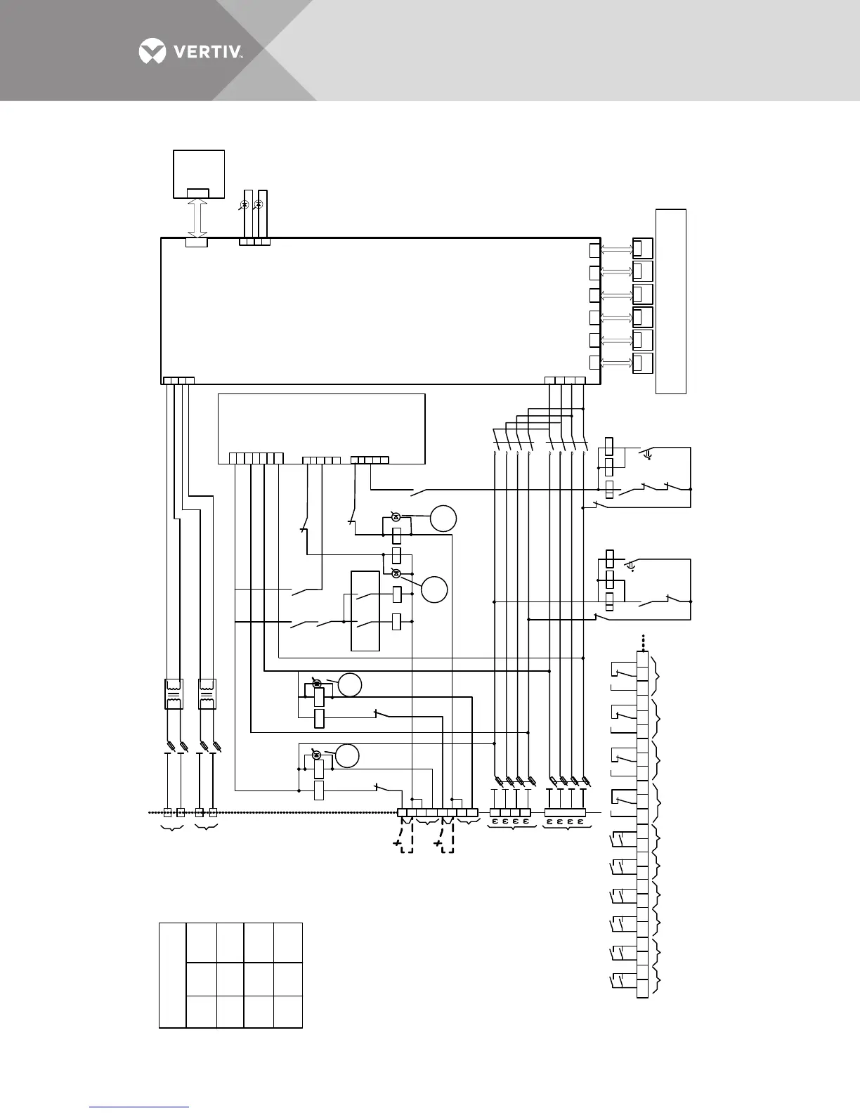
Figure 14 Schematic diagram
UPS1
AP 1
UPS2
AP 1
UPS3
AP 1
UPS4
AP 1
UPS5
AP 1
UPS6
AP 1
21 22 23 24 25 26 27 28 29 30 31 32 33 34 35 36 37 38 39 40 41 42 43 44
R4/1 R4/2
R4/3
R4/1
R4/2
R4/3
58
59
61
60
Priority Actived
Bus A
Bus A
Selected
Bus B
Selected
45
46
47
48
49
50
51
52
53
54
55
56
57
62
63
65
66
64 6 7
68
RHA/1 RHA/2 RHA/3
RHB/1 RHB/2 RHB/3
RPA/2
RPB/2
RSA/3
RSB/3
5
6
7
8
5
6
7
8
05
06
07
08
F5
F6
F7
3 x Fuse 6A
1
2
3
4
5
6
7
8
01
02
03
04
F1
F2
F3
Link
Link
3 x Fuse 6A
13
14
15
16
17
18
19
20
AB
A1 B1
A
B
A1 B1
09
01 0
01 1
01 2
17
18
19
20
F12
F11
F10
F9
9
10
11
12
9
10
11
12
01
04
05
08
L3
L4
Y
Y
30
32
33 3 5
00
00
00
From Output Busbar 1
From Output Busbar 2
220-240V/50-60Hz
220-240V/50-60Hz
2 x Fuse 4A
TM1
TM2
XT1
2 x Fuse 4A
R6/4R4/4
31
34
08
1
2
4
5
1M
1M
1
2
3
4
5
6
7
AP3
2M
3M
1
2
3
4
5
3
4
1
2
41
42
43
44
System OK
System Fau lt
+
+
-
-
6M
AP2
FL 34W
7PL
7PL
L1
L2
R
G
AP1
Liebert MBSM with Phase Control
(up to 6 UPS Modules)
RP A
RP B
RHB
RH A
SW1/1 S W1 /2
R2/2
41A
40
04
39
38
On the
Door
43A
42A
L5
Y
L6
05
Y
R1/2
RSA/2
R2/3
R1/3
37
037
36
038
* From UPS A Reserve OK
Cl ose Forced on So urce B
Close Forced on Source A
* From UPS B Reserve OK
R1
R4 R2 R6
Bu s B
Active
Forced
Bus A
K2
K1
13
14
15
16
1
2
3
4
5
1
3
5
7
4M
RJB1RJA1
RJC 1
RJD 1 RJE1 RJF1
44
RPB/1
RPA/1
21 25
R1/1
RSA/1
2927
26
R2/1
28
24
23
K2 K1
K1RSA
K2RSBT2
X
T1
X
From Reserve
Input Line A
380=415V/50-60Hz
From Reserve
Input Line B
380=415V/50-60Hz
Bus A
Active
RSB/1
XT1
T1
1
T2
1
OFF OFF Automatic
Input A / Input B = OK
R1 = R2 = ON
SW1/1 SW1/2 Priority
ON OFF P = A
OFF ON P = B
00
Forced
Bu s B
Inhibit UPS A/1
Inhibit UPS A/2
Inhibit UPS A/3
Inhibit UPS B/1
Inhibit UPS B/2
Inhibit UPS B/3
Priority Actived
Bus B

Table of Contents

Related product manuals